京都府京都市西京区下津林芝ノ宮町(桂駅)の賃貸:物件詳細
交通 所在地 |
駅徒歩 |
賃料 管理費等 |
敷金/保証金 礼金 |
間取り 面積 |
物件種目 築年月 |
|
阪急京都線/桂
京都府京都市西京区下津林芝ノ宮町
|
20分
|
7.5万円
なし
|
なし / なし
なし
|
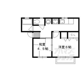
2K
34.50m²
|
賃貸アパート
1990年6月(築36年)
|
|
間取図
|
外観
|
<
その他の画像
>
|
| 交通 | 阪急京都線 桂駅 徒歩20分 |
|---|
| その他の交通 | JR東海道本線 桂川駅 徒歩14分 阪急京都線 洛西口駅 徒歩24分 |
| 所在地 |
京都府京都市西京区下津林芝ノ宮町
|
| 物件種目 |
賃貸アパート |
| 賃料 |
7.5万円 |
管理費等 |
なし |
| 敷金 / 保証金 |
なし / なし |
礼金 |
なし |
| 敷引 |
- |
保証金償却 |
- |
| その他一時金 |
ハウスクリーニング代(退去時):33,000円、鍵交換代金:24,200円、抗菌除菌処理代:19,800円 |
保険等 |
要 2年 20,000円 |
| 維持費等 |
- |
| 間取り |
2K(洋6×和4.5×K2) |
専有面積 |
34.50m² |
| 築年月 |
1990年6月(築36年)
|
階建 / 階 |
2階建 / 2階 |
| 建物構造 |
軽量鉄骨造 |
総戸数 |
12戸 |
| 主要採光面 |
東 |
駐車場 |
有 9,900円/月 |
| バイク置き場 |
無 |
駐輪場 |
有 無料 |
| 建物名・部屋番号 |
メゾンエスポワールⅡ B-202 |
ペット |
-
|
| アピールポイント |
JR桂川、阪急桂アクセス 閑静な住宅環境地、JR桂川、阪急桂駅へのアクセスしやすい立地になっております。徒歩圏内にコンビニ、ドラックストアなど生活環境も充実したエリアになっております。ファミリー様は近くに大きな公園が2つもございますので、お子様を育てられる環境としては魅力的です。西京区、阪急沿線のお部屋探しはアパマンショップ桂店までお気軽にお問い合わせください。 |
| リフォーム履歴 |
- |
| リノベーション履歴 |
- |
| 備考 |
賃貸保証等:加入要(初回:月額賃料等の40%、月額:支払い手数料440円、更新時:1万円/1年)
管理形態/管理員の勤務形態:-/-
|
| エネルギー消費性能 |
- |
| 断熱性能 |
- |
| 目安光熱費 |
- |
| バス・トイレ |
バス・トイレ別、シャワー付洗面化粧台、洗面所独立、シャワー、温水洗浄便座、トイレ |
| キッチン |
ガスコンロ可 |
| セキュリティー |
- |
| 収納 |
収納スペース |
| 設備・サービス |
室内洗濯機置場、給湯、都市ガス |
| TV・通信 |
インターネット対応、CATVインターネット |
| その他 |
バルコニー、駐輪場 |
| 契約期間 |
2年 |
現況 |
空家 |
| 条件等 |
- |
入居可能時期 |
即時 |
| 更新料 |
なし |
物件番号 |
1090114502 |
| 情報公開日 |
2026年4月10日 |
次回更新予定日 |
2026年5月25日 |
| ケータイ用バーコード |
- スマートフォンでこの物件を見る
- スマートフォンからもこの物件をご覧になれます。
|
※「-」と表示されている項目については、情報提供会社にご確認ください。
| 周辺施設 |
ファミリーマート下津林芝ノ宮町店 |
| 距離 |
110m |
写真を見る |
| 周辺施設 |
ダックス 下津林店 |
| 距離 |
150m |
写真を見る |
| 周辺施設 |
京都中央信用金庫 下津林支店 |
| 距離 |
260m |
写真を見る |
| 周辺施設 |
新鮮館コスモ 桂店 |
| 距離 |
500m |
写真を見る |
| 周辺施設 |
川岡東小学校 |
| 距離 |
500m |
写真を見る |
| 周辺施設 |
イオンモール 京都桂川 |
| 距離 |
1300m |
写真を見る |
| 周辺施設 |
三菱京都病院 |
| 距離 |
2400m |
写真を見る |
ここから簡単にお問い合わせをすることができます。
(SSLでの暗号化での送信を希望されるお客さまは
こちら
よりお問い合わせください)
お問い合わせを行う前に
「個人情報の取り扱いについて」を必ずお読みください。
「個人情報の取り扱いについて」に同意いただいた場合は「上記にご同意の上 確認画面へ進む」のボタンをクリックしてください。
個人情報の取り扱いについて
皆さまが送付された個人情報はアットホーム(株)のサーバを経由し、お問い合わせ先の不動産会社にメールまたはFAXにて転送されるためアットホーム(株)にも保管されます。アットホーム(株)で保管された個人情報の取り扱いについては、【こちら】をご覧ください。
また、本画面でご記入いただいた個人情報は、お問い合わせ先の不動産会社でも保管します。 お問い合わせ先の不動産会社が保管する個人情報の取り扱いについては、不動産会社に直接お問い合わせください。
京都府知事免許(5)第11578号 |
|---|
- 交通:
- 阪急京都線/桂駅 徒歩1分
- 京都府京都市西京区川島北裏町69-3
- TEL:
- 075-391-8866
- FAX:
- 075-391-8111
- 所属団体:
- (公社)京都府宅地建物取引業協会会員(公社)近畿地区不動産公正取引協議会加盟
取引態様:仲介  - 50024253
|
- スマートフォンで
この不動産会社を見る

|
- 提携サイト等より掲載されている物件情報につきましては、不動産会社詳細情報にリンクされていないものがあります。
- 物件に関するお問合せは、物件詳細ページの「情報提供会社」に表示されている不動産会社へ直接お願いいたします。
- 間取図は、現況を優先させていただきます。
- 映像は物件の一部を撮影したものです。物件の契約にあたっての最終判断はご自身の判断に基づいて行ってください。
- 仲介手数料について

アットホームは物件情報の適正化に努めております。
内容に誤りがある場合にはこちらへご連絡ください。