愛知県名古屋市中村区佐古前町(亀島駅)の賃貸:物件詳細
交通 所在地 |
駅徒歩 |
賃料 管理費等 |
敷金/保証金 礼金 |
間取り 面積 |
物件種目 築年月 |
|
名古屋市東山線/亀島
愛知県名古屋市中村区佐古前町
|
7分
|
7.8万円
5,000円
|
なし / なし
1ヶ月
|
1LDK
40.04m²
|
賃貸アパート
2021年2月(築5年1ヶ月)
|
角部屋、最上階、二人入居可、24時間換気システム、IT重説対応物件、保証人不要
|
|
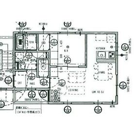
間取図
間取り LDK12.5帖 洋室4.5帖
|
外観
外観
|
<
その他の画像
>
|
| 交通 | 名古屋市東山線 亀島駅 徒歩7分 |
|---|
| その他の交通 | 名古屋市東山線 本陣駅 徒歩7分 名鉄名古屋本線 栄生駅 徒歩10分 |
| 所在地 |
愛知県名古屋市中村区佐古前町
|
| 物件種目 |
賃貸アパート |
| 賃料 |
7.8万円 |
管理費等 |
5,000円 |
| 敷金 / 保証金 |
なし / なし |
礼金 |
1ヶ月 |
| 敷引 |
- |
保証金償却 |
- |
| その他一時金 |
なし |
保険等 |
不要 |
| 維持費等 |
CATV代:550円/月、町会費:300円/月 |
クレジットカード決済 |
初期費用可 |
| 間取り |
1LDK(洋室4.5畳/LDK12.5畳) |
専有面積 |
40.04m² |
| 築年月 |
2021年2月(築5年1ヶ月)
|
階建 / 階 |
3階建 / 3階 |
| 建物構造 |
木造 |
総戸数 |
- |
| 主要採光面 |
北 |
駐車場 |
近有 13,000円/月 |
| バイク置き場 |
- |
駐輪場 |
- |
| 建物名・部屋番号 |
lino 302 |
ペット |
-
|
| リフォーム履歴 |
- |
| リノベーション履歴 |
- |
| 備考 |
管理形態/管理員の勤務形態:-/巡回
IT重説対応物件、管理人巡回
駐車場の空き状況は別途お問い合わせ下さい
24時間換気システム,2口コンロ,3点給湯,CATV,TVインターホン,エアコン,カウンターキッチン
|
| エネルギー消費性能 |
- |
| 断熱性能 |
- |
| 目安光熱費 |
- |
| バス・トイレ |
バス・トイレ別、浴室暖房、浴室乾燥機、追焚機能、洗面所独立、洗面台、シャワー、温水洗浄便座、トイレ |
| キッチン |
カウンターキッチン、システムキッチン、2口コンロ、ガスコンロ付 |
| セキュリティー |
モニター付オートロック、オートロック、モニター付インターホン |
| 収納 |
収納スペース、クローゼット、シューズボックス |
| 設備・サービス |
室内洗濯機置場、給湯、全居室フローリング、フローリング、プロパンガス、エアコン、暖房、冷房 |
| TV・通信 |
インターネット対応、インターネット使用料無料、光ファイバー、ケーブルTV |
| その他 |
宅配BOX、バルコニー |
| 契約期間 |
2年 |
現況 |
- |
| 条件等 |
- |
入居可能時期 |
2026年3月上旬予定 |
| 更新料 |
新賃料 0.5ヶ月 |
物件番号 |
1092911653 |
| 情報公開日 |
2026年1月15日 |
次回更新予定日 |
2026年2月12日 |
| ケータイ用バーコード |
- スマートフォンでこの物件を見る
- スマートフォンからもこの物件をご覧になれます。
|
※「-」と表示されている項目については、情報提供会社にご確認ください。
| 周辺施設 |
ヤマナカ 則武店 |
| 距離 |
422m |
写真を見る |
| 周辺施設 |
ローソン 中村則武本通店 |
| 距離 |
310m |
写真を見る |
| 周辺施設 |
ビー・アンド・ディードラッグストア 則武店 |
| 距離 |
434m |
写真を見る |
| 周辺施設 |
名古屋ルーセントタワー |
| 距離 |
1110m |
写真を見る |
| 周辺施設 |
名古屋亀島郵便局 |
| 距離 |
439m |
写真を見る |
| 周辺施設 |
ひまわりクリニック |
| 距離 |
853m |
写真を見る |
| 周辺施設 |
業務用食品スーパー アミカ 中村井深店 |
| 距離 |
358m |
写真を見る |
| 周辺施設 |
ファミリーマート 亀島一丁目店 |
| 距離 |
544m |
写真を見る |
ここから簡単にお問い合わせをすることができます。
(SSLでの暗号化での送信を希望されるお客さまは
こちら
よりお問い合わせください)
お問い合わせを行う前に
「個人情報の取り扱いについて」を必ずお読みください。
「個人情報の取り扱いについて」に同意いただいた場合は「上記にご同意の上 確認画面へ進む」のボタンをクリックしてください。
個人情報の取り扱いについて
皆さまが送付された個人情報はアットホーム(株)のサーバを経由し、お問い合わせ先の不動産会社にメールまたはFAXにて転送されるためアットホーム(株)にも保管されます。アットホーム(株)で保管された個人情報の取り扱いについては、【こちら】をご覧ください。
また、本画面でご記入いただいた個人情報は、お問い合わせ先の不動産会社でも保管します。 お問い合わせ先の不動産会社が保管する個人情報の取り扱いについては、不動産会社に直接お問い合わせください。
愛知県知事免許(3)第22094号 |
|---|
- 交通:
- 東海道新幹線/名古屋駅 徒歩3分
- 愛知県名古屋市中村区太閤1丁目22-13 恒川ビル2F
- TEL:
- 052-459-0500
- FAX:
- 052-459-0518
- 所属団体:
- (公社)愛知県宅地建物取引業協会会員東海不動産公正取引協議会加盟
取引態様:仲介  - 40408523
|
- スマートフォンで
この不動産会社を見る

|
- 提携サイト等より掲載されている物件情報につきましては、不動産会社詳細情報にリンクされていないものがあります。
- 物件に関するお問合せは、物件詳細ページの「情報提供会社」に表示されている不動産会社へ直接お願いいたします。
- 間取図は、現況を優先させていただきます。
- 映像は物件の一部を撮影したものです。物件の契約にあたっての最終判断はご自身の判断に基づいて行ってください。
- 仲介手数料について

アットホームは物件情報の適正化に努めております。
内容に誤りがある場合にはこちらへご連絡ください。