東京都江東区佐賀1丁目(門前仲町駅)の賃貸:物件詳細
交通 所在地 |
駅徒歩 |
賃料 管理費等 |
敷金/保証金 礼金 |
間取り 面積 |
物件種目 築年月 |
|
都営大江戸線/門前仲町
東京都江東区佐賀1丁目
|
9分
|
13.1万円
15,000円
|
なし / なし
なし
|
1DK
25.35m²
|
賃貸マンション
2021年5月(築4年8ヶ月)
|
ペット相談、二人入居可、24時間換気システム、閑静な住宅街、IT重説対応物件、保証人不要
|
|
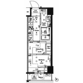
間取図
間取図
|
外観
外観
|
<
その他の画像
>
|
| 交通 | 都営大江戸線 門前仲町駅 徒歩9分 |
|---|
| その他の交通 | 東京メトロ半蔵門線 水天宮前駅 徒歩8分 東京メトロ東西線 門前仲町駅 徒歩9分 |
| 所在地 |
東京都江東区佐賀1丁目
|
| 物件種目 |
賃貸マンション |
| 賃料 |
13.1万円 |
管理費等 |
15,000円 |
| 敷金 / 保証金 |
なし / なし |
礼金 |
なし |
| 敷引 |
- |
保証金償却 |
- |
| その他一時金 |
なし |
保険等 |
要 2年 22,000円 |
| 維持費等 |
- |
クレジットカード決済 |
初期費用可 |
| 間取り |
1DK(DK4.4帖 洋室4.6帖) |
専有面積 |
25.35m² |
| 築年月 |
2021年5月(築4年8ヶ月)
|
階建 / 階 |
13階建 / 12階 |
| 建物構造 |
RC |
総戸数 |
52戸 |
| 主要採光面 |
南西 |
駐車場 |
近有 38,500円/月 |
| バイク置き場 |
有 3,300円/月 |
駐輪場 |
有 220円/月 |
| 建物名・部屋番号 |
ARKMARK水天宮前I |
ペット |
小型犬可・ 猫可 |
| アピールポイント |
信用と実績の創業45周年!首都圏130店舗以上のネットワークで安心してお部屋をお探しできます! IT重説対応店舗な為、ご来店頂かなくても契約可能です! ご見学にお越し頂くのが難しい場合は、ご来店頂かなくてもお部屋探しからご契約まで対応可能です。お部屋の採寸や最新の写真・動画の撮影致しますので、お気軽にお申し付けください! 初期費用&お家賃、ポイントがざくざく貯まるクレジットカード決済やPayPayでのQR決済可能な物件多数取り扱い有り! スタッフ一同お客様のご来店、心よりお待ちしております。 |
| リフォーム履歴 |
- |
| リノベーション履歴 |
- |
| 備考 |
賃貸保証等:加入要(賃貸保証料:0.40ヶ月 初回40% 月次:無 更新料:10,000/1年or 14,000/1年)
管理形態/管理員の勤務形態:-/巡回
IT重説対応物件、管理人巡回
お一人お一人様に合ったお部屋をお探し致します。分からない事は何でもご相談下さいませ!
|
| エネルギー消費性能 |
- |
| 断熱性能 |
- |
| 目安光熱費 |
- |
| バス・トイレ |
バス・トイレ別、浴室暖房、浴室乾燥機、シャワー付洗面化粧台、洗面所独立、洗面所、洗面台、シャワー、温水洗浄便座、トイレ |
| キッチン |
システムキッチン、2口コンロ、ガスコンロ付 |
| セキュリティー |
モニター付オートロック、オートロック、モニター付インターホン、ディンプルキー、ダブルロックドア、防犯カメラ |
| 収納 |
ウォークインクローゼット、収納スペース、クローゼット、シューズボックス |
| 設備・サービス |
室内洗濯機置場、都市ガス給湯、給湯、全居室フローリング、フローリング、都市ガス、エアコン、暖房、冷房、人感センサー付照明 |
| TV・通信 |
インターネット使用料無料、ケーブルTV、CS、BS端子、マルチメディアコンセント |
| その他 |
宅配BOX、バイク置き場、バルコニー、駐輪場、エレベーター |
| 契約期間 |
2年 |
現況 |
空家 |
| 条件等 |
- |
入居可能時期 |
即時 |
| 更新料 |
新賃料 1ヶ月 |
物件番号 |
1093468960 |
| 情報公開日 |
2025年12月9日 |
次回更新予定日 |
2025年12月23日 |
| ケータイ用バーコード |
- スマートフォンでこの物件を見る
- スマートフォンからもこの物件をご覧になれます。
|
※「-」と表示されている項目については、情報提供会社にご確認ください。
| 周辺施設 |
マルエツプチ新川一丁目店 |
| 距離 |
650m |
写真を見る |
| 周辺施設 |
ローソン永代橋店 |
| 距離 |
350m |
写真を見る |
| 周辺施設 |
セブンイレブン江東永代2丁目店 |
| 距離 |
370m |
写真を見る |
| 周辺施設 |
セブンイレブン江東永代2丁目店 |
| 距離 |
370m |
写真を見る |
| 周辺施設 |
ファミリーマート江東福住 |
| 距離 |
470m |
写真を見る |
| 周辺施設 |
ミニストップ新川1丁目店 |
| 距離 |
630m |
写真を見る |
| 周辺施設 |
ドラッグストアスマイル門前仲町店 |
| 距離 |
770m |
写真を見る |
| 周辺施設 |
くすりの福太郎門前仲町店 |
| 距離 |
820m |
写真を見る |
ここから簡単にお問い合わせをすることができます。
(SSLでの暗号化での送信を希望されるお客さまは
こちら
よりお問い合わせください)
お問い合わせを行う前に
「個人情報の取り扱いについて」を必ずお読みください。
「個人情報の取り扱いについて」に同意いただいた場合は「上記にご同意の上 確認画面へ進む」のボタンをクリックしてください。
個人情報の取り扱いについて
皆さまが送付された個人情報はアットホーム(株)のサーバを経由し、お問い合わせ先の不動産会社にメールまたはFAXにて転送されるためアットホーム(株)にも保管されます。アットホーム(株)で保管された個人情報の取り扱いについては、【こちら】をご覧ください。
また、本画面でご記入いただいた個人情報は、お問い合わせ先の不動産会社でも保管します。 お問い合わせ先の不動産会社が保管する個人情報の取り扱いについては、不動産会社に直接お問い合わせください。
国土交通大臣免許(1)第9926号 |
|---|
- 交通:
- 東京メトロ東西線/門前仲町駅 徒歩2分
- 東京都江東区門前仲町1丁目6-14 1F
- TEL:
- 03-3630-7722
- FAX:
- 03-3630-7723
取引態様:仲介  - 00015780
|
- スマートフォンで
この不動産会社を見る

|
- 提携サイト等より掲載されている物件情報につきましては、不動産会社詳細情報にリンクされていないものがあります。
- 物件に関するお問合せは、物件詳細ページの「情報提供会社」に表示されている不動産会社へ直接お願いいたします。
- 間取図は、現況を優先させていただきます。
- 映像は物件の一部を撮影したものです。物件の契約にあたっての最終判断はご自身の判断に基づいて行ってください。
- 仲介手数料について

アットホームは物件情報の適正化に努めております。
内容に誤りがある場合にはこちらへご連絡ください。