東京都新宿区新宿5丁目(新宿三丁目駅)の賃貸:物件詳細
交通 所在地 |
駅徒歩 |
賃料 管理費等 |
敷金/保証金 礼金 |
間取り 面積 |
物件種目 築年月 |
|
都営新宿線/新宿三丁目
東京都新宿区新宿5丁目
|
6分
|
16.5万円
10,000円
|
1ヶ月 / なし
1ヶ月
|
1LDK
28.55m²
|
賃貸マンション
2023年1月(築3年)
|
デザイナーズ、分譲タイプ、常時ゴミ出し可能、IT重説対応物件、保証人不要
|
|
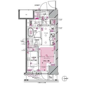
間取図
|
外観
外観
|
<
その他の画像
>
|
| 交通 | 都営新宿線 新宿三丁目駅 徒歩6分 |
|---|
| その他の交通 | 東京メトロ丸ノ内線 新宿御苑前駅 徒歩7分 JR山手線 新宿駅 徒歩14分 |
| 所在地 |
東京都新宿区新宿5丁目
|
| 物件種目 |
賃貸マンション |
| 賃料 |
16.5万円 |
管理費等 |
10,000円 |
| 敷金 / 保証金 |
1ヶ月 / なし |
礼金 |
1ヶ月 |
| 敷引 |
- |
保証金償却 |
- |
| その他一時金 |
なし |
保険等 |
要 2年 18,000円 |
| 維持費等 |
24時間サポート料:550円/月 |
クレジットカード決済 |
初期費用可 |
| 間取り |
1LDK(洋室2.4・LDK8.1) |
専有面積 |
28.55m² |
| 築年月 |
2023年1月(築3年)
|
階建 / 階 |
15階建 / 4階 |
| 建物構造 |
RC |
総戸数 |
61戸 |
| 主要採光面 |
東 |
駐車場 |
空無 |
| バイク置き場 |
無 |
駐輪場 |
有 |
| 建物名・部屋番号 |
ピアース新宿三丁目 402 |
ペット |
-
|
| アピールポイント |
デザイナーズマンションやグッドデザイン賞受賞物件、
ブランドレジデンスの賃貸を多数ご紹介しております。
当社ホームページ「モリモトレント」もぜひご覧ください。
■オンライン内見、IT重要事項説明にも対応可能。
■初期費用のクレジットカード決済もご相談いただけます。
皆さまからのお問い合わせを、心よりお待ちしております。 |
| リフォーム履歴 |
- |
| リノベーション履歴 |
- |
| 備考 |
賃貸保証等:加入要(初回契約時:50%、月額:1%)
管理形態/管理員の勤務形態:-/-
IT重説対応物件、二重床・二重天井
24時間サポート料550円(月額・税込)、退去時室内清掃費:居室専有面積30平米未満は一律33,000円(税込)・30平米以上は1平米あたり1,100円(税込)、エアコン清掃費:壁掛け・床置き式1台あたり11,000円(税込)・天井カセット型エアコン1台あたり27,500円(税込)、鍵交換 任意 77,000円(税込)鍵穴の形状により金額が変動する場合があるため、別途見積もりが必要となります。
■デザイナーズ■402号室Bタイプ■エアコン1台(洋室)※増設不可■床暖房(リビング・ダイニング)■浴室暖房乾燥機 ■スカパー!光※要別途契約・スカパーJSAT(株)(0120-818-666)■インターネット※無料・(株)つなぐネットコミュニケーションズUCOM光レジデンス(0120-286-645)■室内・バルコニー禁煙■ペット飼育禁止■住宅設備機器は退去時の状況により使用出来ない可能性もございます。
|
| エネルギー消費性能 |
- |
| 断熱性能 |
- |
| 目安光熱費 |
- |
| バス・トイレ |
バス・トイレ別、浴室乾燥機、追焚機能、洗面所独立、洗面所、洗面台、温水洗浄便座、タンクレストイレ、トイレ |
| キッチン |
システムキッチン、食器洗浄乾燥機、浄水器、2口コンロ、グリル |
| セキュリティー |
オートロック、モニター付インターホン、ディンプルキー、ダブルロックドア、防犯カメラ |
| 収納 |
ウォークインクローゼット、収納スペース、シューズインクローゼット |
| 設備・サービス |
床暖房、室内洗濯機置場、洗濯機置場、給湯、フローリング、都市ガス、エアコン |
| TV・通信 |
インターネット使用料無料 |
| その他 |
宅配BOX、バルコニー、駐輪場、エレベーター |
| 契約期間 |
2年 |
現況 |
居住中 |
| 条件等 |
- |
入居可能時期 |
2026年3月中旬予定 |
| 仲介手数料 |
1.1ヶ月 |
|
|
| 更新料 |
新賃料 1ヶ月 |
物件番号 |
1098493599 |
| 情報公開日 |
2025年12月11日 |
次回更新予定日 |
2025年12月25日 |
| ケータイ用バーコード |
- スマートフォンでこの物件を見る
- スマートフォンからもこの物件をご覧になれます。
|
※「-」と表示されている項目については、情報提供会社にご確認ください。
| 周辺施設 |
まいばすけっと新宿5丁目店 |
| 距離 |
274m |
| 周辺施設 |
セブンイレブン東京医科大前店 |
| 距離 |
124m |
| 周辺施設 |
ファミリーマート東京医科大学前店 |
| 距離 |
102m |
| 周辺施設 |
ローソンストア100新宿5丁目店 |
| 距離 |
265m |
| 周辺施設 |
スギドラッグ新宿1丁目店 |
| 距離 |
263m |
| 周辺施設 |
ココカラファインヨークフーズ新宿富久店 |
| 距離 |
269m |
ここから簡単にお問い合わせをすることができます。
(SSLでの暗号化での送信を希望されるお客さまは
こちら
よりお問い合わせください)
お問い合わせを行う前に
「個人情報の取り扱いについて」を必ずお読みください。
「個人情報の取り扱いについて」に同意いただいた場合は「上記にご同意の上 確認画面へ進む」のボタンをクリックしてください。
個人情報の取り扱いについて
皆さまが送付された個人情報はアットホーム(株)のサーバを経由し、お問い合わせ先の不動産会社にメールまたはFAXにて転送されるためアットホーム(株)にも保管されます。アットホーム(株)で保管された個人情報の取り扱いについては、【こちら】をご覧ください。
また、本画面でご記入いただいた個人情報は、お問い合わせ先の不動産会社でも保管します。 お問い合わせ先の不動産会社が保管する個人情報の取り扱いについては、不動産会社に直接お問い合わせください。
東京都知事免許(9)第55984号 |
|---|
- 交通:
- 東急東横線/代官山駅 徒歩3分
- 東京都渋谷区恵比寿南3丁目7-4
- TEL:
- 03-5724-1395
- FAX:
- 03-5724-1369
- 所属団体:
- (一社)マンション管理業協会会員(一社)全国住宅産業協会会員
取引態様:代理  - 00101102
|
- スマートフォンで
この不動産会社を見る

|
- 提携サイト等より掲載されている物件情報につきましては、不動産会社詳細情報にリンクされていないものがあります。
- 物件に関するお問合せは、物件詳細ページの「情報提供会社」に表示されている不動産会社へ直接お願いいたします。
- 間取図は、現況を優先させていただきます。
- 映像は物件の一部を撮影したものです。物件の契約にあたっての最終判断はご自身の判断に基づいて行ってください。
- 仲介手数料について

アットホームは物件情報の適正化に努めております。
内容に誤りがある場合にはこちらへご連絡ください。