愛知県岡崎市中岡崎町(岡崎公園前駅)の賃貸:物件詳細
交通 所在地 |
駅徒歩 |
賃料 管理費等 |
敷金/保証金 礼金 |
間取り 面積 |
物件種目 築年月 |
|
名鉄名古屋本線/岡崎公園前
愛知県岡崎市中岡崎町
|
3分
|
6.65万円
7,000円
|
なし / なし
なし
|
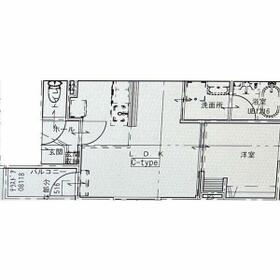
1LDK
30.01m²
|
賃貸アパート
2026年3月
|
角部屋
|
|
間取図
|
外観
|
<
その他の画像
>
|
| 交通 | 名鉄名古屋本線 岡崎公園前駅 徒歩3分 |
|---|
| その他の交通 | 愛知環状鉄道 中岡崎駅 徒歩3分 名鉄名古屋本線 東岡崎駅 徒歩25分 |
| 所在地 |
愛知県岡崎市中岡崎町
|
| 物件種目 |
賃貸アパート |
| 賃料 |
6.65万円 |
管理費等 |
7,000円 |
| 敷金 / 保証金 |
なし / なし |
礼金 |
なし |
| 敷引 |
実費 |
保証金償却 |
- |
| その他一時金 |
- |
保険等 |
要 2年 |
| 維持費等 |
光TV代:550円/月、LSC(24時間緊急駆付け):1,650円/月、火災保険料相当額:800円/月、町会費:250円/月 |
クレジットカード決済 |
初期費用可 |
| 間取り |
1LDK |
専有面積 |
30.01m² |
| 築年月 |
2026年3月
|
階建 / 階 |
3階建 / 2階 |
| 建物構造 |
木造 |
総戸数 |
12戸 |
| 主要採光面 |
|
駐車場 |
無 |
| バイク置き場 |
無 |
駐輪場 |
無 |
| 建物名・部屋番号 |
仮称)中岡崎賃貸 201 |
ペット |
-
|
| リフォーム履歴 |
- |
| リノベーション履歴 |
- |
| 備考 |
賃貸保証等:加入要(初回保証委託料 総集金家賃の60% 月額保証委託料 総集金家賃の1.5%)
管理形態/管理員の勤務形態:-/-
[退去時費用 修理分担金:65,500円※故意・過失等別途実費] 1年未満の解約の場合、賃料の2ヶ月分、1年以上2年未満の解約の場合、賃料の1ヶ月分が短期解約違約金として必要です。 NO:111553525
|
| エネルギー消費性能 |
- |
| 断熱性能 |
- |
| 目安光熱費 |
- |
| バス・トイレ |
バス・トイレ別、浴室乾燥機、洗面所独立、洗面台、シャワー、温水洗浄便座、トイレ |
| キッチン |
システムキッチン、2口コンロ、ガスコンロ可 |
| セキュリティー |
オートロック、モニター付インターホン |
| 収納 |
収納スペース、クローゼット、シューズボックス |
| 設備・サービス |
室内洗濯機置場、給湯、都市ガス、エアコン、暖房、冷房 |
| TV・通信 |
インターネット対応、インターネット使用料無料 |
| その他 |
宅配BOX、バルコニー |
| 契約期間 |
2年 |
現況 |
未完成 |
| 条件等 |
- |
入居可能時期 |
2026年3月中旬予定 |
| 更新料 |
なし |
物件番号 |
1100577022 |
| 情報公開日 |
2026年1月9日 |
次回更新予定日 |
2026年2月5日 |
| ケータイ用バーコード |
- スマートフォンでこの物件を見る
- スマートフォンからもこの物件をご覧になれます。
|
※「-」と表示されている項目については、情報提供会社にご確認ください。
| 周辺施設 |
大正庵 釜春 |
| 距離 |
188m |
写真を見る |
| 周辺施設 |
岡崎公園前駅 |
| 距離 |
162m |
写真を見る |
| 周辺施設 |
ローソン中岡崎店 |
| 距離 |
225m |
写真を見る |
ここから簡単にお問い合わせをすることができます。
(SSLでの暗号化での送信を希望されるお客さまは
こちら
よりお問い合わせください)
お問い合わせを行う前に
「個人情報の取り扱いについて」を必ずお読みください。
「個人情報の取り扱いについて」に同意いただいた場合は「上記にご同意の上 確認画面へ進む」のボタンをクリックしてください。
個人情報の取り扱いについて
皆さまが送付された個人情報はアットホーム(株)のサーバを経由し、お問い合わせ先の不動産会社にメールまたはFAXにて転送されるためアットホーム(株)にも保管されます。アットホーム(株)で保管された個人情報の取り扱いについては、【こちら】をご覧ください。
また、本画面でご記入いただいた個人情報は、お問い合わせ先の不動産会社でも保管します。 お問い合わせ先の不動産会社が保管する個人情報の取り扱いについては、不動産会社に直接お問い合わせください。
愛知県知事免許(6)第18993号 |
|---|
- 交通:
- 名鉄豊田線/豊田市駅
- 愛知県豊田市若宮町2丁目66 豊田グランドビル1階
- TEL:
- 0565-37-7721
- FAX:
- 0565-37-7791
- 所属団体:
- (公社)全日本不動産協会会員東海不動産公正取引協議会加盟
取引態様:仲介  - 99020953
|
- スマートフォンで
この不動産会社を見る

|
- 提携サイト等より掲載されている物件情報につきましては、不動産会社詳細情報にリンクされていないものがあります。
- 物件に関するお問合せは、物件詳細ページの「情報提供会社」に表示されている不動産会社へ直接お願いいたします。
- 間取図は、現況を優先させていただきます。
- 映像は物件の一部を撮影したものです。物件の契約にあたっての最終判断はご自身の判断に基づいて行ってください。
- 仲介手数料について

アットホームは物件情報の適正化に努めております。
内容に誤りがある場合にはこちらへご連絡ください。