東京都品川区東品川3丁目(品川シーサイド駅)の賃貸:物件詳細
交通 所在地 |
駅徒歩 |
賃料 管理費等 |
敷金/保証金 礼金 |
間取り 面積 |
物件種目 築年月 |
|
りんかい線/品川シーサイド
東京都品川区東品川3丁目
|
7分
|
28.8万円
20,000円
|
1ヶ月 / なし
なし
|
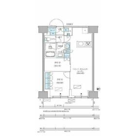
2LDK
58.24m²
|
賃貸マンション
2025年3月(築1年3ヶ月)
|
ペット相談、楽器相談、フリーレント、二人入居可、24時間換気システム、閑静な住宅街、保証人不要
|
|
間取図
間取図
|
外観
外観
|
<
その他の画像
>
|
| 交通 | りんかい線 品川シーサイド駅 徒歩7分 |
|---|
| その他の交通 | 東京モノレール 天王洲アイル駅 徒歩10分 京急本線 新馬場駅 徒歩14分 |
| 所在地 |
東京都品川区東品川3丁目
|
| 物件種目 |
賃貸マンション |
| 賃料 |
28.8万円 |
管理費等 |
20,000円 |
| 敷金 / 保証金 |
1ヶ月 / なし |
礼金 |
なし |
| 敷引 |
- |
保証金償却 |
- |
| その他一時金 |
室内清掃費用:108,908円、駐輪場初回ステッカー代:4,400円 |
保険等 |
要 |
| 維持費等 |
口座振替手数料:220円/月 |
| 間取り |
2LDK(LDK16.9帖 洋室5.3帖 洋室3.6帖) |
専有面積 |
58.24m² |
| 築年月 |
2025年3月(築1年3ヶ月)
|
階建 / 階 |
14階建 / 7階 |
| 建物構造 |
RC |
総戸数 |
- |
| 主要採光面 |
東 |
駐車場 |
- |
| バイク置き場 |
- |
駐輪場 |
有 330円/月 |
| 建物名・部屋番号 |
パークアクシス品川天王洲アイル 720 |
ペット |
相談 |
| アピールポイント |
築浅 ペット・ピアノ相談可 追焚 独立洗面台 宅配ロッカー オートロック 浴室乾燥機 エアコン |
| リフォーム履歴 |
- |
| リノベーション履歴 |
- |
| 備考 |
賃貸保証等:加入要(初回:総賃料等の50% 2年目以降:9600円/年)
管理形態/管理員の勤務形態:-/-
フリーレント:1ヶ月
再契約手数料:新賃料1ヶ月 短期違約金有 火災保険:加入要
|
| エネルギー消費性能 |
- |
| 断熱性能 |
- |
| 目安光熱費 |
- |
| バス・トイレ |
バス・トイレ別、浴室乾燥機、オートバス、追焚機能、洗面所独立、洗面所、洗面台、シャワー、温水洗浄便座、トイレ |
| キッチン |
システムキッチン、独立型キッチン、3口以上コンロ、ガスコンロ付、グリル |
| セキュリティー |
モニター付オートロック、オートロック、モニター付インターホン、火災警報器(報知機) |
| 収納 |
全居室収納、収納スペース、シューズインクローゼット、クローゼット、シューズボックス |
| 設備・サービス |
給湯、全居室フローリング、フローリング、エアコン、暖房、冷房 |
| TV・通信 |
インターネット対応、光ファイバー、CS、BS端子 |
| その他 |
宅配BOX、バルコニー、駐輪場、エレベーター |
| 契約期間 |
2年 |
現況 |
空家 |
| 条件等 |
定期借家 |
入居可能時期 |
即時 |
| 更新料 |
なし |
物件番号 |
1100898423 |
| 情報公開日 |
2026年2月12日 |
次回更新予定日 |
2026年5月13日 |
| ケータイ用バーコード |
- スマートフォンでこの物件を見る
- スマートフォンからもこの物件をご覧になれます。
|
※「-」と表示されている項目については、情報提供会社にご確認ください。
| 周辺施設 |
天王洲アイル駅(東京臨海高速鉄道 りんかい線) |
| 距離 |
580m |
写真を見る |
| 周辺施設 |
まいばすけっと東品川3丁目店 |
| 距離 |
450m |
| 周辺施設 |
セブンイレブン東品川3丁目店 |
| 距離 |
170m |
| 周辺施設 |
公益財団法人河野臨床医学研究所附属第三北品川病院 |
| 距離 |
1750m |
| 周辺施設 |
ミアヘルサ保育園ゆらりん東品川 |
| 距離 |
460m |
ここから簡単にお問い合わせをすることができます。
(SSLでの暗号化での送信を希望されるお客さまは
こちら
よりお問い合わせください)
お問い合わせを行う前に
「個人情報の取り扱いについて」を必ずお読みください。
「個人情報の取り扱いについて」に同意いただいた場合は「上記にご同意の上 確認画面へ進む」のボタンをクリックしてください。
個人情報の取り扱いについて
皆さまが送付された個人情報はアットホーム(株)のサーバを経由し、お問い合わせ先の不動産会社にメールまたはFAXにて転送されるためアットホーム(株)にも保管されます。アットホーム(株)で保管された個人情報の取り扱いについては、【こちら】をご覧ください。
また、本画面でご記入いただいた個人情報は、お問い合わせ先の不動産会社でも保管します。 お問い合わせ先の不動産会社が保管する個人情報の取り扱いについては、不動産会社に直接お問い合わせください。
東京都知事免許(6)第76891号 |
|---|
- 交通:
- JR山手線/田町駅 徒歩4分
- 東京都港区芝5丁目20-11 朝倉ビル2F
- TEL:
- 03-6228-4882
- FAX:
- 03-6722-6982
- 所属団体:
- (公社)全日本不動産協会会員(公社)首都圏不動産公正取引協議会加盟
取引態様:仲介  - 00275547
|
- スマートフォンで
この不動産会社を見る

|
- 提携サイト等より掲載されている物件情報につきましては、不動産会社詳細情報にリンクされていないものがあります。
- 物件に関するお問合せは、物件詳細ページの「情報提供会社」に表示されている不動産会社へ直接お願いいたします。
- 間取図は、現況を優先させていただきます。
- 映像は物件の一部を撮影したものです。物件の契約にあたっての最終判断はご自身の判断に基づいて行ってください。
- 仲介手数料について

アットホームは物件情報の適正化に努めております。
内容に誤りがある場合にはこちらへご連絡ください。