東京都豊島区東池袋2丁目(池袋駅)の賃貸:物件詳細
交通 所在地 |
駅徒歩 |
賃料 管理費等 |
敷金/保証金 礼金 |
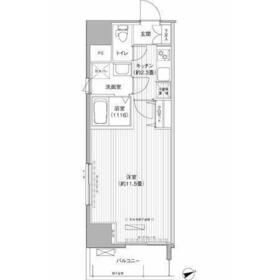
間取り 面積 |
物件種目 築年月 |
|
JR山手線/池袋
東京都豊島区東池袋2丁目
|
8分
|
14.6万円
10,000円
|
1ヶ月 / なし
1ヶ月
|
1K
33.37m²
|
賃貸マンション
2013年8月(築12年3ヶ月)
|
角部屋、全室2面採光、2面採光、閑静な住宅街、外観タイル張り、保証人不要
|
|
間取図
|
外観
建物外観を気になさる方へ、見た目の良い物件です
|
<
その他の画像
>
|
| 交通 | JR山手線 池袋駅 徒歩8分 |
|---|
| その他の交通 | 東武東上線 北池袋駅 徒歩15分 都電荒川線 向原駅 徒歩13分 |
| 所在地 |
東京都豊島区東池袋2丁目
|
| 物件種目 |
賃貸マンション |
| 賃料 |
14.6万円 |
管理費等 |
10,000円 |
| 敷金 / 保証金 |
1ヶ月 / なし |
礼金 |
1ヶ月 |
| 敷引 |
- |
保証金償却 |
- |
| その他一時金 |
なし、鍵交換代等:22,000円~ |
保険等 |
要 |
| 維持費等 |
- |
| 間取り |
1K(洋11.5、K2.3) |
専有面積 |
33.37m² |
| 築年月 |
2013年8月(築12年3ヶ月)
|
階建 / 階 |
14階建 / 12階 |
| 建物構造 |
RC |
総戸数 |
- |
| 主要採光面 |
南東 |
駐車場 |
近有 35,000円/月 |
| バイク置き場 |
- |
駐輪場 |
有 |
| 建物名・部屋番号 |
アクシス池袋 |
ペット |
-
|
| アピールポイント |
こだわりポイント満載のアクシス池袋。セキュリティ面は、オートロック・TVインターホンなどを備え付けているので安心して暮らせます。収納はクロゼット・全居室収納など豊富なので、広々と空間を利用することも可能です。不在時でも荷物を受け取ることができるため、時間調整の手間が省ける宅配ボックスが付いています。室内設備は浴室乾燥機・洗面化粧台など充実した設備を備え付けています。敷地内ごみ置き場により、敷地外のごみ置き場に行く手間が省けます。角部屋は価格以上の満足感があり夏を涼しくのりきれます。新居のお住まいの日にちはどうぞご相談してくださいね。この物件はバルコニー付きでおすすめです。2駅利用できる物件は電車での移動が便利です。魅力も多い賃貸物件はいかがでしょうか。 |
| リフォーム履歴 |
- |
| リノベーション履歴 |
- |
| 備考 |
賃貸保証等:加入要(初回契約時:40%、更新時:1%、月額:1%)
管理形態/管理員の勤務形態:-/-
収納はクロゼット・全居室収納など豊富なので、衣類や履き物の整理がしやすく便利です。室内設備は浴室乾燥機・洗面所独立などが揃っているので、快適に過ごしやすいお部屋になります。共用部には宅配ボックスを設置しているため、外出が多い方でも荷物を受け取ることができます。セキュリティ面は、TVインターホン・オートロックなど充実しているので、防犯対策もばっちりです。楽しいと評判のBS、CSで色々な番組を楽しみましょう。快適な生活がおくれるキッチン付きでご好評の1Kです。角部屋は隣り合う住戸が片側にしかないため、騒音トラブル防止になります。エレベーター付きの物件です。こだわりの条件として多い、駅徒歩8分の物件です。ゆったりとしたお部屋の広さ33.37㎡。2口コンロ付きの物件は短い時間で一気に料理ができるので、一人暮らしの人にもおすすめです。
|
| エネルギー消費性能 |
- |
| 断熱性能 |
- |
| 目安光熱費 |
- |
| バス・トイレ |
バス・トイレ別、浴室乾燥機、追焚機能、洗面所独立、洗面所、温水洗浄便座、トイレ |
| キッチン |
システムキッチン、独立型キッチン、2口コンロ、ガスコンロ可 |
| セキュリティー |
モニター付オートロック、オートロック、モニター付インターホン、ディンプルキー、ダブルロックドア、防犯カメラ |
| 収納 |
全居室収納、収納スペース、クローゼット |
| 設備・サービス |
全居室エアコン、室内洗濯機置場、洗濯機置場、全居室フローリング、フローリング、都市ガス、エアコン、冷房 |
| TV・通信 |
インターネット対応、CS、BS端子 |
| その他 |
宅配BOX、バルコニー、駐輪場、エレベーター |
| 契約期間 |
2年 |
現況 |
空家 |
| 条件等 |
- |
入居可能時期 |
相談 |
| 更新料 |
新賃料 1ヶ月 |
物件番号 |
1101003415 |
| 情報公開日 |
2025年10月19日 |
次回更新予定日 |
2025年11月2日 |
| ケータイ用バーコード |
- スマートフォンでこの物件を見る
- スマートフォンからもこの物件をご覧になれます。
|
※「-」と表示されている項目については、情報提供会社にご確認ください。
| 周辺施設 |
ローソン 池袋一丁目店 |
| 距離 |
704m |
写真を見る |
| 周辺施設 |
日本調剤上池袋薬局 |
| 距離 |
687m |
写真を見る |
| 周辺施設 |
ピーコックストア 上池袋店 |
| 距離 |
709m |
写真を見る |
| 周辺施設 |
宝仙堂ドラッグ池袋店 |
| 距離 |
822m |
写真を見る |
| 周辺施設 |
セブンイレブン 豊島上池袋1丁目店 |
| 距離 |
677m |
写真を見る |
| 周辺施設 |
ファミリーマート ピソ池袋店 |
| 距離 |
868m |
写真を見る |
ここから簡単にお問い合わせをすることができます。
(SSLでの暗号化での送信を希望されるお客さまは
こちら
よりお問い合わせください)
お問い合わせを行う前に
「個人情報の取り扱いについて」を必ずお読みください。
「個人情報の取り扱いについて」に同意いただいた場合は「上記にご同意の上 確認画面へ進む」のボタンをクリックしてください。
個人情報の取り扱いについて
皆さまが送付された個人情報はアットホーム(株)のサーバを経由し、お問い合わせ先の不動産会社にメールまたはFAXにて転送されるためアットホーム(株)にも保管されます。アットホーム(株)で保管された個人情報の取り扱いについては、【こちら】をご覧ください。
また、本画面でご記入いただいた個人情報は、お問い合わせ先の不動産会社でも保管します。 お問い合わせ先の不動産会社が保管する個人情報の取り扱いについては、不動産会社に直接お問い合わせください。
東京都知事免許(1)第107337号 |
|---|
- 交通:
- JR山手線/新宿駅 徒歩1分
- 東京都新宿区西新宿1丁目3-3 品川ステーションビル新宿5F
- TEL:
- 03-6258-0867
- 所属団体:
- (公社)東京都宅地建物取引業協会会員(公社)首都圏不動産公正取引協議会加盟
取引態様:仲介  - 00278932
|
- スマートフォンで
この不動産会社を見る

|
- 提携サイト等より掲載されている物件情報につきましては、不動産会社詳細情報にリンクされていないものがあります。
- 物件に関するお問合せは、物件詳細ページの「情報提供会社」に表示されている不動産会社へ直接お願いいたします。
- 間取図は、現況を優先させていただきます。
- 映像は物件の一部を撮影したものです。物件の契約にあたっての最終判断はご自身の判断に基づいて行ってください。
- 仲介手数料について

アットホームは物件情報の適正化に努めております。
内容に誤りがある場合にはこちらへご連絡ください。