神奈川県横浜市中区初音町1丁目(日ノ出町駅)の賃貸:物件詳細
交通 所在地 |
駅徒歩 |
賃料 管理費等 |
敷金/保証金 礼金 |
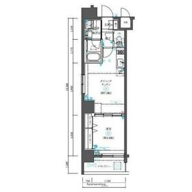
間取り 面積 |
物件種目 築年月 |
|
京急本線/日ノ出町
神奈川県横浜市中区初音町1丁目
|
6分
|
10万円
6,000円
|
なし / なし
1ヶ月
|
1DK
32.96m²
|
賃貸マンション
2012年7月(築13年5ヶ月)
|
分譲タイプ、常時ゴミ出し可能、角部屋、最上階、二人入居可、24時間セキュリティー
|
|
間取図
|
外観
|
<
その他の画像
>
|
| 交通 | 京急本線 日ノ出町駅 徒歩6分 |
|---|
| その他の交通 | JR根岸線 桜木町駅 徒歩14分 ブルーライン 阪東橋駅 徒歩8分 |
| 所在地 |
神奈川県横浜市中区初音町1丁目
|
| 物件種目 |
賃貸マンション |
| 賃料 |
10万円 |
管理費等 |
6,000円 |
| 敷金 / 保証金 |
なし / なし |
礼金 |
1ヶ月 |
| 敷引 |
実費 |
保証金償却 |
- |
| その他一時金 |
鍵交換代:38,500円、24時間サポート:16,500円、書類作成費:11,000円 |
保険等 |
要 2年 |
| 維持費等 |
- |
クレジットカード決済 |
初期費用可 |
| 間取り |
1DK |
専有面積 |
32.96m² |
| 築年月 |
2012年7月(築13年5ヶ月)
|
階建 / 階 |
9階建 / 9階 |
| 建物構造 |
RC |
総戸数 |
- |
| 主要採光面 |
北西 |
駐車場 |
近有 16,500円/月 |
| バイク置き場 |
無 |
駐輪場 |
有 |
| 建物名・部屋番号 |
フェニックス横濱初音町 |
ペット |
-
|
| リフォーム履歴 |
- |
| リノベーション履歴 |
- |
| 備考 |
賃貸保証等:加入要(初回:総賃料50%~)
管理形態/管理員の勤務形態:-/-
ペット飼育不可/短期解約違約金:1ヶ月未満総賃料1ヶ月 NO:111210329
|
| エネルギー消費性能 |
- |
| 断熱性能 |
- |
| 目安光熱費 |
- |
| バス・トイレ |
バス・トイレ別、浴室乾燥機、追焚機能、シャワー付洗面化粧台、洗面所独立、洗面所、洗面台、シャワー、温水洗浄便座、トイレ |
| キッチン |
システムキッチン、2口コンロ、ガスコンロ可 |
| セキュリティー |
オートロック、モニター付インターホン、防犯カメラ |
| 収納 |
収納スペース、クローゼット、シューズボックス |
| 設備・サービス |
室内洗濯機置場、給湯、全居室フローリング、フローリング、都市ガス、エアコン、暖房、冷房 |
| TV・通信 |
インターネット対応、光ファイバー |
| その他 |
宅配BOX、バルコニー、駐輪場、エレベーター |
| 契約期間 |
2年 |
現況 |
居住中 |
| 条件等 |
- |
入居可能時期 |
2026年1月下旬予定 |
| 更新料 |
- |
物件番号 |
1101152516 |
| 情報公開日 |
2025年10月25日 |
次回更新予定日 |
2025年11月8日 |
| ケータイ用バーコード |
- スマートフォンでこの物件を見る
- スマートフォンからもこの物件をご覧になれます。
|
※「-」と表示されている項目については、情報提供会社にご確認ください。
| 周辺施設 |
まいばすけっと黄金町駅北店 |
| 距離 |
206m |
写真を見る |
| 周辺施設 |
セブンイレブン |
| 距離 |
324m |
写真を見る |
| 周辺施設 |
ローソン・スリーエフ 日ノ出町駅前店 |
| 距離 |
296m |
写真を見る |
| 周辺施設 |
ファミリーマート |
| 距離 |
409m |
写真を見る |
| 周辺施設 |
ドンキーホーテ |
| 距離 |
565m |
写真を見る |
| 周辺施設 |
まいばすけっと 永楽町2丁目店 |
| 距離 |
586m |
写真を見る |
| 周辺施設 |
セブン-イレブン 横浜宮川町3丁目店 |
| 距離 |
573m |
写真を見る |
ここから簡単にお問い合わせをすることができます。
(SSLでの暗号化での送信を希望されるお客さまは
こちら
よりお問い合わせください)
お問い合わせを行う前に
「個人情報の取り扱いについて」を必ずお読みください。
「個人情報の取り扱いについて」に同意いただいた場合は「上記にご同意の上 確認画面へ進む」のボタンをクリックしてください。
個人情報の取り扱いについて
皆さまが送付された個人情報はアットホーム(株)のサーバを経由し、お問い合わせ先の不動産会社にメールまたはFAXにて転送されるためアットホーム(株)にも保管されます。アットホーム(株)で保管された個人情報の取り扱いについては、【こちら】をご覧ください。
また、本画面でご記入いただいた個人情報は、お問い合わせ先の不動産会社でも保管します。 お問い合わせ先の不動産会社が保管する個人情報の取り扱いについては、不動産会社に直接お問い合わせください。
神奈川県知事免許(10)第13668号 |
|---|
- 交通:
- JR根岸線/関内駅
- 神奈川県横浜市中区尾上町3丁目46 木村ビル4階
- TEL:
- 045-226-3040
- FAX:
- 045-212-0625
- 所属団体:
- (公社)神奈川県宅地建物取引業協会会員(公社)首都圏不動産公正取引協議会加盟
取引態様:仲介  - 99021171
|
- スマートフォンで
この不動産会社を見る

|
- 提携サイト等より掲載されている物件情報につきましては、不動産会社詳細情報にリンクされていないものがあります。
- 物件に関するお問合せは、物件詳細ページの「情報提供会社」に表示されている不動産会社へ直接お願いいたします。
- 間取図は、現況を優先させていただきます。
- 映像は物件の一部を撮影したものです。物件の契約にあたっての最終判断はご自身の判断に基づいて行ってください。
- 仲介手数料について

アットホームは物件情報の適正化に努めております。
内容に誤りがある場合にはこちらへご連絡ください。