東京都新宿区高田馬場3丁目(下落合駅)の賃貸:物件詳細
交通 所在地 |
駅徒歩 |
賃料 管理費等 |
敷金/保証金 礼金 |
間取り 面積 |
物件種目 築年月 |
|
西武新宿線/下落合
東京都新宿区高田馬場3丁目
|
5分
|
26.6万円
20,000円
|
1ヶ月 / なし
なし
|
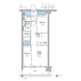
2LDK
43.65m²
|
賃貸マンション
2026年5月
|
ペット相談、常時ゴミ出し可能、高齢者相談、二人入居可、24時間換気システム
|
|
間取図
|
外観
建物外観を気になさる方へ、見た目の良い物件です
|
その他の画像
|
| 交通 | 西武新宿線 下落合駅 徒歩5分 |
|---|
| その他の交通 | JR山手線 高田馬場駅 徒歩10分 東京メトロ東西線 落合駅 徒歩16分 |
| 所在地 |
東京都新宿区高田馬場3丁目
|
| 物件種目 |
賃貸マンション |
| 賃料 |
26.6万円 |
管理費等 |
20,000円 |
| 敷金 / 保証金 |
1ヶ月 / なし |
礼金 |
なし |
| 敷引 |
- |
保証金償却 |
- |
| その他一時金 |
なし |
保険等 |
要 2年 24,000円 |
| 維持費等 |
- |
| 間取り |
2LDK(LDK11.8、洋3.4、洋4) |
専有面積 |
43.65m² |
| 築年月 |
2026年5月
|
階建 / 階 |
5階建 / 3階 |
| 建物構造 |
RC |
総戸数 |
- |
| 主要採光面 |
東 |
駐車場 |
有 35,200円/月 |
| バイク置き場 |
- |
駐輪場 |
有 無料 |
| 建物名・部屋番号 |
ルフォンプログレ高田馬場ノース |
ペット |
相談 |
| アピールポイント |
収納はクロゼット・シューズWIC・全居室収納など豊富なので、衣類や履き物の整理がしやすく便利です。室内設備は洗面所独立・浴室乾燥機など豊富に揃っており、過ごしやすいお部屋になっております。共用部にはゴミ出し24時間OK・宅配ボックスなどが備わっておりとても充実しています。セキュリティ面は、オートロック・TVインターホンなどを設置しているので安全面でも優れております。なんと専有面積が43.65平米もございます。通信速度が速く時間も節約できる光回線を導入しました。空いている駐車場があるので、近くに車を駐車できます。敷地内ごみ置き場もあり、ゴミ捨ても楽々。引越し時は何かとお金がかかりますが、こちらの物件は礼金不要です。広々リビングと充実設備のキッチンのある2LDKです。二人入居が可能な物件です。 |
| リフォーム履歴 |
- |
| リノベーション履歴 |
- |
| 備考 |
賃貸保証等:加入要(収納代行新築プラン(2026年12月末まで)初回保証料賃料共益費等20%、以後1年毎20%)
管理形態/管理員の勤務形態:-/-
共用部にはゴミ出し24時間OK・宅配ボックスなどが揃っており、とても充実しています。室内設備は洗面所独立・浴室乾燥機などが揃っており、とても充実しています。収納はクロゼット・全居室収納・シューズWICなど豊富なので、衣類や履き物の整理がしやすく便利です。セキュリティ面は、TVインターホン・オートロックなど充実しているので、防犯対策もばっちりです。コンロやシンクが一体となっていてお手入れが簡単なシステムキッチンがります。とてもゆとりのある環境が魅力の月26.6万円の物件。CATVは充実のチャンネルが魅力の、夜更かし注意の楽しすぎるコンテンツです。現在建築中の新築物件です。生活スタイルが不規則で忙しい方に嬉しいのが、敷地内ごみ置き場です。全居室フローリングマンションなので、掃除もしやすく便利です。三口コンロが付いたマンションです。
|
| エネルギー消費性能 |
- |
| 断熱性能 |
- |
| 目安光熱費 |
- |
| バス・トイレ |
バス・トイレ別、浴室乾燥機、オートバス、追焚機能、洗面所独立、洗面所、温水洗浄便座、トイレ |
| キッチン |
カウンターキッチン、システムキッチン、3口以上コンロ、ガスコンロ可、グリル |
| セキュリティー |
モニター付オートロック、オートロック、モニター付インターホン、ディンプルキー、ダブルロックドア、防犯カメラ |
| 収納 |
全居室収納、収納スペース、シューズインクローゼット、クローゼット |
| 設備・サービス |
全居室エアコン、エアコン2台以上、室内洗濯機置場、洗濯機置場、全居室フローリング、フローリング、都市ガス、エアコン、冷房 |
| TV・通信 |
インターネット対応、インターネット使用料無料、光ファイバー、ケーブルTV、CS、BS端子 |
| その他 |
宅配BOX、バルコニー、駐輪場、エレベーター |
| 契約期間 |
2年 |
現況 |
未完成 |
| 条件等 |
定期借家 |
入居可能時期 |
2026年5月中旬予定 |
| 更新料 |
- |
物件番号 |
1101236225 |
| 情報公開日 |
2026年3月15日 |
次回更新予定日 |
2026年3月29日 |
| ケータイ用バーコード |
- スマートフォンでこの物件を見る
- スマートフォンからもこの物件をご覧になれます。
|
※「-」と表示されている項目については、情報提供会社にご確認ください。
| 周辺施設 |
西友 高田馬場店 |
| 距離 |
400m |
写真を見る |
| 周辺施設 |
セブンイレブン 高田馬場3丁目中央店 |
| 距離 |
290m |
写真を見る |
| 周辺施設 |
どらっぐぱぱす 下落合店 |
| 距離 |
410m |
写真を見る |
| 周辺施設 |
新目白通郵便局 |
| 距離 |
451m |
写真を見る |
| 周辺施設 |
新宿区立戸塚第三小学校 |
| 距離 |
157m |
写真を見る |
| 周辺施設 |
CAFE de CRIE(カフェ・ド・クリエ) 新宿ガーデンタワー店 |
| 距離 |
1412m |
写真を見る |
ここから簡単にお問い合わせをすることができます。
(SSLでの暗号化での送信を希望されるお客さまは
こちら
よりお問い合わせください)
お問い合わせを行う前に
「個人情報の取り扱いについて」を必ずお読みください。
「個人情報の取り扱いについて」に同意いただいた場合は「上記にご同意の上 確認画面へ進む」のボタンをクリックしてください。
個人情報の取り扱いについて
皆さまが送付された個人情報はアットホーム(株)のサーバを経由し、お問い合わせ先の不動産会社にメールまたはFAXにて転送されるためアットホーム(株)にも保管されます。アットホーム(株)で保管された個人情報の取り扱いについては、【こちら】をご覧ください。
また、本画面でご記入いただいた個人情報は、お問い合わせ先の不動産会社でも保管します。 お問い合わせ先の不動産会社が保管する個人情報の取り扱いについては、不動産会社に直接お問い合わせください。
東京都知事免許(1)第107337号 |
|---|
- 交通:
- JR山手線/新橋駅 徒歩5分
- 東京都中央区銀座8丁目11-1 GINZA GS BLD.2 7階
- TEL:
- 03-6281-4770
- FAX:
- 03-6281-4771
- 所属団体:
- (公社)東京都宅地建物取引業協会会員(公社)首都圏不動産公正取引協議会加盟
取引態様:仲介  - 00271811
|
- スマートフォンで
この不動産会社を見る

|
- 提携サイト等より掲載されている物件情報につきましては、不動産会社詳細情報にリンクされていないものがあります。
- 物件に関するお問合せは、物件詳細ページの「情報提供会社」に表示されている不動産会社へ直接お願いいたします。
- 間取図は、現況を優先させていただきます。
- 映像は物件の一部を撮影したものです。物件の契約にあたっての最終判断はご自身の判断に基づいて行ってください。
- 仲介手数料について

アットホームは物件情報の適正化に努めております。
内容に誤りがある場合にはこちらへご連絡ください。