東京都台東区元浅草3丁目(新御徒町駅)の賃貸:物件詳細
交通 所在地 |
駅徒歩 |
賃料 管理費等 |
敷金/保証金 礼金 |
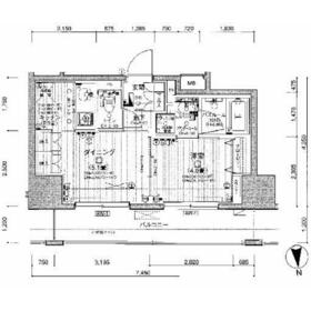
間取り 面積 |
物件種目 築年月 |
|
つくばエクスプレス/新御徒町
東京都台東区元浅草3丁目
|
5分
|
14.5万円
15,000円
|
なし / なし
1ヶ月
|
1DK
30.45m²
|
賃貸マンション
2008年8月(築17年8ヶ月)
|
ペット相談、24時間換気システム、閑静な住宅街、外観タイル張り、IT重説対応物件、保証人不要
|
|
間取図
|
外観
|
<
その他の画像
>
|
| 交通 | つくばエクスプレス 新御徒町駅 徒歩5分 |
|---|
| その他の交通 | 都営大江戸線 蔵前駅 徒歩8分 東京メトロ銀座線 田原町駅 徒歩10分 |
| 所在地 |
東京都台東区元浅草3丁目
|
| 物件種目 |
賃貸マンション |
| 賃料 |
14.5万円 |
管理費等 |
15,000円 |
| 敷金 / 保証金 |
なし / なし |
礼金 |
1ヶ月 |
| 敷引 |
- |
保証金償却 |
- |
| その他一時金 |
契約事務手数料:11,000円、鍵交換代等:38,500円~ |
保険等 |
要 2年 18,000円 |
| 維持費等 |
24時間サポート:1,000円/月 |
クレジットカード決済 |
初期費用可 |
| 間取り |
1DK(DK7.4、洋4) |
専有面積 |
30.45m² |
| 築年月 |
2008年8月(築17年8ヶ月)
|
階建 / 階 |
14階建 / 12階 |
| 建物構造 |
RC |
総戸数 |
- |
| 主要採光面 |
北 |
駐車場 |
- |
| バイク置き場 |
- |
駐輪場 |
有 無料 |
| 建物名・部屋番号 |
日神デュオステージ新御徒町 1203 |
ペット |
小型犬可・ 猫可 |
| リフォーム履歴 |
- |
| リノベーション履歴 |
- |
| 備考 |
賃貸保証等:加入要(初回保証料:賃料総額50% 月額保証料:800円 口座振替手数料:220円/月)
管理形態/管理員の勤務形態:-/-
IT重説対応物件
退去時クリーニング費55000円、エアコンクリーニング費16500円/台は借主負担となります。
更新事務手数料:11000円
ペット飼育:敷金1ヶ月積増(償却)
短期解約違約金:1年未満解約の場合、賃料等1ヶ月分
ご入居される方のご内容によって保証会社等の契約条件に変動あり
共用部分の付随設備の詳細(空き状況・料金等)は要確認
借主様の瑕疵による汚れ・キズ等は別途ご負担いただきます。
|
| エネルギー消費性能 |
- |
| 断熱性能 |
- |
| 目安光熱費 |
- |
| バス・トイレ |
バス・トイレ別、浴室乾燥機、洗面所独立、洗面所、シャワー、トイレ |
| キッチン |
システムキッチン、独立型キッチン、IHクッキングヒーター、2口コンロ |
| セキュリティー |
モニター付オートロック、オートロック、モニター付インターホン、防犯カメラ |
| 収納 |
収納スペース、クローゼット、シューズボックス |
| 設備・サービス |
室内洗濯機置場、洗濯機置場、都市ガス給湯、給湯、全居室フローリング、フローリング、都市ガス、エアコン、冷房、間接照明 |
| TV・通信 |
インターネット対応、光ファイバー、CS、BS端子 |
| その他 |
宅配BOX、バルコニー、駐輪場、エレベーター |
| 契約期間 |
2年 |
現況 |
居住中 |
| 条件等 |
- |
入居可能時期 |
2026年4月中旬予定 |
| 仲介手数料 |
不要 |
|
|
| 更新料 |
新賃料 1ヶ月 |
物件番号 |
1101340025 |
| 情報公開日 |
2026年3月15日 |
次回更新予定日 |
2026年3月29日 |
| ケータイ用バーコード |
- スマートフォンでこの物件を見る
- スマートフォンからもこの物件をご覧になれます。
|
※「-」と表示されている項目については、情報提供会社にご確認ください。
| 周辺施設 |
まいばすけっと 台東寿1丁目店 |
| 距離 |
231m |
写真を見る |
| 周辺施設 |
ローソン 元浅草三丁目店 |
| 距離 |
78m |
写真を見る |
| 周辺施設 |
マツモトキヨシ 新御徒町店 |
| 距離 |
216m |
写真を見る |
| 周辺施設 |
ドコモショップ 新御徒町店 |
| 距離 |
182m |
写真を見る |
| 周辺施設 |
大阪王将稲荷町駅前店 |
| 距離 |
727m |
写真を見る |
| 周辺施設 |
寿三丁目児童遊園 |
| 距離 |
612m |
写真を見る |
| 周辺施設 |
浅草演芸ホール |
| 距離 |
1353m |
写真を見る |
ここから簡単にお問い合わせをすることができます。
(SSLでの暗号化での送信を希望されるお客さまは
こちら
よりお問い合わせください)
お問い合わせを行う前に
「個人情報の取り扱いについて」を必ずお読みください。
「個人情報の取り扱いについて」に同意いただいた場合は「上記にご同意の上 確認画面へ進む」のボタンをクリックしてください。
個人情報の取り扱いについて
皆さまが送付された個人情報はアットホーム(株)のサーバを経由し、お問い合わせ先の不動産会社にメールまたはFAXにて転送されるためアットホーム(株)にも保管されます。アットホーム(株)で保管された個人情報の取り扱いについては、【こちら】をご覧ください。
また、本画面でご記入いただいた個人情報は、お問い合わせ先の不動産会社でも保管します。 お問い合わせ先の不動産会社が保管する個人情報の取り扱いについては、不動産会社に直接お問い合わせください。
東京都知事免許(4)第88642号 |
|---|
- 交通:
- 都営浅草線/浅草駅 徒歩1分
- 東京都台東区雷門2丁目4-1 RAID浅草雷門3F
- TEL:
- 03-5246-3440
- FAX:
- 03-5246-3441
- 所属団体:
- (公社)全日本不動産協会会員(公社)首都圏不動産公正取引協議会加盟
取引態様:仲介  - 00278233
|
- スマートフォンで
この不動産会社を見る

|
- 提携サイト等より掲載されている物件情報につきましては、不動産会社詳細情報にリンクされていないものがあります。
- 物件に関するお問合せは、物件詳細ページの「情報提供会社」に表示されている不動産会社へ直接お願いいたします。
- 間取図は、現況を優先させていただきます。
- 映像は物件の一部を撮影したものです。物件の契約にあたっての最終判断はご自身の判断に基づいて行ってください。
- 仲介手数料について

アットホームは物件情報の適正化に努めております。
内容に誤りがある場合にはこちらへご連絡ください。