東京都文京区本郷2丁目(本郷三丁目駅)の賃貸:物件詳細
交通 所在地 |
駅徒歩 |
賃料 管理費等 |
敷金/保証金 礼金 |
間取り 面積 |
物件種目 築年月 |
|
東京メトロ丸ノ内線/本郷三丁目
東京都文京区本郷2丁目
|
4分
|
15.6万円
15,000円
|
1ヶ月 / なし
1ヶ月
|
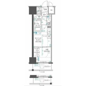
1DK
25.77m²
|
賃貸マンション
2026年2月
|
ペット相談、分譲タイプ、常時ゴミ出し可能、二人入居可、24時間換気システム、保証人不要
|
|
間取図
|
外観
共有部分
|
<
その他の画像
>
|
| 交通 | 東京メトロ丸ノ内線 本郷三丁目駅 徒歩4分 |
|---|
| その他の交通 | 東京メトロ丸ノ内線 御茶ノ水駅 徒歩8分 都営三田線 水道橋駅 徒歩8分 |
| 所在地 |
東京都文京区本郷2丁目
|
| 物件種目 |
賃貸マンション |
| 賃料 |
15.6万円 |
管理費等 |
15,000円 |
| 敷金 / 保証金 |
1ヶ月 / なし |
礼金 |
1ヶ月 |
| 敷引 |
- |
保証金償却 |
- |
| その他一時金 |
なし |
保険等 |
要 |
| 維持費等 |
24時間緊急対応費:1,735円/月 |
| 間取り |
1DK(洋室3.2帖 DK5.5帖) |
専有面積 |
25.77m² |
| 築年月 |
2026年2月
|
階建 / 階 |
15階建 / 5階 |
| 建物構造 |
RC |
総戸数 |
58戸 |
| 主要採光面 |
西 |
駐車場 |
有 31,900円/月 |
| バイク置き場 |
有 2,000円/月 |
駐輪場 |
有 500円/月 |
| 建物名・部屋番号 |
ZOOM本郷(ズーム本郷) 504 |
ペット |
相談 |
| アピールポイント |
本郷三丁目駅徒歩4分 複数路線利用可能 ペット飼育可 便利なスマートロック バストイレ別 独立洗面台 |
| リフォーム履歴 |
- |
| リノベーション履歴 |
- |
| 備考 |
賃貸保証等:加入要(初回:総賃料等の50% 月額:総賃料等の1%)
管理形態/管理員の勤務形態:-/-
1年未満短期解約違約金1ヶ月 T-PASSPORT加入必須月額1735-1835円 駐輪場、バイク置場:契約時2年間分一括支払い ペット飼育の場合退去時クリーニング及び消臭費用が必要
|
| エネルギー消費性能 |
- |
| 断熱性能 |
- |
| 目安光熱費 |
- |
| バス・トイレ |
バス・トイレ別、浴室暖房、浴室乾燥機、オートバス、追焚機能、洗面所独立、洗面所、洗面台、シャワー、温水洗浄便座、トイレ |
| キッチン |
システムキッチン、2口コンロ、ガスコンロ付 |
| セキュリティー |
モニター付オートロック、オートロック、モニター付インターホン、非接触型ICカードキー、防犯カメラ、火災警報器(報知機) |
| 収納 |
全居室収納、収納スペース、クローゼット、シューズボックス |
| 設備・サービス |
室内洗濯機置場、給湯、全居室フローリング、フローリング、都市ガス、エアコン、暖房、冷房、人感センサー付照明、間接照明、照明器具 |
| TV・通信 |
インターネット対応、インターネット使用料無料、光ファイバー、マルチメディアコンセント |
| その他 |
宅配BOX、バイク置き場、バルコニー、駐輪場、内廊下、エレベーター |
| 契約期間 |
2年 |
現況 |
空家 |
| 条件等 |
- |
入居可能時期 |
即時 |
| 更新料 |
新賃料 1ヶ月 |
物件番号 |
1102041423 |
| 情報公開日 |
2026年2月14日 |
次回更新予定日 |
2026年3月15日 |
| ケータイ用バーコード |
- スマートフォンでこの物件を見る
- スマートフォンからもこの物件をご覧になれます。
|
※「-」と表示されている項目については、情報提供会社にご確認ください。
| 周辺施設 |
本郷三丁目駅(都営地下鉄 大江戸線) |
| 距離 |
250m |
写真を見る |
| 周辺施設 |
まいばすけっと本郷3丁目店 |
| 距離 |
60m |
| 周辺施設 |
セブンイレブン文京本郷3丁目店 |
| 距離 |
150m |
| 周辺施設 |
順天堂大学医学部附属順天堂医院 |
| 距離 |
400m |
| 周辺施設 |
マジオひまわり保育園本郷 |
| 距離 |
280m |
ここから簡単にお問い合わせをすることができます。
(SSLでの暗号化での送信を希望されるお客さまは
こちら
よりお問い合わせください)
お問い合わせを行う前に
「個人情報の取り扱いについて」を必ずお読みください。
「個人情報の取り扱いについて」に同意いただいた場合は「上記にご同意の上 確認画面へ進む」のボタンをクリックしてください。
個人情報の取り扱いについて
皆さまが送付された個人情報はアットホーム(株)のサーバを経由し、お問い合わせ先の不動産会社にメールまたはFAXにて転送されるためアットホーム(株)にも保管されます。アットホーム(株)で保管された個人情報の取り扱いについては、【こちら】をご覧ください。
また、本画面でご記入いただいた個人情報は、お問い合わせ先の不動産会社でも保管します。 お問い合わせ先の不動産会社が保管する個人情報の取り扱いについては、不動産会社に直接お問い合わせください。
東京都知事免許(6)第76891号 |
|---|
- 交通:
- JR総武線/御茶ノ水駅 徒歩1分
- 東京都千代田区神田駿河台2丁目2-2 キントービル5F
- TEL:
- 03-6228-4882
- FAX:
- 03-3294-9836
- 所属団体:
- (公社)全日本不動産協会会員(公社)首都圏不動産公正取引協議会加盟
取引態様:仲介  - 00275544
|
- スマートフォンで
この不動産会社を見る

|
- 提携サイト等より掲載されている物件情報につきましては、不動産会社詳細情報にリンクされていないものがあります。
- 物件に関するお問合せは、物件詳細ページの「情報提供会社」に表示されている不動産会社へ直接お願いいたします。
- 間取図は、現況を優先させていただきます。
- 映像は物件の一部を撮影したものです。物件の契約にあたっての最終判断はご自身の判断に基づいて行ってください。
- 仲介手数料について

アットホームは物件情報の適正化に努めております。
内容に誤りがある場合にはこちらへご連絡ください。