福岡県福岡市南区大橋3丁目(大橋駅)の賃貸:物件詳細
交通 所在地 |
駅徒歩 |
賃料 管理費等 |
敷金/保証金 礼金 |
間取り 面積 |
物件種目 築年月 |
|
西鉄天神大牟田線/大橋
福岡県福岡市南区大橋3丁目
|
13分
|
8.4万円
5,000円
|
なし / なし
2ヶ月
|
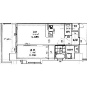
1LDK
34.71m²
|
賃貸マンション
2026年2月
|
常時ゴミ出し可能、角部屋、二人入居可、24時間換気システム、閑静な住宅街、IT重説対応物件
|
|
間取図
|
外観
|
<
その他の画像
>
|
| 交通 | 西鉄天神大牟田線 大橋駅 徒歩13分 |
|---|
| その他の交通 | 西鉄天神大牟田線 井尻駅 徒歩23分 JR鹿児島本線 竹下駅 徒歩27分 |
| 所在地 |
福岡県福岡市南区大橋3丁目
|
| 物件種目 |
賃貸マンション |
| 賃料 |
8.4万円 |
管理費等 |
5,000円 |
| 敷金 / 保証金 |
なし / なし |
礼金 |
2ヶ月 |
| 敷引 |
- |
保証金償却 |
- |
| その他一時金 |
なし |
保険等 |
不要 |
| 維持費等 |
町会費:300円/月、ライフサポート24+:880円/月 |
クレジットカード決済 |
初期費用可 |
| 間取り |
1LDK(洋室4.3畳/LDK9.6畳) |
専有面積 |
34.71m² |
| 築年月 |
2026年2月
|
階建 / 階 |
11階建 / 2階 |
| 建物構造 |
RC |
総戸数 |
- |
| 主要採光面 |
|
駐車場 |
有 13,200円/月 |
| バイク置き場 |
- |
駐輪場 |
有 |
| 建物名・部屋番号 |
ラシュール・イン大橋Ⅱ |
ペット |
-
|
| アピールポイント |
はじめまして。(株)トーマスリビングです。弊社は福岡市と北九州市を中心に福岡県内に20店舗以上の直営賃貸ショップを展開する不動産会社です。その他、物件管理・不動産売買・リノベーションの事業をグループ展開しております。賃貸仲介においては、弊社の管理物件のみならず、他社様の管理物件でもご紹介をさせて頂いております。お客様に提案する物件の優先度はお客様の希望を第一に考えております。インターネットによる物件サイトで見かけた他社様の物件でもお気軽にお問合せ下さい。また、業界では数少ない【積水ハウスのシャーメゾン】を取り扱う事が出来る【シャーメゾンショップ】に半数以上の店舗が認定されております。積水ハウスや大和ハウスなど、メーカー様の物件であっても是非、ご相談下さい。ネット上では分かりにくい初期費用の詳細説明や分割のご相談にも乗らせて頂きます。当店ではクレジットカードによる支払いもご利用頂けます。【お申込み後、にわざわざ店頭に来て頂く必要】も【銀行へお振込みに行って頂く必要】も御座いません。支払い回数も一括・分割お選び頂けますので、高い初期費用がお部屋探しを邪魔している方にも、ご好評頂いております |
| リフォーム履歴 |
- |
| リノベーション履歴 |
- |
| 備考 |
賃貸保証等:加入要(【オリコによる審査・口座振替】 ・初回保証料:賃料合計の50%(最低保証料なし) ・月額支払手数料:賃料合計の1.2%(変動費がある場合変動費含む合計の1.2%) ※更新料1年毎10,000円)
管理形態/管理員の勤務形態:-/-
IT重説対応物件
(株)トーマスリビング 直営店20店舗以上!
当社は、自社の管理物件だけでなく、他社管理物件も含め、お客様が望むお部屋を優先して探し尽くします。
|
| エネルギー消費性能 |
- |
| 断熱性能 |
- |
| 目安光熱費 |
- |
| バス・トイレ |
バス・トイレ別、浴室暖房、浴室乾燥機、シャワー付洗面化粧台、洗面所独立、洗面台、シャワー、温水洗浄便座、トイレ |
| キッチン |
カウンターキッチン、システムキッチン、2口コンロ、ガスコンロ付 |
| セキュリティー |
モニター付オートロック、オートロック、モニター付インターホン、防犯カメラ |
| 収納 |
収納スペース、クローゼット、シューズボックス |
| 設備・サービス |
室内洗濯機置場、洗濯機置場、給湯、全居室フローリング、フローリング、都市ガス、エアコン、暖房、人感センサー付照明 |
| TV・通信 |
インターネット使用料無料 |
| その他 |
宅配BOX、バルコニー、駐輪場、エレベーター |
| 契約期間 |
2年 |
現況 |
未完成 |
| 条件等 |
- |
入居可能時期 |
2026年2月上旬予定 |
| 更新料 |
- |
物件番号 |
1102044717 |
| 情報公開日 |
2025年12月4日 |
次回更新予定日 |
2025年12月24日 |
| ケータイ用バーコード |
- スマートフォンでこの物件を見る
- スマートフォンからもこの物件をご覧になれます。
|
※「-」と表示されている項目については、情報提供会社にご確認ください。
| 周辺施設 |
セブンイレブン 福岡みやけ通り店 |
| 距離 |
48m |
写真を見る |
| 周辺施設 |
Maxvalu Express(マックスバリュ エクスプレス) 大橋店 |
| 距離 |
590m |
写真を見る |
ここから簡単にお問い合わせをすることができます。
(SSLでの暗号化での送信を希望されるお客さまは
こちら
よりお問い合わせください)
お問い合わせを行う前に
「個人情報の取り扱いについて」を必ずお読みください。
「個人情報の取り扱いについて」に同意いただいた場合は「上記にご同意の上 確認画面へ進む」のボタンをクリックしてください。
個人情報の取り扱いについて
皆さまが送付された個人情報はアットホーム(株)のサーバを経由し、お問い合わせ先の不動産会社にメールまたはFAXにて転送されるためアットホーム(株)にも保管されます。アットホーム(株)で保管された個人情報の取り扱いについては、【こちら】をご覧ください。
また、本画面でご記入いただいた個人情報は、お問い合わせ先の不動産会社でも保管します。 お問い合わせ先の不動産会社が保管する個人情報の取り扱いについては、不動産会社に直接お問い合わせください。
国土交通大臣免許(3)第8479号 |
|---|
- 交通:
- 地下鉄空港線/博多駅
- 福岡県福岡市博多区博多駅前2丁目15-3 吉川ビル1階
- TEL:
- 092-477-6257
- 所属団体:
- (公社)全日本不動産協会会員(一社)九州不動産公正取引協議会加盟
取引態様:仲介  - 80505912
|
- スマートフォンで
この不動産会社を見る

|
- 提携サイト等より掲載されている物件情報につきましては、不動産会社詳細情報にリンクされていないものがあります。
- 物件に関するお問合せは、物件詳細ページの「情報提供会社」に表示されている不動産会社へ直接お願いいたします。
- 間取図は、現況を優先させていただきます。
- 映像は物件の一部を撮影したものです。物件の契約にあたっての最終判断はご自身の判断に基づいて行ってください。
- 仲介手数料について

アットホームは物件情報の適正化に努めております。
内容に誤りがある場合にはこちらへご連絡ください。