東京都世田谷区等々力8丁目(等々力駅)の賃貸:物件詳細
交通 所在地 |
駅徒歩 |
賃料 管理費等 |
敷金/保証金 礼金 |
間取り 面積 |
物件種目 築年月 |
|
東急大井町線/等々力
東京都世田谷区等々力8丁目
|
15分
|
28.5万円
10,000円
|
1ヶ月 / なし
なし
|
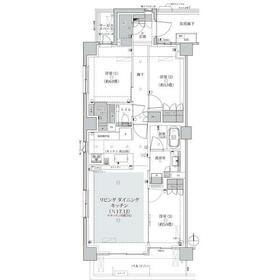
3LDK
78.79m²
|
賃貸マンション
2021年7月(築4年9ヶ月)
|
分譲タイプ、角部屋、南向き、振分、二人入居可、3面採光、2面採光、24時間換気システム、外観タイル張り、IT重説対応物件
|
|
間取図
|
外観
|
<
その他の画像
>
|
| 交通 | 東急大井町線 等々力駅 徒歩15分 |
|---|
| その他の交通 | 東急大井町線 尾山台駅 徒歩15分 東急大井町線 上野毛駅 徒歩16分 |
| 所在地 |
東京都世田谷区等々力8丁目
|
| 物件種目 |
賃貸マンション |
| 賃料 |
28.5万円 |
管理費等 |
10,000円 |
| 敷金 / 保証金 |
1ヶ月 / なし |
礼金 |
なし |
| 敷引 |
- |
保証金償却 |
- |
| その他一時金 |
なし |
保険等 |
要 |
| 維持費等 |
- |
| 間取り |
3LDK(洋室6畳/洋室5.5畳/洋室5畳/LDK20.6畳) |
専有面積 |
78.79m² |
| 築年月 |
2021年7月(築4年9ヶ月)
|
階建 / 階 |
7階建 / 1階 |
| 建物構造 |
RC |
総戸数 |
- |
| 主要採光面 |
南 |
駐車場 |
- |
| バイク置き場 |
- |
駐輪場 |
有 |
| 建物名・部屋番号 |
パークホームズ等々力八丁目 |
ペット |
-
|
| リフォーム履歴 |
- |
| リノベーション履歴 |
- |
| 備考 |
管理形態/管理員の勤務形態:-/-
IT重説対応物件
保証会社利用必須・初回:賃料等総額の50%(年間:10000円)/家賃口座振替手数料:月額220円/室内清掃費:147337円(敷金引)/鍵交換費用:33000円/等々力小学校・東深沢中学校学区域/東京の高級賃貸・ファミリー物件はモノムスへ/お問合せは03-6805-2123まで/転勤・審査・交渉等お任せ下さい/他にも気になる物件がございましたら一括でご案内致します
☆ファミリータイプ専門の不動産会社モノムス☆ 入居後も安心して生活できるよう継続サポート 当日内見もご相談下さい LINEでのお問い合わせも大歓迎です お急ぎの方は03-6805-2123までお気軽に
|
| エネルギー消費性能 |
- |
| 断熱性能 |
- |
| 目安光熱費 |
- |
| バス・トイレ |
バス・トイレ別、浴室暖房、浴室乾燥機、追焚機能、洗面所独立、洗面台、シャワー、温水洗浄便座、トイレ |
| キッチン |
カウンターキッチン、システムキッチン、食器洗浄乾燥機、食器乾燥機、ディスポーザー、3口以上コンロ、ガスコンロ付、グリル |
| セキュリティー |
モニター付オートロック、オートロック、モニター付インターホン、防犯カメラ |
| 収納 |
全居室収納、ウォークインクローゼット、収納スペース、シューズインクローゼット、クローゼット、シューズボックス |
| 設備・サービス |
床暖房、室内洗濯機置場、洗濯機置場、給湯、全居室フローリング、フローリング、都市ガス、エアコン、暖房、冷房、人感センサー付照明、ダウンライト |
| TV・通信 |
- |
| その他 |
宅配BOX、バルコニー、駐輪場、エレベーター |
| 契約期間 |
2年 |
現況 |
空家 |
| 条件等 |
- |
入居可能時期 |
2026年4月下旬予定 |
| 更新料 |
新賃料 1ヶ月 |
物件番号 |
1102990124 |
| 情報公開日 |
2026年3月24日 |
次回更新予定日 |
2026年4月10日 |
| ケータイ用バーコード |
- スマートフォンでこの物件を見る
- スマートフォンからもこの物件をご覧になれます。
|
※「-」と表示されている項目については、情報提供会社にご確認ください。
| 周辺施設 |
世田谷区立等々力小学校 |
| 距離 |
725m |
写真を見る |
| 周辺施設 |
世田谷区立東深沢中学校 |
| 距離 |
918m |
写真を見る |
| 周辺施設 |
SuperValue(スーパーバリュー) 等々力店 |
| 距離 |
671m |
写真を見る |
| 周辺施設 |
サミットストア 深沢坂上店 |
| 距離 |
555m |
写真を見る |
| 周辺施設 |
どらっぐぱぱす 世田谷中町店 |
| 距離 |
273m |
写真を見る |
| 周辺施設 |
セブンイレブン 等々力駅前店 |
| 距離 |
356m |
写真を見る |
ここから簡単にお問い合わせをすることができます。
(SSLでの暗号化での送信を希望されるお客さまは
こちら
よりお問い合わせください)
お問い合わせを行う前に
「個人情報の取り扱いについて」を必ずお読みください。
「個人情報の取り扱いについて」に同意いただいた場合は「上記にご同意の上 確認画面へ進む」のボタンをクリックしてください。
個人情報の取り扱いについて
皆さまが送付された個人情報はアットホーム(株)のサーバを経由し、お問い合わせ先の不動産会社にメールまたはFAXにて転送されるためアットホーム(株)にも保管されます。アットホーム(株)で保管された個人情報の取り扱いについては、【こちら】をご覧ください。
また、本画面でご記入いただいた個人情報は、お問い合わせ先の不動産会社でも保管します。 お問い合わせ先の不動産会社が保管する個人情報の取り扱いについては、不動産会社に直接お問い合わせください。
東京都知事免許(1)第106384号 |
|---|
- 交通:
- 東急田園都市線/駒沢大学駅 徒歩1分
- 東京都世田谷区駒沢1丁目5-16
- TEL:
- 03-6805-2123
- 所属団体:
- (公社)東京都宅地建物取引業協会会員(公社)首都圏不動産公正取引協議会加盟
取引態様:仲介  - 00270703
|
- スマートフォンで
この不動産会社を見る

|
- 提携サイト等より掲載されている物件情報につきましては、不動産会社詳細情報にリンクされていないものがあります。
- 物件に関するお問合せは、物件詳細ページの「情報提供会社」に表示されている不動産会社へ直接お願いいたします。
- 間取図は、現況を優先させていただきます。
- 映像は物件の一部を撮影したものです。物件の契約にあたっての最終判断はご自身の判断に基づいて行ってください。
- 仲介手数料について

アットホームは物件情報の適正化に努めております。
内容に誤りがある場合にはこちらへご連絡ください。