東京都目黒区八雲1丁目(都立大学駅)の賃貸:物件詳細
交通 所在地 |
駅徒歩 |
賃料 管理費等 |
敷金/保証金 礼金 |
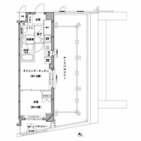
間取り 面積 |
物件種目 築年月 |
|
東急東横線/都立大学
東京都目黒区八雲1丁目
|
6分
|
15.7万円
10,000円
|
15.7万円 / なし
なし
|
1DK
32.57m²
|
賃貸マンション
2005年4月(築21年)
|
常時ゴミ出し可能、角部屋
|
|
間取図
|
外観
|
<
その他の画像
>
|
| 交通 | 東急東横線 都立大学駅 徒歩6分 |
|---|
| その他の交通 | 東急東横線 自由が丘駅 徒歩15分 |
| 所在地 |
東京都目黒区八雲1丁目
|
| 物件種目 |
賃貸マンション |
| 賃料 |
15.7万円 |
管理費等 |
10,000円 |
| 敷金 / 保証金 |
15.7万円 / なし |
礼金 |
なし |
| 敷引 |
- |
保証金償却 |
- |
| その他一時金 |
清掃費:35,200円、エアコン清掃費:11,000円、鍵交換代等:33,000円~ |
保険等 |
要 2年 16,550円 |
| 維持費等 |
- |
| 間取り |
1DK(DK7.6、洋4.9) |
専有面積 |
32.57m² |
| 築年月 |
2005年4月(築21年)
|
階建 / 階 |
7階建 / 6階 |
| 建物構造 |
RC |
総戸数 |
- |
| 主要採光面 |
|
駐車場 |
無 |
| バイク置き場 |
- |
駐輪場 |
- |
| 建物名・部屋番号 |
|
ペット |
-
|
| リフォーム履歴 |
- |
| リノベーション履歴 |
- |
| 備考 |
賃貸保証等:加入要(エポスカード エポスカード(RP) 保証料:賃料等の50%(最低2万)、月額保証料:賃料等の1%(更新料無))
管理形態/管理員の勤務形態:-/-
セキュリティ面は、TVインターホン・オートロックなどを設置しているので安全面でも優れております。共用部には宅配ボックス・ゴミ出し24時間OKなどが揃っており、とても充実しています。バストイレ別の物件です。通勤時間を短縮したいなら、東急東横線都立大学周辺でお部屋探しをするのも手です。数多くの賃貸情報がありますので、この機会にお引っ越しをご検討ください。
セキュリティ面は、オートロック・TVインターホンなどを設置しているので安全面でも優れております。室内設備はエアコン・追い焚き・ネット使用料不要など豊富に揃っており、過ごしやすいお部屋になっております。32.57㎡ある専有面積で暮らせます。東急東横線都立大学エリア周辺にてこれからお住まいを検索するなら、03-6228-5878からクレディフォルムにご連絡下さい。
|
| エネルギー消費性能 |
- |
| 断熱性能 |
- |
| 目安光熱費 |
- |
| バス・トイレ |
バス・トイレ別、追焚機能、トイレ |
| キッチン |
浄水器 |
| セキュリティー |
モニター付オートロック、オートロック、モニター付インターホン、ディンプルキー、防犯カメラ |
| 収納 |
- |
| 設備・サービス |
室内洗濯機置場、洗濯機置場、エアコン |
| TV・通信 |
インターネット使用料無料、CS |
| その他 |
宅配BOX、ルーフバルコニー、バルコニー、エレベーター |
| 契約期間 |
2年 |
現況 |
居住中 |
| 条件等 |
- |
入居可能時期 |
2026年5月下旬予定 |
| 更新料 |
新賃料 1ヶ月 |
物件番号 |
1103133325 |
| 情報公開日 |
2026年3月17日 |
次回更新予定日 |
2026年3月31日 |
| ケータイ用バーコード |
- スマートフォンでこの物件を見る
- スマートフォンからもこの物件をご覧になれます。
|
※「-」と表示されている項目については、情報提供会社にご確認ください。
| 周辺施設 |
まいばすけっと 自由が丘1丁目店 |
| 距離 |
927m |
写真を見る |
ここから簡単にお問い合わせをすることができます。
(SSLでの暗号化での送信を希望されるお客さまは
こちら
よりお問い合わせください)
お問い合わせを行う前に
「個人情報の取り扱いについて」を必ずお読みください。
「個人情報の取り扱いについて」に同意いただいた場合は「上記にご同意の上 確認画面へ進む」のボタンをクリックしてください。
個人情報の取り扱いについて
皆さまが送付された個人情報はアットホーム(株)のサーバを経由し、お問い合わせ先の不動産会社にメールまたはFAXにて転送されるためアットホーム(株)にも保管されます。アットホーム(株)で保管された個人情報の取り扱いについては、【こちら】をご覧ください。
また、本画面でご記入いただいた個人情報は、お問い合わせ先の不動産会社でも保管します。 お問い合わせ先の不動産会社が保管する個人情報の取り扱いについては、不動産会社に直接お問い合わせください。
東京都知事免許(4)第90149号 |
|---|
- 交通:
- 東京メトロ銀座線/銀座駅 徒歩2分
- 東京都中央区銀座6丁目12-15 いちご銀座612ビル4F
- TEL:
- 03-6228-5878
- FAX:
- 03-3573-3444
- 所属団体:
- (公社)東京都宅地建物取引業協会会員(公社)首都圏不動産公正取引協議会加盟
取引態様:仲介  - 00611602
|
- スマートフォンで
この不動産会社を見る

|
- 提携サイト等より掲載されている物件情報につきましては、不動産会社詳細情報にリンクされていないものがあります。
- 物件に関するお問合せは、物件詳細ページの「情報提供会社」に表示されている不動産会社へ直接お願いいたします。
- 間取図は、現況を優先させていただきます。
- 映像は物件の一部を撮影したものです。物件の契約にあたっての最終判断はご自身の判断に基づいて行ってください。
- 仲介手数料について

アットホームは物件情報の適正化に努めております。
内容に誤りがある場合にはこちらへご連絡ください。