不動産 賃貸 マンション等の住宅情報:埼玉住まい情報


東京都八王子市八日町(八王子駅)の賃貸:物件詳細

  • 物件詳細
  • 情報の見方
  • 印刷用画面
交通
所在地
駅徒歩 賃料
管理費等
敷金/保証金
礼金
間取り
面積
物件種目
築年月

JR中央線/八王子 新着

東京都八王子市八日町

10分

18.5万円

15,000円

なし / なし

2ヶ月

3LDK

68.90m²

賃貸マンション

2019年7月(築6年11ヶ月)

おすすめPOINT分譲タイプ、常時ゴミ出し可能、角部屋、南向き、二人入居可、24時間セキュリティー、24時間換気システム、外観タイル張り、保証人不要

おすすめコメント  スタッフ: 山下 梨央

★オンライン内見ご相談下さい!★お部屋探しはタウンハウジングまでお任せ下さい♪熟練スタッフ・地元スタッフ在中店です★地元密着型!親切・丁寧・一生懸命を心掛けております★

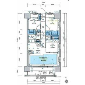
間取図

間取図

★お部屋探しは株式会社タウンハウジング東京まで★

外観

外観

★お部屋探しは株式会社タウンハウジング東京まで★

<
その他の画像
  • リビング
  • キッチン
  • バス/シャワー
  • 設備
  • 眺望
  • 設備
  • 室内
  • 設備
  • 室内
  • 室内
  • 設備
  • 収納
  • 室内
  • 設備
  • 洗面
  • 設備
  • トイレ
  • 設備
  • 設備
  • 室内
  • 室内
  • 室内
  • 玄関
  • 設備
  • エントランス
  • 共有部分
  • 駐車場
  • 共有部分
  • エントランス
  • 共有部分
  • エントランス
  • 共有部分
  • 共有部分
  • 外観
  • 外観
  • 共有部分
  • 駐車場
  • 間取図
  • 幼稚園、保育園
  • ショッピング施設
  • コンビニ
  • ショッピング施設
  • ショッピング施設
  • その他
  • ショッピング施設
  • その他
>
    • とりあえず保存
    • お問い合わせ
    交通

    JR中央線 八王子駅 徒歩10分

    その他の交通

    京王線 京王八王子駅 徒歩12分

    京王高尾線 京王片倉駅 徒歩24分

    所在地 東京都八王子市八日町
    物件種目 賃貸マンション
    賃料 18.5万円 管理費等 15,000円
    敷金 / 保証金 なし / なし 礼金 2ヶ月
    敷引 保証金償却
    その他一時金 室内抗菌:16,500円、事務手数料:16,500円、雑費:11,000円 保険等 要 2年 23,000円
    維持費等
    間取り 3LDK(LDK15.7帖 洋室4.5帖 洋室6.0帖 洋室5.0帖) 専有面積 68.90m²
    築年月 2019年7月(築6年11ヶ月) 階建 / 階 15階建 / 9階
    建物構造 RC 総戸数
    主要採光面 駐車場 有 34,000円/月
    バイク置き場 駐輪場
    建物名・部屋番号 プレシス八王子レグリオ 911 ペット
    アピールポイント ★地域の不動産会社との情報共有により、インターネット掲載物件のほぼ全てがご紹介可能です♪学区・スーパーなどの周辺情報もお気軽にお問い合わせ下さい★お問い合わせは地域密着タウンハウジングまで★
    リフォーム履歴
    リノベーション履歴
    備考
    賃貸保証等:加入要(実費/初回保証料総賃料50%/貸主指定保証会社)
    管理形態/管理員の勤務形態:-/巡回
    管理人巡回
    ★WEBでのリモート対応も始めました!遠方の方やゆっくりお時間のとれない方は是非ご利用ください★お部屋探しはタウンハウジングまでお任せ下さい♪★契約金の一部がクレジットカード決済可能です。インターネット掲載物件のほぼ全てがご紹介可能です♪お家賃交渉や礼金交渉、初期費用のご相談などお気軽にお申し付け下さい!他社さんの物件もご紹介・ご案内可能です!★
    エネルギー消費性能
    断熱性能
    目安光熱費
    バス・トイレ バス・トイレ別、浴室乾燥機、オートバス、追焚機能、シャワー付洗面化粧台、洗面所独立、洗面台、シャワー、温水洗浄便座
    キッチン カウンターキッチン、システムキッチン、食器洗浄乾燥機、浄水器、3口以上コンロ、グリル
    セキュリティー モニター付オートロック、オートロック、モニター付インターホン、防犯カメラ、火災警報器(報知機)
    収納 ウォークインクローゼット、収納スペース、クローゼット、シューズボックス
    設備・サービス エアコン2台以上、床暖房、室内洗濯機置場、給湯、全居室フローリング、フローリング、都市ガス、エアコン
    TV・通信 光ファイバー、ケーブルTV
    その他 宅配BOX、エレベーター2基以上、バルコニー、エレベーター
    契約期間 2年 現況 空家
    条件等 入居可能時期 即時
    更新料 なし 物件番号 1103905527
    情報公開日 2026年4月25日 次回更新予定日 2026年5月10日
    ケータイ用バーコード

    QRコード

    スマートフォンでこの物件を見る
    スマートフォンからもこの物件をご覧になれます。
    ※「-」と表示されている項目については、情報提供会社にご確認ください。

    この物件の周辺情報

    周辺施設 本町幼稚園
    距離 223m
    周辺施設 マツモトキヨシ八王子店
    距離 533m
    周辺施設 セブンイレブン八王子八日町店
    距離 120m
    周辺施設 イオンフードスタイル八王子店
    距離 855m
    周辺施設 A-プライス八王子店
    距離 614m
    周辺施設 八王子東急スクエア
    距離 689m
    周辺施設 エコス大横店
    距離 435m
    周辺施設 ドン・キホーテ八王子駅前店
    距離 548m

    クイックお問い合わせ

    ここから簡単にお問い合わせをすることができます。
    (SSLでの暗号化での送信を希望されるお客さまは こちら よりお問い合わせください)

    お問い合わせ内容(必須)
    お名前(必須) 姓  名 
    メールアドレス(必須)
    ※携帯電話のメールアドレスをご入力される方はこちらをご確認ください
    電話番号(必須)
    - -

    ※入力いただいた電話番号へSMSまたは音声でパスワードをご連絡します。

    携帯電話の番号をご入力の方へ

    携帯電話の番号をご入力の方へ
    確認画面にて送信ボタンをクリックするとSMSが携帯電話に届きます。
    そのSMSに記載のパスワード(認証番号)を入力し、お問い合わせを完了してください。
    尚、SMSの送信者番号は 0005 202 760 となります。
    これはアットホームの固定番号です。

    備考欄 希望条件、物件案内希望日、質問などがございましたらご記入ください。
    お問い合わせを行う前に「個人情報の取り扱いについて」を必ずお読みください。
    「個人情報の取り扱いについて」に同意いただいた場合は「上記にご同意の上 確認画面へ進む」のボタンをクリックしてください。

    個人情報の取り扱いについて

    皆さまが送付された個人情報はアットホーム(株)のサーバを経由し、お問い合わせ先の不動産会社にメールまたはFAXにて転送されるためアットホーム(株)にも保管されます。アットホーム(株)で保管された個人情報の取り扱いについては、【こちら】をご覧ください。
    また、本画面でご記入いただいた個人情報は、お問い合わせ先の不動産会社でも保管します。 お問い合わせ先の不動産会社が保管する個人情報の取り扱いについては、不動産会社に直接お問い合わせください。

    情報提供会社

    情報提供会社

    (株)タウンハウジング東京 高幡不動店

    国土交通大臣免許(1)第9926号

    交通:
    京王線/高幡不動駅 徒歩1分
    東京都日野市高幡3-17 高幡不動駅前ビル1F
    TEL:
    042-599-0057
    FAX:
    042-599-0058

    取引態様:仲介

    • 会社情報
    • 00107318
    スマートフォンで
    この不動産会社を見る
    QRコード
    • とりあえず保存
    • お問い合わせ
    • 提携サイト等より掲載されている物件情報につきましては、不動産会社詳細情報にリンクされていないものがあります。
    • 物件に関するお問合せは、物件詳細ページの「情報提供会社」に表示されている不動産会社へ直接お願いいたします。
    • 間取図は、現況を優先させていただきます。
    • 映像は物件の一部を撮影したものです。物件の契約にあたっての最終判断はご自身の判断に基づいて行ってください。
    • 仲介手数料について仲介手数料

    アットホームは物件情報の適正化に努めております。 内容に誤りがある場合にはこちらへご連絡ください。

    【埼玉住まい情報】では、日本全国の物件から賃貸マンションや賃貸アパート・賃貸一戸建て等の賃貸住宅情報、新築マンション・分譲マンションや中古マンション等の売買マンション情報、新築一戸建てや中古一戸建てなどの戸建住宅、 土地など、総合的な不動産住宅情報検索サービスを提供致します。
    【埼玉住まい情報】から、選りすぐりの不動産物件を探してみましょう。

    【免責事項】
    このコーナーの運営はアットホーム株式会社(https://www.athome.co.jp/)が行っています。
    このコーナーに掲載している物件情報は、「アットホーム不動産情報ネットワーク」に加盟する不動産会社等(情報提供元)から提供されています。信頼性の高い情報提供が行えるよう、最大限の努力をしておりますが、その内容を保証するものではありません。 利用者のみなさまと各情報提供元との取引に起因する損害および情報が掲載されたことに起因する損害等については、株式会社イーシティ埼玉、およびアットホームは一切責任を負いません。
    各物件情報の内容や画像等はすべて現況を優先させていただきます。
    お取引等(お取引の準備、資金調達等を含みます)の際には、内容や契約条件等について、各情報提供元より十分な説明を受け、ご自身でご確認の上、判断してください。
    このコーナーへの物件情報のご掲載、その他不動産業務ソリューション等についての不動産会社様のお問合せはこちらからお願いいたします。

    物件画像: