京都府京都市南区東九条東岩本町(九条駅)の賃貸:物件詳細
交通 所在地 |
駅徒歩 |
賃料 管理費等 |
敷金/保証金 礼金 |
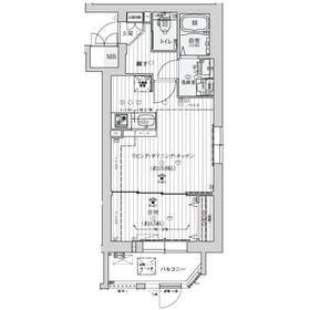
間取り 面積 |
物件種目 築年月 |
|
地下鉄烏丸線/九条
京都府京都市南区東九条東岩本町
|
9分
|
11.17万円
11,850円
|
なし / なし
2ヶ月
|
1LDK
37.86m²
|
賃貸マンション
2026年3月
|
分譲タイプ、常時ゴミ出し可能、角部屋、南向き、24時間セキュリティー、ハイサッシ採用、24時間換気システム、IT重説対応物件
|
|
間取図
|
|
その他の画像
|
| 交通 | 地下鉄烏丸線 九条駅 徒歩9分 |
|---|
| その他の交通 | JR奈良線 東福寺駅 徒歩11分 地下鉄烏丸線 京都駅 徒歩12分 |
| 所在地 |
京都府京都市南区東九条東岩本町
|
| 物件種目 |
賃貸マンション |
| 賃料 |
11.17万円 |
管理費等 |
11,850円 |
| 敷金 / 保証金 |
なし / なし |
礼金 |
2ヶ月 |
| 敷引 |
- |
保証金償却 |
- |
| その他一時金 |
ルームクリーニング代:27,500円 |
保険等 |
要 2年 16,000円 |
| 維持費等 |
- |
| 間取り |
1LDK(洋室4.5畳/LDK10.8畳) |
専有面積 |
37.86m² |
| 築年月 |
2026年3月
|
階建 / 階 |
8階建 / 5階 |
| 建物構造 |
RC |
総戸数 |
- |
| 主要採光面 |
南 |
駐車場 |
無 |
| バイク置き場 |
- |
駐輪場 |
有 |
| 建物名・部屋番号 |
ファーストフィオーレ京都コーヴォ 504 |
ペット |
-
|
| リフォーム履歴 |
- |
| リノベーション履歴 |
- |
| 備考 |
管理形態/管理員の勤務形態:-/-
IT重説対応物件
|
| エネルギー消費性能 |
- |
| 断熱性能 |
- |
| 目安光熱費 |
- |
| バス・トイレ |
バス・トイレ別、浴室暖房、浴室乾燥機、シャワー付洗面化粧台、洗面所独立、洗面台、シャワー、温水洗浄便座、トイレ |
| キッチン |
システムキッチン、2口コンロ、ガスコンロ付 |
| セキュリティー |
オートロック、モニター付インターホン、ダブルロックドア、防犯カメラ |
| 収納 |
収納スペース、クローゼット |
| 設備・サービス |
室内洗濯機置場、洗濯機置場、給湯、全居室フローリング、フローリング、都市ガス、エアコン |
| TV・通信 |
インターネット対応、インターネット使用料無料、光ファイバー、ケーブルTV、CS、BS端子 |
| その他 |
宅配BOX、バルコニー、駐輪場、エレベーター |
| 契約期間 |
2年 |
現況 |
未完成 |
| 条件等 |
- |
入居可能時期 |
2026年4月上旬予定 |
| 更新料 |
- |
物件番号 |
1103920424 |
| 情報公開日 |
2026年3月27日 |
次回更新予定日 |
2026年4月10日 |
| ケータイ用バーコード |
- スマートフォンでこの物件を見る
- スマートフォンからもこの物件をご覧になれます。
|
※「-」と表示されている項目については、情報提供会社にご確認ください。
| 周辺施設 |
ファミリーマート 中井東福寺店 |
| 距離 |
822m |
写真を見る |
| 周辺施設 |
KOHYO イオンモールKYOTO店 |
| 距離 |
1026m |
写真を見る |
| 周辺施設 |
ロピア 京都ヨドバシ店 |
| 距離 |
1235m |
写真を見る |
| 周辺施設 |
マツモトキヨシ 京都タワーサンド店 |
| 距離 |
1123m |
写真を見る |
ここから簡単にお問い合わせをすることができます。
(SSLでの暗号化での送信を希望されるお客さまは
こちら
よりお問い合わせください)
お問い合わせを行う前に
「個人情報の取り扱いについて」を必ずお読みください。
「個人情報の取り扱いについて」に同意いただいた場合は「上記にご同意の上 確認画面へ進む」のボタンをクリックしてください。
個人情報の取り扱いについて
皆さまが送付された個人情報はアットホーム(株)のサーバを経由し、お問い合わせ先の不動産会社にメールまたはFAXにて転送されるためアットホーム(株)にも保管されます。アットホーム(株)で保管された個人情報の取り扱いについては、【こちら】をご覧ください。
また、本画面でご記入いただいた個人情報は、お問い合わせ先の不動産会社でも保管します。 お問い合わせ先の不動産会社が保管する個人情報の取り扱いについては、不動産会社に直接お問い合わせください。
京都府知事免許(5)第11502号 |
|---|
- 交通:
- 阪急京都線/大宮駅 徒歩1分
- 京都府京都市下京区黒門通四条下る下り松町151
- TEL:
- 075-813-0337
- 所属団体:
- (公社)全日本不動産協会会員(公社)近畿地区不動産公正取引協議会加盟
取引態様:仲介  - 50105131
|
- スマートフォンで
この不動産会社を見る

|
- 提携サイト等より掲載されている物件情報につきましては、不動産会社詳細情報にリンクされていないものがあります。
- 物件に関するお問合せは、物件詳細ページの「情報提供会社」に表示されている不動産会社へ直接お願いいたします。
- 間取図は、現況を優先させていただきます。
- 映像は物件の一部を撮影したものです。物件の契約にあたっての最終判断はご自身の判断に基づいて行ってください。
- 仲介手数料について

アットホームは物件情報の適正化に努めております。
内容に誤りがある場合にはこちらへご連絡ください。