北海道札幌市北区新琴似一条10丁目の賃貸:物件詳細
交通 所在地 |
駅徒歩 |
賃料 管理費等 |
敷金/保証金 礼金 |
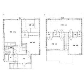
間取り 面積 |
物件種目 築年月 |
|
【バス】新琴似2条10丁目 停歩3分
北海道札幌市北区新琴似一条10丁目
|
-
|
11万円
なし
|
1ヶ月 / なし
なし
|
5LDK
108.13m²
|
賃貸一戸建て
1986年11月(築39年2ヶ月)
|
ペット相談、IT重説対応物件、保証人不要
|
| 交通 | 【バス】 新琴似2条10丁目 停歩3分 |
|---|
| その他の交通 | 【バス】 新琴似2条10丁目 停歩3分 【バス】 新琴似2条10丁目 停歩3分 |
| 所在地 |
北海道札幌市北区新琴似一条10丁目
|
| 物件種目 |
賃貸一戸建て |
| 賃料 |
11万円 |
管理費等 |
なし |
| 敷金 / 保証金 |
1ヶ月 / なし |
礼金 |
なし |
| 敷引 |
- |
保証金償却 |
- |
| その他一時金 |
なし |
保険等 |
要 2年 35,000円 |
| 維持費等 |
夜間受付費:1,650円/月 |
クレジットカード決済 |
初期費用可 |
| 間取り |
5LDK |
専有面積 |
108.13m² |
| 築年月 |
1986年11月(築39年2ヶ月)
|
階建 / 階 |
2階建 |
| 建物構造 |
木造 |
総戸数 |
- |
| 主要採光面 |
|
駐車場 |
有 無料 |
| バイク置き場 |
- |
駐輪場 |
- |
| 建物名・部屋番号 |
新琴似1-10戸建て 1 |
ペット |
相談 |
| アピールポイント |
こちらの物件が気になった方はエイブル栄町店へお気軽にお問い合わせください♪ |
| リフォーム履歴 |
- |
| リノベーション履歴 |
- |
| 備考 |
賃貸保証等:加入要(初回保証料 家賃総額の50% 月額880円 更新料15,000円/1年毎 審査によって変動あり)
管理形態/管理員の勤務形態:-/-
IT重説対応物件
ハウスクリーニング料88,000円 ペット礼金1ヶ月
|
| エネルギー消費性能 |
- |
| 断熱性能 |
- |
| 目安光熱費 |
- |
| バス・トイレ |
バス・トイレ別、シャワー付洗面化粧台、洗面所独立、シャワー、温水洗浄便座 |
| キッチン |
- |
| セキュリティー |
- |
| 収納 |
トランクルーム、クローゼット、シューズボックス |
| 設備・サービス |
室内洗濯機置場、プロパンガス |
| TV・通信 |
- |
| その他 |
- |
| 契約期間 |
2年 |
現況 |
空家 |
| 条件等 |
- |
入居可能時期 |
相談 |
| 更新料 |
- |
物件番号 |
1104181817 |
| 情報公開日 |
2025年12月13日 |
次回更新予定日 |
2026年1月4日 |
| ケータイ用バーコード |
- スマートフォンでこの物件を見る
- スマートフォンからもこの物件をご覧になれます。
|
※「-」と表示されている項目については、情報提供会社にご確認ください。
ここから簡単にお問い合わせをすることができます。
(SSLでの暗号化での送信を希望されるお客さまは
こちら
よりお問い合わせください)
お問い合わせを行う前に
「個人情報の取り扱いについて」を必ずお読みください。
「個人情報の取り扱いについて」に同意いただいた場合は「上記にご同意の上 確認画面へ進む」のボタンをクリックしてください。
個人情報の取り扱いについて
皆さまが送付された個人情報はアットホーム(株)のサーバを経由し、お問い合わせ先の不動産会社にメールまたはFAXにて転送されるためアットホーム(株)にも保管されます。アットホーム(株)で保管された個人情報の取り扱いについては、【こちら】をご覧ください。
また、本画面でご記入いただいた個人情報は、お問い合わせ先の不動産会社でも保管します。 お問い合わせ先の不動産会社が保管する個人情報の取り扱いについては、不動産会社に直接お問い合わせください。
北海道知事免許 石狩(5)第7021号 |
|---|
- 交通:
- 札幌市東豊線/栄町駅 徒歩1分
- 北海道札幌市東区北四十一条東15丁目2-17
- TEL:
- 011-752-8126
- FAX:
- 011-752-8128
- 所属団体:
- (公社)全日本不動産協会会員(一社)北海道不動産公正取引協議会加盟
取引態様:仲介  - 10006059
|
- スマートフォンで
この不動産会社を見る

|
- 提携サイト等より掲載されている物件情報につきましては、不動産会社詳細情報にリンクされていないものがあります。
- 物件に関するお問合せは、物件詳細ページの「情報提供会社」に表示されている不動産会社へ直接お願いいたします。
- 間取図は、現況を優先させていただきます。
- 映像は物件の一部を撮影したものです。物件の契約にあたっての最終判断はご自身の判断に基づいて行ってください。
- 仲介手数料について

アットホームは物件情報の適正化に努めております。
内容に誤りがある場合にはこちらへご連絡ください。