不動産 賃貸 マンション等の住宅情報:埼玉住まい情報


東京都渋谷区広尾5丁目(広尾駅)の賃貸:物件詳細

  • 物件詳細
  • 情報の見方
  • 印刷用画面
交通
所在地
駅徒歩 賃料
管理費等
敷金/保証金
礼金
間取り
面積
物件種目
築年月

東京メトロ日比谷線/広尾

東京都渋谷区広尾5丁目

5分

31万円

15,000円

なし / なし

1ヶ月

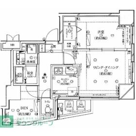
1SLDK

48.16m²

賃貸マンション

2011年3月(築15年1ヶ月)

おすすめPOINTペット相談、分譲タイプ、常時ゴミ出し可能、角部屋、二人入居可、24時間換気システム、閑静な住宅街、IT重説対応物件、保証人不要

おすすめコメント  スタッフ: 田村 聡志

お客様紹介キャンペーン実施中!紹介した方・された方も10,000円分のギフトカードを進呈!フリーレント!敷0・礼0物件多数ございます。他社で断られた方あらゆる相談を経験豊富なスタッフが懇切丁寧に対応

間取図

間取図

外観

外観

<
その他の画像
  • 共有部分
  • 駐車場
  • 共有部分
  • 共有部分
  • エントランス
  • コンビニ
  • コンビニ
  • ショッピング施設
  • ショッピング施設
  • ショッピング施設
  • 郵便局
  • ショッピング施設
  • コンビニ
>
    • とりあえず保存
    • お問い合わせ
    交通

    東京メトロ日比谷線 広尾駅 徒歩5分

    その他の交通

    JR埼京線 恵比寿駅 徒歩19分

    都営三田線 白金台駅 徒歩21分

    所在地 東京都渋谷区広尾5丁目
    物件種目 賃貸マンション
    賃料 31万円 管理費等 15,000円
    敷金 / 保証金 なし / なし 礼金 1ヶ月
    敷引 保証金償却
    その他一時金 室内清掃費用:118,000円、鍵交換代等:33,000円~ 保険等 要 2年 20,000円
    維持費等 クレジットカード決済 初期費用可
    間取り 1SLDK(LDK11.0帖 洋室6.0帖 S3.8帖) 専有面積 48.16m²
    築年月 2011年3月(築15年1ヶ月) 階建 / 階 14階建 / 5階
    建物構造 RC 総戸数 40戸
    主要採光面 駐車場
    バイク置き場 駐輪場
    建物名・部屋番号 ガリシアレジデンス広尾 501 ペット ペット1匹まで相談
    アピールポイント 創業46周年・直営143店舗で展開・58,000戸超の自社管理物件を保有しております。2024年年間仲介件数全国4位の70376件・クレジットカード決済・初期費用分割払い対応可能!スマホでお部屋探し!ご自宅にいながらオンライン接客・オンライン面談。喜んで対応!
    外国語対応・物件もより駅まで送迎可・初期費用のお見積りのみ見学のみ大歓迎です。お気軽にお問合せ下さい。
    当店は仕事帰りに気軽に立ち寄れるよう夜7時まで営業しております。「お客様のために」がモットーです。ぜひお気軽にご来店下さい。案内時はスタッフが同行して周辺環境や駅からの距離を一緒に確認します。
    リフォーム履歴
    リノベーション履歴
    備考
    賃貸保証等:加入要(初回契約時:50%、更新時:12,000円、エルズサポート・いえらぶパートナーズ)
    管理形態/管理員の勤務形態:-/-
    IT重説対応物件
    当社は創業46年東京23区を中心に首都圏エリアに特化した不動産賃貸仲介会社でございます。落ち着いた雰囲気の店内でゆったりとしたBGMと共にお部屋探しを楽しむことができます。どんな事でも構いません。『まずは貴方の理想をお聞かせ下さい。』当店スタッフは120%期待に応えます!是非お気軽にお問合せくださいませ。※1年未満の解約違約金有り
    エネルギー消費性能
    断熱性能
    目安光熱費
    バス・トイレ バス・トイレ別、浴室暖房、浴室乾燥機、洗面所独立、洗面所、洗面台、シャワー、温水洗浄便座、トイレ
    キッチン システムキッチン、3口以上コンロ、2口コンロ、ガスコンロ付、グリル
    セキュリティー モニター付オートロック、オートロック、モニター付インターホン、防犯カメラ
    収納 ウォークインクローゼット、クローゼット、シューズボックス
    設備・サービス 室内洗濯機置場、都市ガス給湯、給湯、全居室フローリング、フローリング、都市ガス、エアコン、暖房、冷房
    TV・通信 インターネット対応
    その他 宅配BOX、バルコニー、エレベーター
    契約期間 2年 現況 居住中
    条件等 入居可能時期 相談
    仲介手数料 1.1ヶ月    
    更新料 新賃料 1ヶ月 物件番号 1104334623
    情報公開日 2026年2月19日 次回更新予定日 2026年3月5日
    ケータイ用バーコード

    QRコード

    スマートフォンでこの物件を見る
    スマートフォンからもこの物件をご覧になれます。
    ※「-」と表示されている項目については、情報提供会社にご確認ください。

    この物件の周辺情報

    周辺施設 ローソンストア100白金5丁目店
    距離 954m
    周辺施設 セブンイレブン渋谷広尾5丁目店
    距離 175m
    周辺施設 マツモトキヨシ 恵比寿3丁目店
    距離 540m
    周辺施設 どらっぐぱぱす
    距離 260m
    周辺施設 肉のハナマサ
    距離 710m
    周辺施設 渋谷広尾郵便局
    距離 180m
    周辺施設 成城石井 麻布十番店
    距離 755m
    周辺施設 ローソン広尾五丁目店
    距離 209m

    クイックお問い合わせ

    ここから簡単にお問い合わせをすることができます。
    (SSLでの暗号化での送信を希望されるお客さまは こちら よりお問い合わせください)

    お問い合わせ内容(必須)
    お名前(必須) 姓  名 
    メールアドレス(必須)
    ※携帯電話のメールアドレスをご入力される方はこちらをご確認ください
    電話番号(必須)
    - -

    ※入力いただいた電話番号へSMSまたは音声でパスワードをご連絡します。

    携帯電話の番号をご入力の方へ

    携帯電話の番号をご入力の方へ
    確認画面にて送信ボタンをクリックするとSMSが携帯電話に届きます。
    そのSMSに記載のパスワード(認証番号)を入力し、お問い合わせを完了してください。
    尚、SMSの送信者番号は 0005 202 760 となります。
    これはアットホームの固定番号です。

    備考欄 希望条件、物件案内希望日、質問などがございましたらご記入ください。
    お問い合わせを行う前に「個人情報の取り扱いについて」を必ずお読みください。
    「個人情報の取り扱いについて」に同意いただいた場合は「上記にご同意の上 確認画面へ進む」のボタンをクリックしてください。

    個人情報の取り扱いについて

    皆さまが送付された個人情報はアットホーム(株)のサーバを経由し、お問い合わせ先の不動産会社にメールまたはFAXにて転送されるためアットホーム(株)にも保管されます。アットホーム(株)で保管された個人情報の取り扱いについては、【こちら】をご覧ください。
    また、本画面でご記入いただいた個人情報は、お問い合わせ先の不動産会社でも保管します。 お問い合わせ先の不動産会社が保管する個人情報の取り扱いについては、不動産会社に直接お問い合わせください。

    情報提供会社

    情報提供会社

    (株)タウンハウジング東京 恵比寿店

    国土交通大臣免許(1)第9926号

    交通:
    JR山手線/恵比寿駅 徒歩2分
    東京都渋谷区恵比寿1丁目7-12 LA CITY EBISU Ⅱ 3階
    TEL:
    03-3440-2581
    FAX:
    03-3440-2582
    所属団体:
    所属団体未加入会員

    取引態様:仲介

    • 会社情報
    • 00272301
    スマートフォンで
    この不動産会社を見る
    QRコード
    • とりあえず保存
    • お問い合わせ
    • 提携サイト等より掲載されている物件情報につきましては、不動産会社詳細情報にリンクされていないものがあります。
    • 物件に関するお問合せは、物件詳細ページの「情報提供会社」に表示されている不動産会社へ直接お願いいたします。
    • 間取図は、現況を優先させていただきます。
    • 映像は物件の一部を撮影したものです。物件の契約にあたっての最終判断はご自身の判断に基づいて行ってください。
    • 仲介手数料について仲介手数料

    アットホームは物件情報の適正化に努めております。 内容に誤りがある場合にはこちらへご連絡ください。

    【埼玉住まい情報】では、日本全国の物件から賃貸マンションや賃貸アパート・賃貸一戸建て等の賃貸住宅情報、新築マンション・分譲マンションや中古マンション等の売買マンション情報、新築一戸建てや中古一戸建てなどの戸建住宅、 土地など、総合的な不動産住宅情報検索サービスを提供致します。
    【埼玉住まい情報】から、選りすぐりの不動産物件を探してみましょう。

    【免責事項】
    このコーナーの運営はアットホーム株式会社(https://www.athome.co.jp/)が行っています。
    このコーナーに掲載している物件情報は、「アットホーム不動産情報ネットワーク」に加盟する不動産会社等(情報提供元)から提供されています。信頼性の高い情報提供が行えるよう、最大限の努力をしておりますが、その内容を保証するものではありません。 利用者のみなさまと各情報提供元との取引に起因する損害および情報が掲載されたことに起因する損害等については、株式会社イーシティ埼玉、およびアットホームは一切責任を負いません。
    各物件情報の内容や画像等はすべて現況を優先させていただきます。
    お取引等(お取引の準備、資金調達等を含みます)の際には、内容や契約条件等について、各情報提供元より十分な説明を受け、ご自身でご確認の上、判断してください。
    このコーナーへの物件情報のご掲載、その他不動産業務ソリューション等についての不動産会社様のお問合せはこちらからお願いいたします。

    物件画像: