福岡県久留米市天神町(西鉄久留米駅)の賃貸:物件詳細
交通 所在地 |
駅徒歩 |
賃料 管理費等 |
敷金/保証金 礼金 |
間取り 面積 |
物件種目 築年月 |
|
西鉄天神大牟田線/西鉄久留米
福岡県久留米市天神町
|
4分
|
13.1万円
なし
|
なし / なし
2ヶ月
|
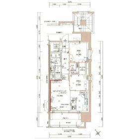
2LDK
46.86m²
|
賃貸マンション
2024年1月(築2年)
|
分譲タイプ、角部屋、高齢者相談、二人入居可、24時間セキュリティー、24時間換気システム、閑静な住宅街、IT重説対応物件、保証人不要
|
|
間取図
使い勝手の良い間取りです♪
|
外観
お洒落な外観です★
|
<
その他の画像
>
|
| 交通 | 西鉄天神大牟田線 西鉄久留米駅 徒歩4分 |
|---|
| その他の交通 | 西鉄天神大牟田線 花畑駅 徒歩9分 西鉄天神大牟田線 櫛原駅 徒歩17分 |
| 所在地 |
福岡県久留米市天神町
|
| 物件種目 |
賃貸マンション |
| 賃料 |
13.1万円 |
管理費等 |
なし |
| 敷金 / 保証金 |
なし / なし |
礼金 |
2ヶ月 |
| 敷引 |
- |
保証金償却 |
- |
| その他一時金 |
なし、鍵交換代等:38,500円~ |
保険等 |
要 |
| 維持費等 |
ハウスサポート:880円/月 |
クレジットカード決済 |
初期費用可 |
| 間取り |
2LDK(LDK10.9、洋4.5、洋3.5) |
専有面積 |
46.86m² |
| 築年月 |
2024年1月(築2年)
|
階建 / 階 |
15階建 / 14階 |
| 建物構造 |
RC |
総戸数 |
- |
| 主要採光面 |
|
駐車場 |
有 16,000円/月 |
| バイク置き場 |
- |
駐輪場 |
有 |
| 建物名・部屋番号 |
|
ペット |
-
|
| アピールポイント |
オートロック機能が付いているので、建物内には基本的に住民のみという環境は安心感につながります。鍵がかかる宅配ボックスに荷物を届けることで、外に置く置き配よりも安全に荷物を受け取ることができます。室内設備は洗面所独立・浴室乾燥機などが揃っており、とても充実しています。収納はウォークインクロゼット・シューズボックス・全居室収納などが備え付けられているので、衣類や日用品の収納に重宝します。1か月で16000円の魅力あふれる物件です。この機会にご検討下さい。2LDKのお家はファミリー向け物件でリビングで家族団らん。全居室フローリングのお住まいです。入居可能時期の予定が2025年3月になりましたのでご検討ください。通勤・通学も便利な、電車を2駅利用できる物件です。こちらの物件は閑静な住宅地にあります。駐輪場が利用可能な物件です?? |
| リフォーム履歴 |
- |
| リノベーション履歴 |
- |
| 備考 |
賃貸保証等:加入要(キープジャパンキープジャパン 契約時賃料総額の80%、月額手数料:賃料総額の2%)
管理形態/管理員の勤務形態:-/-
IT重説対応物件
※保証料とは・・・ご契約頂く際に保証会社(例えば借主様に、お家賃の滞納などがあった際に借主様に代わって滞納分のお家賃を大家様へ立て替えてお支払いをして頂く会社)にお支払い頂く費用です。
【初回保証料】と【月額保証料】とは
【初回保証料】・・・月々お支払い頂く総額費用(家賃・管理費・駐車料などを全て含めた金額)の〇〇%を初期費用としてお支払い頂くものです。
※計算方法例※
①家賃50,000円
②管理費5,000円
③駐車料5,000円
④初回保証料50%
の場合
①+②+③=60,000円(月総額)×④=30,000円
になりますので、この場合の初回保証料は30,000円となります。
【月額保証料】・・・月々お支払い頂く総額費用(家賃・管理費・駐車料などを全て含めた金額)の〇〇%を月々の費用としてお支払い頂くものです。
※計算方法例※
①家賃50,000円
②管理費5,000円
③駐車料5,000円
④月額保証料2%
の場合
①+②+③=60,000円(月総額)×④=1,200円
になりますので、この場合の月額保証料は1,200円となります。
|
| エネルギー消費性能 |
- |
| 断熱性能 |
- |
| 目安光熱費 |
- |
| バス・トイレ |
バス・トイレ別、浴室乾燥機、オートバス、追焚機能、シャワー付洗面化粧台、洗面所独立、洗面所、洗面台、シャワールーム、シャワー、温水洗浄便座、トイレ |
| キッチン |
カウンターキッチン、システムキッチン、2口コンロ、ガスコンロ可、グリル |
| セキュリティー |
オートロック、カードキー、ディンプルキー、防犯カメラ |
| 収納 |
全居室収納、ウォークインクローゼット、収納スペース、クローゼット、シューズボックス |
| 設備・サービス |
室内洗濯機置場、洗濯機置場、都市ガス給湯、給湯、全居室フローリング、フローリング、都市ガス、エアコン |
| TV・通信 |
- |
| その他 |
宅配BOX、バルコニー、駐輪場、エレベーター |
| 契約期間 |
2年 |
現況 |
空家 |
| 条件等 |
- |
入居可能時期 |
即時 |
| 更新料 |
- |
物件番号 |
1104648412 |
| 情報公開日 |
2025年6月13日 |
次回更新予定日 |
2025年12月30日 |
| ケータイ用バーコード |
- スマートフォンでこの物件を見る
- スマートフォンからもこの物件をご覧になれます。
|
※「-」と表示されている項目については、情報提供会社にご確認ください。
| 周辺施設 |
セブンイレブン 久留米天神町店 |
| 距離 |
41m |
写真を見る |
| 周辺施設 |
セブンイレブン 久留米広又通り店 |
| 距離 |
413m |
写真を見る |
| 周辺施設 |
西鉄大牟田線 久留米駅 |
| 距離 |
310m |
写真を見る |
| 周辺施設 |
久留米市立諏訪中学校 |
| 距離 |
277m |
写真を見る |
| 周辺施設 |
レガネット 久留米タミー |
| 距離 |
324m |
写真を見る |
| 周辺施設 |
フードウェイ西鉄久留米駅前店 |
| 距離 |
380m |
写真を見る |
| 周辺施設 |
JOINT(ジョイント) 久留米中央店 |
| 距離 |
539m |
写真を見る |
| 周辺施設 |
久留米市立日吉小学校 |
| 距離 |
872m |
写真を見る |
ここから簡単にお問い合わせをすることができます。
(SSLでの暗号化での送信を希望されるお客さまは
こちら
よりお問い合わせください)
お問い合わせを行う前に
「個人情報の取り扱いについて」を必ずお読みください。
「個人情報の取り扱いについて」に同意いただいた場合は「上記にご同意の上 確認画面へ進む」のボタンをクリックしてください。
個人情報の取り扱いについて
皆さまが送付された個人情報はアットホーム(株)のサーバを経由し、お問い合わせ先の不動産会社にメールまたはFAXにて転送されるためアットホーム(株)にも保管されます。アットホーム(株)で保管された個人情報の取り扱いについては、【こちら】をご覧ください。
また、本画面でご記入いただいた個人情報は、お問い合わせ先の不動産会社でも保管します。 お問い合わせ先の不動産会社が保管する個人情報の取り扱いについては、不動産会社に直接お問い合わせください。
福岡県知事免許(1)第20652号 |
|---|
- 交通:
- JR鹿児島本線/久留米駅 徒歩1分 【バス】 JR久留米駅 停歩1分
- 福岡県久留米市中央町1-1 久留米ヒルズモール
- TEL:
- 0942-34-7060
- 所属団体:
- (公社)福岡県宅地建物取引業協会会員(一社)九州不動産公正取引協議会加盟
取引態様:仲介  - 80507856
|
- スマートフォンで
この不動産会社を見る

|
- 提携サイト等より掲載されている物件情報につきましては、不動産会社詳細情報にリンクされていないものがあります。
- 物件に関するお問合せは、物件詳細ページの「情報提供会社」に表示されている不動産会社へ直接お願いいたします。
- 間取図は、現況を優先させていただきます。
- 映像は物件の一部を撮影したものです。物件の契約にあたっての最終判断はご自身の判断に基づいて行ってください。
- 仲介手数料について

アットホームは物件情報の適正化に努めております。
内容に誤りがある場合にはこちらへご連絡ください。