不動産 賃貸 マンション等の住宅情報:埼玉住まい情報


東京都八王子市八日町(八王子駅)の賃貸:物件詳細

  • 物件詳細
  • 情報の見方
  • 印刷用画面
交通
所在地
駅徒歩 賃料
管理費等
敷金/保証金
礼金
間取り
面積
物件種目
築年月

JR横浜線/八王子

東京都八王子市八日町

10分

24.6万円

10,000円

なし / なし

なし

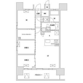
3LDK

68.73m²

賃貸マンション

2024年12月(築1年1ヶ月)

おすすめPOINT24時間換気システム

おすすめコメント  スタッフ: 石丸 周作

当店が自信を持ってオススメするお部屋です。チャットやLINE、メールでのご相談も可能。来店不要のオンラインによるご内見、重要事項説明も便利です。

間取図

間取図

外観

外観

<
その他の画像
  • リビング
  • キッチン
  • バス/シャワー
  • トイレ
  • その他
  • 洗面
  • 収納
  • 玄関
  • バルコニー
  • 設備
  • その他
  • 眺望
  • その他
  • その他
  • 小学校
>
    QRコード
    VR/パノラマで内見する

    その場で物件を内見しているように見ることができます。

    左のQRコードをスマートフォンで読み取って、再生されるVR画像をVRゴーグルでごらんください。

    • とりあえず保存
    • お問い合わせ
    交通

    JR横浜線 八王子駅 徒歩10分

    その他の交通

    京王線 京王八王子駅 徒歩12分

    京王高尾線 京王片倉駅 徒歩22分

    所在地 東京都八王子市八日町
    物件種目 賃貸マンション
    賃料 24.6万円 管理費等 10,000円
    敷金 / 保証金 なし / なし 礼金 なし
    敷引 保証金償却
    その他一時金 鍵設定代:11,000円、ハウスクリーニング費用:106,700円、エアコンクリーニング費用/1台に付き:18,000円 保険等 要 2年 23,000円
    維持費等 緊急サポート24:1,100円/月
    間取り 3LDK 専有面積 68.73m²
    築年月 2024年12月(築1年1ヶ月) 階建 / 階 13階建 / 10階
    建物構造 RC 総戸数 48戸
    主要採光面 駐車場 有 27,500円/月
    バイク置き場 駐輪場 有 330円/月
    建物名・部屋番号 八王子レジデンス 1004 ペット
    アピールポイント 当店が自信を持ってオススメするお部屋です。チャットやLINE、メールでのご相談も可能。来店不要のオンラインによるご内見、重要事項説明も便利です。
    リフォーム履歴
    リノベーション履歴
    備考
    賃貸保証等:加入要(エポス(ROOMiD) 家賃保証会社 初回保証料50% 毎月賃料等請求金額の合計1%)
    管理形態/管理員の勤務形態:-/-
    エネルギー消費性能
    断熱性能
    目安光熱費
    バス・トイレ バス・トイレ別、浴室乾燥機、追焚機能、洗面所独立、温水洗浄便座
    キッチン システムキッチン、食器洗浄乾燥機、3口以上コンロ
    セキュリティー オートロック、モニター付インターホン、防犯カメラ
    収納 クローゼット
    設備・サービス 床暖房、室内洗濯機置場、フローリング、都市ガス、エアコン
    TV・通信 インターネット使用料無料、CS、BS端子
    その他 宅配BOX、駐輪場、エレベーター
    契約期間 2年 現況 空家
    条件等 入居可能時期 相談
    更新料 新賃料 1ヶ月 物件番号 1104762805
    情報公開日 2025年10月8日 次回更新予定日 2025年12月26日
    ケータイ用バーコード

    QRコード

    スマートフォンでこの物件を見る
    スマートフォンからもこの物件をご覧になれます。
    ※「-」と表示されている項目については、情報提供会社にご確認ください。

    この物件の周辺情報

    周辺施設 八王子市立第一小学校
    距離 596m
    周辺施設 八王子市立第六中学校
    距離 931m
    周辺施設 八王子寺町郵便局
    距離 253m
    周辺施設 肉のハナマサ八王子店
    距離 477m
    周辺施設 セブンイレブン八王子八日町店
    距離 60m
    周辺施設 京王百貨店セレオ八王子店
    距離 812m
    周辺施設 ウェルパーク八王子八日町店
    距離 122m
    周辺施設 八王子オクトーレ
    距離 653m

    クイックお問い合わせ

    ここから簡単にお問い合わせをすることができます。
    (SSLでの暗号化での送信を希望されるお客さまは こちら よりお問い合わせください)

    お問い合わせ内容(必須)
    お名前(必須) 姓  名 
    メールアドレス(必須)
    ※携帯電話のメールアドレスをご入力される方はこちらをご確認ください
    電話番号(必須)
    - -

    ※入力いただいた電話番号へSMSまたは音声でパスワードをご連絡します。

    携帯電話の番号をご入力の方へ

    携帯電話の番号をご入力の方へ
    確認画面にて送信ボタンをクリックするとSMSが携帯電話に届きます。
    そのSMSに記載のパスワード(認証番号)を入力し、お問い合わせを完了してください。
    尚、SMSの送信者番号は 0005 202 760 となります。
    これはアットホームの固定番号です。

    備考欄 希望条件、物件案内希望日、質問などがございましたらご記入ください。
    お問い合わせを行う前に「個人情報の取り扱いについて」を必ずお読みください。
    「個人情報の取り扱いについて」に同意いただいた場合は「上記にご同意の上 確認画面へ進む」のボタンをクリックしてください。

    個人情報の取り扱いについて

    皆さまが送付された個人情報はアットホーム(株)のサーバを経由し、お問い合わせ先の不動産会社にメールまたはFAXにて転送されるためアットホーム(株)にも保管されます。アットホーム(株)で保管された個人情報の取り扱いについては、【こちら】をご覧ください。
    また、本画面でご記入いただいた個人情報は、お問い合わせ先の不動産会社でも保管します。 お問い合わせ先の不動産会社が保管する個人情報の取り扱いについては、不動産会社に直接お問い合わせください。

    情報提供会社

    情報提供会社

    (株)ミニミニ城西 京王八王子店

    国土交通大臣免許(6)第5570号

    交通:
    京王線/京王八王子駅 徒歩1分
    東京都八王子市明神町4丁目6-3 みつげんビル2F
    TEL:
    042-645-8032
    FAX:
    042-645-2367

    取引態様:仲介

    • 会社情報
    • 00784101
    スマートフォンで
    この不動産会社を見る
    QRコード
    • とりあえず保存
    • お問い合わせ
    • 提携サイト等より掲載されている物件情報につきましては、不動産会社詳細情報にリンクされていないものがあります。
    • 物件に関するお問合せは、物件詳細ページの「情報提供会社」に表示されている不動産会社へ直接お願いいたします。
    • 間取図は、現況を優先させていただきます。
    • 映像は物件の一部を撮影したものです。物件の契約にあたっての最終判断はご自身の判断に基づいて行ってください。
    • 仲介手数料について仲介手数料

    アットホームは物件情報の適正化に努めております。 内容に誤りがある場合にはこちらへご連絡ください。

    【埼玉住まい情報】では、日本全国の物件から賃貸マンションや賃貸アパート・賃貸一戸建て等の賃貸住宅情報、新築マンション・分譲マンションや中古マンション等の売買マンション情報、新築一戸建てや中古一戸建てなどの戸建住宅、 土地など、総合的な不動産住宅情報検索サービスを提供致します。
    【埼玉住まい情報】から、選りすぐりの不動産物件を探してみましょう。

    【免責事項】
    このコーナーの運営はアットホーム株式会社(https://www.athome.co.jp/)が行っています。
    このコーナーに掲載している物件情報は、「アットホーム不動産情報ネットワーク」に加盟する不動産会社等(情報提供元)から提供されています。信頼性の高い情報提供が行えるよう、最大限の努力をしておりますが、その内容を保証するものではありません。 利用者のみなさまと各情報提供元との取引に起因する損害および情報が掲載されたことに起因する損害等については、株式会社イーシティ埼玉、およびアットホームは一切責任を負いません。
    各物件情報の内容や画像等はすべて現況を優先させていただきます。
    お取引等(お取引の準備、資金調達等を含みます)の際には、内容や契約条件等について、各情報提供元より十分な説明を受け、ご自身でご確認の上、判断してください。
    このコーナーへの物件情報のご掲載、その他不動産業務ソリューション等についての不動産会社様のお問合せはこちらからお願いいたします。

    物件画像: