東京都豊島区高田1丁目(雑司が谷駅)の賃貸:物件詳細
交通 所在地 |
駅徒歩 |
賃料 管理費等 |
敷金/保証金 礼金 |
間取り 面積 |
物件種目 築年月 |
|
東京メトロ副都心線/雑司が谷
東京都豊島区高田1丁目
|
10分
|
10.9万円
13,000円
|
なし / なし
1ヶ月
|
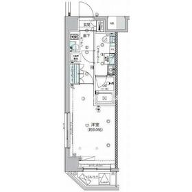
1K
25.81m²
|
賃貸マンション
2020年1月(築6年3ヶ月)
|
ペット相談、デザイナーズ、分譲タイプ、常時ゴミ出し可能、24時間換気システム、外観タイル張り、IT重説対応物件、保証人不要
|
|
間取図
|
外観
|
<
その他の画像
>
|
| 交通 | 東京メトロ副都心線 雑司が谷駅 徒歩10分 |
|---|
| その他の交通 | 都電荒川線 早稲田駅 徒歩5分 東京メトロ東西線 早稲田駅 徒歩15分 |
| 所在地 |
東京都豊島区高田1丁目
|
| 物件種目 |
賃貸マンション |
| 賃料 |
10.9万円 |
管理費等 |
13,000円 |
| 敷金 / 保証金 |
なし / なし |
礼金 |
1ヶ月 |
| 敷引 |
- |
保証金償却 |
- |
| その他一時金 |
なし、鍵交換代等:22,000円~ |
保険等 |
要 2年 20,000円 |
| 維持費等 |
- |
| 間取り |
1K(洋8) |
専有面積 |
25.81m² |
| 築年月 |
2020年1月(築6年3ヶ月)
|
階建 / 階 |
8階建 / 2階 |
| 建物構造 |
RC |
総戸数 |
- |
| 主要採光面 |
|
駐車場 |
- |
| バイク置き場 |
- |
駐輪場 |
有 |
| 建物名・部屋番号 |
|
ペット |
相談 |
| アピールポイント |
共用部にはゴミ出し24時間OK・宅配ボックスなどが揃っており、とても充実しています。室内設備は洗面化粧台・浴室乾燥機など充実した設備を備え付けています。収納はクロゼット・シューズボックスなど豊富なので、広々と空間を利用することも可能です。セキュリティ面は、オートロック・TVインターホンなど充実しているので、防犯対策もばっちりです。清潔感のある室内が魅力的な令和2年築の物件となっており、一押しです。二口コンロが付いているマンションです。手間をかけず衛生的に扱えるシステムキッチンは、収納にも余裕あり。暑い夏、寒い冬には必須のエアコンが付いています。このマンションは駐輪場が付いている物件です。1Kなのでキッチンも快適。楽しくお料理もできる満足の物件です。毎日長時間インターネットを利用する方にとって、毎月インターネット使用料を支払う必要がないので月々の出費を抑えることができます。 |
| リフォーム履歴 |
- |
| リノベーション履歴 |
- |
| 備考 |
賃貸保証等:加入要(初回保証料:総賃料~50%)
管理形態/管理員の勤務形態:-/-
IT重説対応物件
インターネット上で他にも気になるお部屋がございましたら、当社でまとめてご案内可能です。
収納はクロゼット・シューズボックスなど豊富なので、広々と空間を利用することも可能です。共用部には宅配ボックス・ゴミ出し24時間OKなどが揃っており、とても充実しています。セキュリティ面は、オートロック・TVインターホンなどを備え付けているので安心して暮らせます。室内設備は洗面所独立・浴室乾燥機など豊富に揃っており、過ごしやすいお部屋になっております。マンションタイプのお部屋です。こちらのお部屋で新しい生活を始めてみませんか。引っ越しの希望日などあればお伝えください。対応させていただきます。新たな回線工事の必要ない、インターネット付きの物件です。犯罪を抑制する効果がある防犯カメラ付きのマンションです。畳よりも傷がつきにくいフローリングで、扱いやすく好評いただいています。このマンションはバルコニー付きで、用途に合わせて利用できます。
|
| エネルギー消費性能 |
- |
| 断熱性能 |
- |
| 目安光熱費 |
- |
| バス・トイレ |
TV付浴室、バス・トイレ別、浴室乾燥機、洗面所独立、洗面所、洗面台、シャワー、温水洗浄便座、トイレ |
| キッチン |
システムキッチン、2口コンロ、ガスコンロ可 |
| セキュリティー |
モニター付オートロック、オートロック、モニター付インターホン、ディンプルキー、ダブルロックドア、防犯カメラ |
| 収納 |
収納スペース、クローゼット、シューズボックス |
| 設備・サービス |
室内洗濯機置場、洗濯機置場、都市ガス給湯、給湯、フローリング、都市ガス、エアコン、冷房、人感センサー付照明、照明器具 |
| TV・通信 |
インターネット対応、インターネット使用料無料、CS、BS端子 |
| その他 |
宅配BOX、バルコニー、駐輪場、エレベーター |
| 契約期間 |
2年 |
現況 |
居住中 |
| 条件等 |
- |
入居可能時期 |
相談 |
| 更新料 |
新賃料 1ヶ月 |
物件番号 |
1104888125 |
| 情報公開日 |
2026年3月18日 |
次回更新予定日 |
2026年4月1日 |
| ケータイ用バーコード |
- スマートフォンでこの物件を見る
- スマートフォンからもこの物件をご覧になれます。
|
※「-」と表示されている項目については、情報提供会社にご確認ください。
| 周辺施設 |
まいばすけっと 面影橋駅東店 |
| 距離 |
268m |
写真を見る |
| 周辺施設 |
ファミリーマート 豊島高田一丁目店 |
| 距離 |
130m |
写真を見る |
| 周辺施設 |
セブンイレブン 西早稲田1丁目新目白通り店 |
| 距離 |
272m |
写真を見る |
| 周辺施設 |
ポプラ面影橋店 |
| 距離 |
209m |
写真を見る |
ここから簡単にお問い合わせをすることができます。
(SSLでの暗号化での送信を希望されるお客さまは
こちら
よりお問い合わせください)
お問い合わせを行う前に
「個人情報の取り扱いについて」を必ずお読みください。
「個人情報の取り扱いについて」に同意いただいた場合は「上記にご同意の上 確認画面へ進む」のボタンをクリックしてください。
個人情報の取り扱いについて
皆さまが送付された個人情報はアットホーム(株)のサーバを経由し、お問い合わせ先の不動産会社にメールまたはFAXにて転送されるためアットホーム(株)にも保管されます。アットホーム(株)で保管された個人情報の取り扱いについては、【こちら】をご覧ください。
また、本画面でご記入いただいた個人情報は、お問い合わせ先の不動産会社でも保管します。 お問い合わせ先の不動産会社が保管する個人情報の取り扱いについては、不動産会社に直接お問い合わせください。
東京都知事免許(1)第111656号 |
|---|
- 交通:
- JR山手線/池袋駅
- 東京都豊島区東池袋1丁目42-14 28山京ビル7階8号室
- TEL:
- 03-6820-4263
- 所属団体:
- (公社)全日本不動産協会会員(公社)首都圏不動産公正取引協議会加盟
取引態様:仲介  - 00278775
|
- スマートフォンで
この不動産会社を見る

|
- 提携サイト等より掲載されている物件情報につきましては、不動産会社詳細情報にリンクされていないものがあります。
- 物件に関するお問合せは、物件詳細ページの「情報提供会社」に表示されている不動産会社へ直接お願いいたします。
- 間取図は、現況を優先させていただきます。
- 映像は物件の一部を撮影したものです。物件の契約にあたっての最終判断はご自身の判断に基づいて行ってください。
- 仲介手数料について

アットホームは物件情報の適正化に努めております。
内容に誤りがある場合にはこちらへご連絡ください。