東京都渋谷区代々木3丁目(代々木駅)の賃貸:物件詳細
交通 所在地 |
駅徒歩 |
賃料 管理費等 |
敷金/保証金 礼金 |
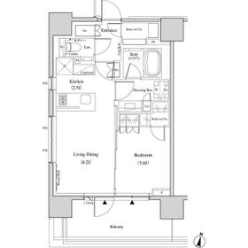
間取り 面積 |
物件種目 築年月 |
|
JR山手線/代々木
東京都渋谷区代々木3丁目
|
8分
|
30.8万円
20,000円
|
1ヶ月 / なし
1ヶ月
|
1LDK
42.93m²
|
賃貸マンション
2025年11月
|
ペット相談、楽器相談、角部屋、南向き
|
|
間取図
|
外観
2025年12月撮影
|
その他の画像
|
| 交通 | JR山手線 代々木駅 徒歩8分 |
|---|
| その他の交通 | 小田急小田原線 参宮橋駅 徒歩6分 |
| 所在地 |
東京都渋谷区代々木3丁目
|
| 物件種目 |
賃貸マンション |
| 賃料 |
30.8万円 |
管理費等 |
20,000円 |
| 敷金 / 保証金 |
1ヶ月 / なし |
礼金 |
1ヶ月 |
| 敷引 |
- |
保証金償却 |
- |
| その他一時金 |
なし |
保険等 |
要 2年 |
| 維持費等 |
- |
| 間取り |
1LDK(洋室5畳/LD8.2畳/K2.5畳) |
専有面積 |
42.93m² |
| 築年月 |
2025年11月
|
階建 / 階 |
地上9階地下1階建 / 3階 |
| 建物構造 |
RC |
総戸数 |
- |
| 主要採光面 |
南 |
駐車場 |
無 |
| バイク置き場 |
- |
駐輪場 |
- |
| 建物名・部屋番号 |
ザ・パークハビオ代々木 |
ペット |
相談 |
| アピールポイント |
「欲しいのは家ではなく、理想の暮らし。」
“出会えてよかった”と思える不動産体験を。
私たちは、単に物件を紹介する不動産会社ではありません。
お客様一人ひとりの“理想の暮らし方”から逆算し、エージェントが多角的な視点で最適な選択肢をご提案します。
「通勤しやすい場所がいい」「子育てがしやすい環境がいい」「ライフスタイルを変えたい」など、暮らしに込めた想いを丁寧に汲み取り、あなた自身が気づいていなかった“本当にフィットする住まい”を一緒にデザインしていきます
その取り組みは多くのお客様から高く評価され、
Google口コミ数No.1、4.9 という形でご支持をいただいております。
「本当の声で選ばれる不動産」として、誠実さとスピード感を大切にしながら、理想の暮らしに寄り添い続けます
住まい選びは人生の大きなターニングポイント。
だからこそ、妥協のないサポートをお約束します。
合同会社あげちゃう不動産
代表 後藤雅広
電話番号; 03-6161-6431 |
| リフォーム履歴 |
- |
| リノベーション履歴 |
- |
| 備考 |
賃貸保証等:加入要(日本セーフティー 初年度保証料:賃料等合計額の50%(最低保証料2万円)2年目以降:1年毎1万円)
管理形態/管理員の勤務形態:-/-
バルコニー:9.6m²
SOHO使用・ペット飼育時敷金1か月積増
保証会社未使用時敷金2か月 退去時:室内清掃・エアコン洗浄費借主負担
|
| エネルギー消費性能 |
- |
| 断熱性能 |
- |
| 目安光熱費 |
- |
| バス・トイレ |
バス・トイレ別、浴室乾燥機、追焚機能、洗面台、シャワー、温水洗浄便座、トイレ |
| キッチン |
2口コンロ、ガスコンロ付 |
| セキュリティー |
モニター付オートロック、モニター付インターホン、防犯カメラ、火災警報器(報知機) |
| 収納 |
ウォークインクローゼット、収納スペース、シューズインクローゼット |
| 設備・サービス |
エアコン2台以上、室内洗濯機置場、給湯、フローリング、エアコン |
| TV・通信 |
インターネット対応、光ファイバー |
| その他 |
宅配BOX、バルコニー、エレベーター |
| 契約期間 |
2年 |
現況 |
空家 |
| 条件等 |
- |
入居可能時期 |
即時 |
| 更新料 |
新賃料 1ヶ月 |
物件番号 |
1105011117 |
| 情報公開日 |
2025年12月17日 |
次回更新予定日 |
2025年12月31日 |
| ケータイ用バーコード |
- スマートフォンでこの物件を見る
- スマートフォンからもこの物件をご覧になれます。
|
※「-」と表示されている項目については、情報提供会社にご確認ください。
ここから簡単にお問い合わせをすることができます。
(SSLでの暗号化での送信を希望されるお客さまは
こちら
よりお問い合わせください)
お問い合わせを行う前に
「個人情報の取り扱いについて」を必ずお読みください。
「個人情報の取り扱いについて」に同意いただいた場合は「上記にご同意の上 確認画面へ進む」のボタンをクリックしてください。
個人情報の取り扱いについて
皆さまが送付された個人情報はアットホーム(株)のサーバを経由し、お問い合わせ先の不動産会社にメールまたはFAXにて転送されるためアットホーム(株)にも保管されます。アットホーム(株)で保管された個人情報の取り扱いについては、【こちら】をご覧ください。
また、本画面でご記入いただいた個人情報は、お問い合わせ先の不動産会社でも保管します。 お問い合わせ先の不動産会社が保管する個人情報の取り扱いについては、不動産会社に直接お問い合わせください。
東京都知事免許(1)第113072号 |
|---|
- 交通:
- 東京メトロ丸ノ内方南支線/中野新橋駅 徒歩6分
- 東京都中野区弥生町2丁目35-9 ZENANA101
- TEL:
- 03-6161-6431
- 所属団体:
- (公社)全日本不動産協会会員(公社)首都圏不動産公正取引協議会加盟
取引態様:仲介  - 00282258
|
- スマートフォンで
この不動産会社を見る

|
- 提携サイト等より掲載されている物件情報につきましては、不動産会社詳細情報にリンクされていないものがあります。
- 物件に関するお問合せは、物件詳細ページの「情報提供会社」に表示されている不動産会社へ直接お願いいたします。
- 間取図は、現況を優先させていただきます。
- 映像は物件の一部を撮影したものです。物件の契約にあたっての最終判断はご自身の判断に基づいて行ってください。
- 仲介手数料について

アットホームは物件情報の適正化に努めております。
内容に誤りがある場合にはこちらへご連絡ください。