不動産 賃貸 マンション等の住宅情報:埼玉住まい情報


東京都板橋区清水町(板橋本町駅)の賃貸:物件詳細

  • 物件詳細
  • 情報の見方
  • 印刷用画面
交通
所在地
駅徒歩 賃料
管理費等
敷金/保証金
礼金
間取り
面積
物件種目
築年月

都営三田線/板橋本町

東京都板橋区清水町

7分

17.8万円

15,000円

なし / なし

なし

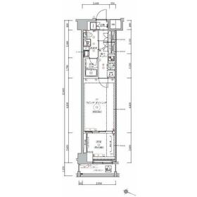
2K

36.73m²

賃貸マンション

2025年5月
新築 

おすすめPOINTペット相談、フリーレント、常時ゴミ出し可能、二人入居可、24時間セキュリティー、24時間換気システム、閑静な住宅街、外観タイル張り、IT重説対応物件、保証人不要

おすすめコメント  スタッフ: A・N

現地集合やオンライン接客、内見も随時承ります。諸条件、なんでもご相談ください!

間取図

間取図

外観

外観

<
その他の画像
  • リビング
  • キッチン
  • バス/シャワー
  • トイレ
  • 収納
  • 室内
  • 洗面
  • 設備
  • 玄関
  • エントランス
  • 共有部分
  • その他
  • 共有部分
  • その他
  • その他
  • その他
  • その他
  • その他
  • その他
  • その他
  • その他
  • 公園
  • 病院
  • 販売店
  • コンビニ
  • 販売店
>
    • とりあえず保存
    • お問い合わせ
    交通

    都営三田線 板橋本町駅 徒歩7分

    その他の交通

    都営三田線 本蓮沼駅 徒歩10分

    JR埼京線 十条駅 徒歩22分
    [バス利用可] バス 12分 HPSC南 停歩5分

    所在地 東京都板橋区清水町
    物件種目 賃貸マンション
    賃料 17.8万円 管理費等 15,000円
    敷金 / 保証金 なし / なし 礼金 なし
    敷引 保証金償却
    その他一時金 24時間サポート:880円、鍵初期設定料:17,600円 保険等 要 1年 11,400円
    維持費等 24時間サポート:880円/月
    間取り 2K(洋4.8、洋8.8) 専有面積 36.73m²
    築年月 2025年5月 新築  階建 / 階 10階建 / 6階
    建物構造 RC 総戸数
    主要採光面 北東 駐車場 有 27,500円/月
    バイク置き場 有 7,700円/月 駐輪場 有 550円/月
    建物名・部屋番号 ベルシード板橋本町プレミアⅡ 603 ペット 相談
    アピールポイント 収納はクロゼット・シューズボックスなどが備え付けられているので、衣類や日用品の収納に重宝します。共用部にはゴミ出し24時間OK・宅配ボックスなどが備わっておりとても充実しています。セキュリティ面は、TVインターホン・オートロックなどを備え付けているので安心して暮らせます。室内設備は浴室乾燥機・洗面化粧台などが揃っているので、快適に過ごしやすいお部屋になります。フローリング張りのお部屋です。照明付き物件なら、リーズナブルにお引っ越しができます。自宅から2駅利用できる、利便性の高いマンションです。入居を急いでいる方、こちらの空室のお部屋であれば入居までの待ち時間も短縮できます。このマンションは契約とチューナーの購入でBS視聴が可能です。こちらはマンションタイプになります。こちらはペット相談可の物件なので、事前にご相談いただけます。
    リフォーム履歴
    リノベーション履歴
    備考
    賃貸保証等:加入要(初回保証料は総賃料等の100%、以降1年毎に1万円~。)
    管理形態/管理員の勤務形態:-/-
    駐車場敷金:1.00ヶ月
    フリーレント:2ヶ月(短期解約違約金あり:2年未満の解約は賃料及び管理費等の2ヶ月分)
    IT重説対応物件
    ペット飼育時:敷金1ヶ月積み増し・退去時償却1ヶ月分※原状回復費含まず。短期解約違約金:1年未満の解約は月額賃料及び管理費の2ヶ月分(フリーレント不要の場合)。解約予告:2ヶ月前。駐輪場:初回登録料550円、上段月額330円・下段月額550円。バイク置場:敷金1ヶ月分、屋内月額7,700円・屋外月額5,500円。
    お車でご案内いたします。お気軽にお問い合わせください♪
    エネルギー消費性能
    断熱性能
    目安光熱費
    バス・トイレ バス・トイレ別、浴室乾燥機、洗面台、シャワー、温水洗浄便座、トイレ
    キッチン システムキッチン、2口コンロ、ガスコンロ可
    セキュリティー モニター付オートロック、オートロック、モニター付インターホン、ディンプルキー、ダブルロックドア、防犯カメラ
    収納 収納スペース、クローゼット、シューズボックス
    設備・サービス 室内洗濯機置場、洗濯機置場、都市ガス給湯、給湯、フローリング、室内物干し、都市ガス、エアコン、人感センサー付照明、照明器具
    TV・通信 インターネット対応、インターネット使用料無料、CS、BS端子
    その他 宅配BOX、バイク置き場、バルコニー、駐輪場、エレベーター
    契約期間 2年 現況 空家
    条件等 入居可能時期 即時
    仲介手数料 1.1ヶ月    
    更新料 新賃料 1ヶ月 物件番号 1105020415
    情報公開日 2025年9月5日 次回更新予定日 2025年10月30日
    ケータイ用バーコード

    QRコード

    スマートフォンでこの物件を見る
    スマートフォンからもこの物件をご覧になれます。
    ※「-」と表示されている項目については、情報提供会社にご確認ください。

    この物件の周辺情報

    周辺施設 YUMEパーク・大和町
    距離 667m
    周辺施設 富士見病院
    距離 766m
    周辺施設 板橋本町商店街
    距離 847m
    周辺施設 セブンイレブン 板橋清水町店
    距離 339m
    周辺施設 mini(ミニ)ピアゴ 清水町店
    距離 350m

    クイックお問い合わせ

    ここから簡単にお問い合わせをすることができます。
    (SSLでの暗号化での送信を希望されるお客さまは こちら よりお問い合わせください)

    お問い合わせ内容(必須)
    お名前(必須) 姓  名 
    メールアドレス(必須)
    ※携帯電話のメールアドレスをご入力される方はこちらをご確認ください
    電話番号(必須)
    - -

    ※入力いただいた電話番号へSMSまたは音声でパスワードをご連絡します。

    携帯電話の番号をご入力の方へ

    携帯電話の番号をご入力の方へ
    確認画面にて送信ボタンをクリックするとSMSが携帯電話に届きます。
    そのSMSに記載のパスワード(認証番号)を入力し、お問い合わせを完了してください。
    尚、SMSの送信者番号は 0005 202 760 となります。
    これはアットホームの固定番号です。

    備考欄 希望条件、物件案内希望日、質問などがございましたらご記入ください。
    お問い合わせを行う前に「個人情報の取り扱いについて」を必ずお読みください。
    「個人情報の取り扱いについて」に同意いただいた場合は「上記にご同意の上 確認画面へ進む」のボタンをクリックしてください。

    個人情報の取り扱いについて

    皆さまが送付された個人情報はアットホーム(株)のサーバを経由し、お問い合わせ先の不動産会社にメールまたはFAXにて転送されるためアットホーム(株)にも保管されます。アットホーム(株)で保管された個人情報の取り扱いについては、【こちら】をご覧ください。
    また、本画面でご記入いただいた個人情報は、お問い合わせ先の不動産会社でも保管します。 お問い合わせ先の不動産会社が保管する個人情報の取り扱いについては、不動産会社に直接お問い合わせください。

    情報提供会社

    情報提供会社

    ハウス・トゥ・ハウス・ネットサービス(株) 板橋区役所前店

    国土交通大臣免許(4)第7400号

    交通:
    都営三田線/板橋区役所前駅 徒歩4分
    東京都板橋区仲宿46-12 
    TEL:
    03-6915-5666
    FAX:
    03-6915-5676
    所属団体:
    (公社)全日本不動産協会会員
    (公社)首都圏不動産公正取引協議会加盟

    取引態様:仲介

    • 会社情報
    • 00277079
    スマートフォンで
    この不動産会社を見る
    QRコード
    • とりあえず保存
    • お問い合わせ
    • 提携サイト等より掲載されている物件情報につきましては、不動産会社詳細情報にリンクされていないものがあります。
    • 物件に関するお問合せは、物件詳細ページの「情報提供会社」に表示されている不動産会社へ直接お願いいたします。
    • 間取図は、現況を優先させていただきます。
    • 映像は物件の一部を撮影したものです。物件の契約にあたっての最終判断はご自身の判断に基づいて行ってください。
    • 仲介手数料について仲介手数料

    アットホームは物件情報の適正化に努めております。 内容に誤りがある場合にはこちらへご連絡ください。

    【埼玉住まい情報】では、日本全国の物件から賃貸マンションや賃貸アパート・賃貸一戸建て等の賃貸住宅情報、新築マンション・分譲マンションや中古マンション等の売買マンション情報、新築一戸建てや中古一戸建てなどの戸建住宅、 土地など、総合的な不動産住宅情報検索サービスを提供致します。
    【埼玉住まい情報】から、選りすぐりの不動産物件を探してみましょう。

    【免責事項】
    このコーナーの運営はアットホーム株式会社(https://www.athome.co.jp/)が行っています。
    このコーナーに掲載している物件情報は、「アットホーム不動産情報ネットワーク」に加盟する不動産会社等(情報提供元)から提供されています。信頼性の高い情報提供が行えるよう、最大限の努力をしておりますが、その内容を保証するものではありません。 利用者のみなさまと各情報提供元との取引に起因する損害および情報が掲載されたことに起因する損害等については、株式会社イーシティ埼玉、およびアットホームは一切責任を負いません。
    各物件情報の内容や画像等はすべて現況を優先させていただきます。
    お取引等(お取引の準備、資金調達等を含みます)の際には、内容や契約条件等について、各情報提供元より十分な説明を受け、ご自身でご確認の上、判断してください。
    このコーナーへの物件情報のご掲載、その他不動産業務ソリューション等についての不動産会社様のお問合せはこちらからお願いいたします。

    物件画像: