東京都目黒区祐天寺2丁目(祐天寺駅)の賃貸:物件詳細
交通 所在地 |
駅徒歩 |
賃料 管理費等 |
敷金/保証金 礼金 |
間取り 面積 |
物件種目 築年月 |
|
東急東横線/祐天寺
東京都目黒区祐天寺2丁目
|
1分
|
17万円
8,000円
|
1ヶ月 / なし
なし
|
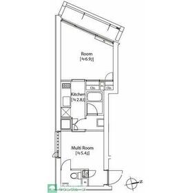
1SK
33.12m²
|
賃貸マンション
2006年3月(築20年1ヶ月)
|
デザイナーズ、常時ゴミ出し可能、角部屋、二人入居可、24時間セキュリティー、24時間換気システム、IT重説対応物件、保証人不要
|
|
間取図
【初期費用分割・クレカ対応】一都三県のお部屋探しは2025年全国年間仲介件数ランキング2位 タウンハウジング東京にお任せ下さい。
|
外観
【初期費用分割・クレカ対応】一都三県のお部屋探しは2025年全国年間仲介件数ランキング2位 タウンハウジング東京にお任せ下さい。
|
<
その他の画像
>
|
| 交通 | 東急東横線 祐天寺駅 徒歩1分 |
|---|
| その他の交通 | 東京メトロ日比谷線 中目黒駅 徒歩14分 東急東横線 学芸大学駅 徒歩15分 |
| 所在地 |
東京都目黒区祐天寺2丁目
|
| 物件種目 |
賃貸マンション |
| 賃料 |
17万円 |
管理費等 |
8,000円 |
| 敷金 / 保証金 |
1ヶ月 / なし |
礼金 |
なし |
| 敷引 |
- |
保証金償却 |
- |
| その他一時金 |
なし、鍵交換代等:27,500円~ |
保険等 |
要 2年 18,000円 |
| 維持費等 |
- |
クレジットカード決済 |
初期費用可 |
| 間取り |
1SK(洋室6.9帖 S5.4帖 K2.8帖) |
専有面積 |
33.12m² |
| 築年月 |
2006年3月(築20年1ヶ月)
|
階建 / 階 |
7階建 / 4階 |
| 建物構造 |
RC |
総戸数 |
27戸 |
| 主要採光面 |
西 |
駐車場 |
無 |
| バイク置き場 |
無 |
駐輪場 |
無 |
| 建物名・部屋番号 |
|
ペット |
-
|
| アピールポイント |
★東京都を中心に関東人気エリアの賃貸マンション・アパート情報が豊富★
★お部屋探しは首都圏に強いタウンハウジングにお任せください★~オンライン内見・相談も対応可能です~★
|
| リフォーム履歴 |
- |
| リノベーション履歴 |
- |
| 備考 |
賃貸保証等:加入要(賃貸保証料:0.30ヶ月 初回契約時:50%、月額:1%)
管理形態/管理員の勤務形態:-/-
IT重説対応物件、外壁コンクリート
★東京都を中心に関東人気エリアの賃貸マンション・アパート情報が豊富★
★お部屋探しは首都圏に強いタウンハウジングにお任せください★
※退去時の室内清掃費用は借主負担 短期解約時違約金有
|
| エネルギー消費性能 |
- |
| 断熱性能 |
- |
| 目安光熱費 |
- |
| バス・トイレ |
バス・トイレ別、浴室暖房、浴室乾燥機、オートバス、追焚機能、洗面所独立、洗面所、洗面台、シャワー、温水洗浄便座、トイレ |
| キッチン |
システムキッチン、2口コンロ、ガスコンロ付 |
| セキュリティー |
オートロック、モニター付インターホン、ディンプルキー、防犯カメラ |
| 収納 |
収納スペース、クローゼット、シューズボックス |
| 設備・サービス |
室内洗濯機置場、都市ガス給湯、給湯、全居室フローリング、フローリング、都市ガス、エアコン |
| TV・通信 |
インターネット対応、インターネット使用料無料、CS、BS端子 |
| その他 |
宅配BOX、バルコニー、エレベーター |
| 契約期間 |
2年 |
現況 |
空家 |
| 条件等 |
- |
入居可能時期 |
即時 |
| 仲介手数料 |
1.1ヶ月 |
|
|
| 更新料 |
新賃料 1ヶ月 |
物件番号 |
1105051123 |
| 情報公開日 |
2026年3月26日 |
次回更新予定日 |
2026年4月9日 |
| ケータイ用バーコード |
- スマートフォンでこの物件を見る
- スマートフォンからもこの物件をご覧になれます。
|
※「-」と表示されている項目については、情報提供会社にご確認ください。
| 周辺施設 |
東急ストア祐天寺店 |
| 距離 |
140m |
写真を見る |
| 周辺施設 |
スーパーオオゼキ祐天寺店 |
| 距離 |
470m |
写真を見る |
| 周辺施設 |
ファミリーマート祐天寺駅前店 |
| 距離 |
130m |
写真を見る |
| 周辺施設 |
セブンイレブン目黒祐天寺駅西口店 |
| 距離 |
210m |
写真を見る |
| 周辺施設 |
くすりセイジョー祐天寺一番店 |
| 距離 |
130m |
写真を見る |
| 周辺施設 |
トモズエトモ祐天寺店 |
| 距離 |
80m |
写真を見る |
ここから簡単にお問い合わせをすることができます。
(SSLでの暗号化での送信を希望されるお客さまは
こちら
よりお問い合わせください)
お問い合わせを行う前に
「個人情報の取り扱いについて」を必ずお読みください。
「個人情報の取り扱いについて」に同意いただいた場合は「上記にご同意の上 確認画面へ進む」のボタンをクリックしてください。
個人情報の取り扱いについて
皆さまが送付された個人情報はアットホーム(株)のサーバを経由し、お問い合わせ先の不動産会社にメールまたはFAXにて転送されるためアットホーム(株)にも保管されます。アットホーム(株)で保管された個人情報の取り扱いについては、【こちら】をご覧ください。
また、本画面でご記入いただいた個人情報は、お問い合わせ先の不動産会社でも保管します。 お問い合わせ先の不動産会社が保管する個人情報の取り扱いについては、不動産会社に直接お問い合わせください。
国土交通大臣免許(1)第9926号 |
|---|
- 交通:
- JR山手線/恵比寿駅 徒歩2分
- 東京都渋谷区恵比寿1丁目7-12 LA CITY EBISU Ⅱ 3階
- TEL:
- 03-3440-2581
- FAX:
- 03-3440-2582
- 所属団体:
- 所属団体未加入会員
取引態様:仲介  - 00272301
|
- スマートフォンで
この不動産会社を見る

|
- 提携サイト等より掲載されている物件情報につきましては、不動産会社詳細情報にリンクされていないものがあります。
- 物件に関するお問合せは、物件詳細ページの「情報提供会社」に表示されている不動産会社へ直接お願いいたします。
- 間取図は、現況を優先させていただきます。
- 映像は物件の一部を撮影したものです。物件の契約にあたっての最終判断はご自身の判断に基づいて行ってください。
- 仲介手数料について

アットホームは物件情報の適正化に努めております。
内容に誤りがある場合にはこちらへご連絡ください。