東京都台東区元浅草4丁目(田原町駅)の賃貸:物件詳細
交通 所在地 |
駅徒歩 |
賃料 管理費等 |
敷金/保証金 礼金 |
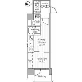
間取り 面積 |
物件種目 築年月 |
|
東京メトロ銀座線/田原町
東京都台東区元浅草4丁目
|
6分
|
16.7万円
10,000円
|
なし / なし
なし
|
1DK
28.95m²
|
賃貸マンション
2025年10月
|
ペット相談、最上階、24時間換気システム、外観タイル張り
|
|
間取図
|
外観
|
<
その他の画像
>
|
| 交通 | 東京メトロ銀座線 田原町駅 徒歩6分 |
|---|
| その他の交通 | 東京メトロ銀座線 稲荷町駅 徒歩8分 都営大江戸線 蔵前駅 徒歩10分 |
| 所在地 |
東京都台東区元浅草4丁目
|
| 物件種目 |
賃貸マンション |
| 賃料 |
16.7万円 |
管理費等 |
10,000円 |
| 敷金 / 保証金 |
なし / なし |
礼金 |
なし |
| 敷引 |
- |
保証金償却 |
- |
| その他一時金 |
契約事務手数料(仲介):7,700円、Goodプレミアムα(24Hサポートのみ):16,500円、Goodプレミアムα登録料:3,300円、室内清掃費用:41,800円 |
保険等 |
要 2年 22,000円 |
| 維持費等 |
- |
| 間取り |
1DK |
専有面積 |
28.95m² |
| 築年月 |
2025年10月
|
階建 / 階 |
13階建 / 11階 |
| 建物構造 |
RC |
総戸数 |
- |
| 主要採光面 |
東 |
駐車場 |
- |
| バイク置き場 |
- |
駐輪場 |
有 |
| 建物名・部屋番号 |
nidoMOTOASAKUSA 1102 |
ペット |
猫可 |
| アピールポイント |
セキュリティ面は、TVインターホン・オートロックなど充実しているので安心して生活できます。室内設備は浴室乾燥機・洗面所独立など豊富に揃っており、過ごしやすいお部屋になっております。収納はクロゼット・シューズボックスなど豊富なので、衣類や履き物の整理がしやすく便利です。不在時や家にいながら応対できないときでも宅配ボックスに荷物が届けられるので、配達時間を気にせずに生活を送ることができます。こだわりを叶えられる新築物件です。ごみ置き場も近くにあり、使い勝手もいいです。駐輪場付きの物件です。ペット好きな方にもご紹介したい、ペット飼育可の物件です。現在空家となっておりますので、お早めのお引越しが可能な物件です。設備・環境ともに良い16.9万円の物件です。インターネットが無料であるため、インターネット回線の契約が不要で、解約の手間がかからず日程調整が難しい方にもおすすめです。 |
| リフォーム履歴 |
- |
| リノベーション履歴 |
- |
| 備考 |
賃貸保証等:加入要(エポスカード 月次(FIS保険)東京初回保証料60%+月次1%(フレックス少額短期保険代保証))
管理形態/管理員の勤務形態:-/-
収納はシューズボックス・クロゼットなど豊富なので、広々と空間を利用することも可能です。ノーメイクや寝起きで人と接触することがためらうような時でも、宅配ボックスがあるので人に会わずに荷物を受け取ることができます。セキュリティ面は、オートロック・TVインターホンなど充実しているので、防犯対策もばっちりです。室内設備は洗面所独立・浴室乾燥機などが揃っており、とても充実しています。2沿線利用可能な物件です。2口コンロが付いているので、短い時間で一気に作り置きもできて効率的です。この物件は駐輪場付きの物件です。こちらの物件はマンションです。13階建ての物件です。新居におススメ。こだわり条件満載の新築物件。畳に比べるとダニ・カビを気にしなくて良いフローリング付き。
|
| エネルギー消費性能 |
- |
| 断熱性能 |
- |
| 目安光熱費 |
- |
| バス・トイレ |
バス・トイレ別、浴室乾燥機、追焚機能、洗面所独立、洗面所、シャワー、温水洗浄便座、トイレ |
| キッチン |
システムキッチン、2口コンロ |
| セキュリティー |
モニター付オートロック、オートロック、モニター付インターホン、ダブルロックドア、防犯カメラ |
| 収納 |
収納スペース、クローゼット、シューズボックス |
| 設備・サービス |
室内洗濯機置場、洗濯機置場、都市ガス給湯、給湯、フローリング、都市ガス、エアコン |
| TV・通信 |
インターネット対応、インターネット使用料無料、光ファイバー、CS、BS端子 |
| その他 |
宅配BOX、バルコニー、駐輪場、エレベーター |
| 契約期間 |
2年 |
現況 |
空家 |
| 条件等 |
- |
入居可能時期 |
即時 |
| 更新料 |
169,000円 |
物件番号 |
1105052225 |
| 情報公開日 |
2026年3月18日 |
次回更新予定日 |
2026年4月1日 |
| ケータイ用バーコード |
- スマートフォンでこの物件を見る
- スマートフォンからもこの物件をご覧になれます。
|
※「-」と表示されている項目については、情報提供会社にご確認ください。
| 周辺施設 |
まいばすけっと 台東寿1丁目店 |
| 距離 |
350m |
写真を見る |
| 周辺施設 |
まいばすけっと 合羽橋南店 |
| 距離 |
428m |
写真を見る |
| 周辺施設 |
大黒屋 浅草店 |
| 距離 |
420m |
写真を見る |
| 周辺施設 |
ミニストップ 元浅草3丁目店 |
| 距離 |
133m |
写真を見る |
| 周辺施設 |
セブンイレブン 台東松が谷1丁目店 |
| 距離 |
293m |
写真を見る |
| 周辺施設 |
ローソン 元浅草三丁目店 |
| 距離 |
470m |
写真を見る |
| 周辺施設 |
元浅草アイアイ薬局 |
| 距離 |
182m |
写真を見る |
| 周辺施設 |
大塚雲鶴堂薬局 |
| 距離 |
317m |
写真を見る |
ここから簡単にお問い合わせをすることができます。
(SSLでの暗号化での送信を希望されるお客さまは
こちら
よりお問い合わせください)
お問い合わせを行う前に
「個人情報の取り扱いについて」を必ずお読みください。
「個人情報の取り扱いについて」に同意いただいた場合は「上記にご同意の上 確認画面へ進む」のボタンをクリックしてください。
個人情報の取り扱いについて
皆さまが送付された個人情報はアットホーム(株)のサーバを経由し、お問い合わせ先の不動産会社にメールまたはFAXにて転送されるためアットホーム(株)にも保管されます。アットホーム(株)で保管された個人情報の取り扱いについては、【こちら】をご覧ください。
また、本画面でご記入いただいた個人情報は、お問い合わせ先の不動産会社でも保管します。 お問い合わせ先の不動産会社が保管する個人情報の取り扱いについては、不動産会社に直接お問い合わせください。
東京都知事免許(1)第106849号 |
|---|
- 交通:
- 都営新宿線/岩本町駅 徒歩1分
- 東京都千代田区神田須田町2丁目6-20 マリアナ神田須田町3階
- TEL:
- 03-5296-9335
- 所属団体:
- (公社)東京都宅地建物取引業協会会員(公社)首都圏不動産公正取引協議会加盟
取引態様:仲介  - 00271035
|
- スマートフォンで
この不動産会社を見る

|
- 提携サイト等より掲載されている物件情報につきましては、不動産会社詳細情報にリンクされていないものがあります。
- 物件に関するお問合せは、物件詳細ページの「情報提供会社」に表示されている不動産会社へ直接お願いいたします。
- 間取図は、現況を優先させていただきます。
- 映像は物件の一部を撮影したものです。物件の契約にあたっての最終判断はご自身の判断に基づいて行ってください。
- 仲介手数料について

アットホームは物件情報の適正化に努めております。
内容に誤りがある場合にはこちらへご連絡ください。