東京都豊島区上池袋1丁目(大塚駅)の賃貸:物件詳細
交通 所在地 |
駅徒歩 |
賃料 管理費等 |
敷金/保証金 礼金 |
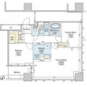
間取り 面積 |
物件種目 築年月 |
|
JR山手線/大塚
東京都豊島区上池袋1丁目
|
9分
|
28.3万円
15,000円
|
1ヶ月 / なし
なし
|
1SLDK
65.76m²
|
賃貸マンション
2009年5月(築16年6ヶ月)
|
ペット相談、楽器相談、二人入居可、IT重説対応物件、保証人不要
|
|
間取図
|
外観
|
<
その他の画像
>
|
| 交通 | JR山手線 大塚駅 徒歩9分 |
|---|
| その他の交通 | 東武東上線 北池袋駅 徒歩11分 JR埼京線 板橋駅 徒歩18分 |
| 所在地 |
東京都豊島区上池袋1丁目
|
| 物件種目 |
賃貸マンション |
| 賃料 |
28.3万円 |
管理費等 |
15,000円 |
| 敷金 / 保証金 |
1ヶ月 / なし |
礼金 |
なし |
| 敷引 |
- |
保証金償却 |
- |
| その他一時金 |
なし、鍵交換代等:22,000円~ |
保険等 |
要 3年 27,000円 |
| 維持費等 |
インターネット使用料:1,650円/月 |
| 間取り |
1SLDK(S5.1) |
専有面積 |
65.76m² |
| 築年月 |
2009年5月(築16年6ヶ月)
|
階建 / 階 |
22階建 / 3階 |
| 建物構造 |
RC |
総戸数 |
- |
| 主要採光面 |
南東 |
駐車場 |
- |
| バイク置き場 |
- |
駐輪場 |
- |
| 建物名・部屋番号 |
レジディアタワー上池袋(タワー棟) TW314 |
ペット |
相談 |
| アピールポイント |
共用部には宅配ボックスが備え付けられているため、対面で荷物を受け取らなくて済みます。セキュリティ面は、オートロック・TVインターホンなど充実しているので安心して生活できます。収納はクロゼット・シューズボックスなど豊富なので、広々と空間を利用することも可能です。室内設備は洗面所独立・浴室乾燥機など大変充実しております。こちらの物件はマンションです。2駅利用可能なので、用途や行き先に応じて経路を選択できます。入居の当日からインターネットが使えます。景色が綺麗で住み心地の良い22階建て物件。ペット好きな方にもご紹介したい、ペット飼育可の物件です。空き巣対策として心強い防犯カメラ付き物件です。この物件は契約とチューナーの購入でBS視聴が可能です。 |
| リフォーム履歴 |
- |
| リノベーション履歴 |
- |
| 備考 |
賃貸保証等:加入要(初回契約時:40%、更新時:10,000円、月額:1,000円)
管理形態/管理員の勤務形態:-/-
IT重説対応物件
安心のオートロック付き!TVモニター付きインターホン!
1年未満解約の場合総賃料の1ヶ月分短期解約違約金あり。9月室内リノベーション施工予定(内容:キッチン・洗面台・浴室・建具・フローリング) 定期借家契約3年。
|
| エネルギー消費性能 |
- |
| 断熱性能 |
- |
| 目安光熱費 |
- |
| バス・トイレ |
バス・トイレ別、浴室乾燥機、追焚機能、洗面所独立、洗面所、洗面台、シャワー、温水洗浄便座、トイレ |
| キッチン |
システムキッチン |
| セキュリティー |
モニター付オートロック、オートロック、モニター付インターホン、防犯カメラ |
| 収納 |
ウォークインクローゼット、収納スペース、クローゼット、シューズボックス |
| 設備・サービス |
給湯、フローリング、エアコン |
| TV・通信 |
インターネット対応、ケーブルTV、CS、BS端子 |
| その他 |
宅配BOX、バルコニー、エレベーター |
| 契約期間 |
3年 |
現況 |
居住中 |
| 条件等 |
定期借家 |
入居可能時期 |
相談 |
| 仲介手数料 |
1.1ヶ月 |
|
|
| 更新料 |
- |
物件番号 |
1105327215 |
| 情報公開日 |
2025年9月5日 |
次回更新予定日 |
2025年11月3日 |
| ケータイ用バーコード |
- スマートフォンでこの物件を見る
- スマートフォンからもこの物件をご覧になれます。
|
※「-」と表示されている項目については、情報提供会社にご確認ください。
| 周辺施設 |
池袋P'PARCO(ピー ダッシュ パルコ) |
| 距離 |
1310m |
写真を見る |
| 周辺施設 |
ピーコックストア 上池袋店 |
| 距離 |
133m |
写真を見る |
| 周辺施設 |
セブンイレブン 豊島上池袋1丁目店 |
| 距離 |
271m |
写真を見る |
| 周辺施設 |
豊島中央病院 |
| 距離 |
477m |
写真を見る |
ここから簡単にお問い合わせをすることができます。
(SSLでの暗号化での送信を希望されるお客さまは
こちら
よりお問い合わせください)
お問い合わせを行う前に
「個人情報の取り扱いについて」を必ずお読みください。
「個人情報の取り扱いについて」に同意いただいた場合は「上記にご同意の上 確認画面へ進む」のボタンをクリックしてください。
個人情報の取り扱いについて
皆さまが送付された個人情報はアットホーム(株)のサーバを経由し、お問い合わせ先の不動産会社にメールまたはFAXにて転送されるためアットホーム(株)にも保管されます。アットホーム(株)で保管された個人情報の取り扱いについては、【こちら】をご覧ください。
また、本画面でご記入いただいた個人情報は、お問い合わせ先の不動産会社でも保管します。 お問い合わせ先の不動産会社が保管する個人情報の取り扱いについては、不動産会社に直接お問い合わせください。
国土交通大臣免許(4)第7400号 |
|---|
- 交通:
- JR埼京線/板橋駅
- 東京都北区滝野川6丁目84-8
- TEL:
- 03-3918-1115
- 所属団体:
- (公社)全日本不動産協会会員(公社)首都圏不動産公正取引協議会加盟
取引態様:仲介  - 00511925
|
- スマートフォンで
この不動産会社を見る

|
- 提携サイト等より掲載されている物件情報につきましては、不動産会社詳細情報にリンクされていないものがあります。
- 物件に関するお問合せは、物件詳細ページの「情報提供会社」に表示されている不動産会社へ直接お願いいたします。
- 間取図は、現況を優先させていただきます。
- 映像は物件の一部を撮影したものです。物件の契約にあたっての最終判断はご自身の判断に基づいて行ってください。
- 仲介手数料について

アットホームは物件情報の適正化に努めております。
内容に誤りがある場合にはこちらへご連絡ください。