神奈川県川崎市川崎区南町(京急川崎駅)の賃貸:物件詳細
交通 所在地 |
駅徒歩 |
賃料 管理費等 |
敷金/保証金 礼金 |
間取り 面積 |
物件種目 築年月 |
|
京急本線/京急川崎
神奈川県川崎市川崎区南町
|
9分
|
9万円
15,000円
|
1ヶ月 / なし
1ヶ月
|
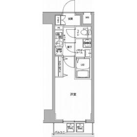
1K
23.20m²
|
賃貸マンション
2017年3月(築8年10ヶ月)
|
ペット相談、デザイナーズ、24時間換気システム、外観タイル張り、IT重説対応物件、保証人不要
|
|
間取図
|
外観
|
<
その他の画像
>
|
| 交通 | 京急本線 京急川崎駅 徒歩9分 |
|---|
| その他の交通 | JR京浜東北線 川崎駅 徒歩11分 JR南武線 川崎新町駅 徒歩17分 |
| 所在地 |
神奈川県川崎市川崎区南町
|
| 物件種目 |
賃貸マンション |
| 賃料 |
9万円 |
管理費等 |
15,000円 |
| 敷金 / 保証金 |
1ヶ月 / なし |
礼金 |
1ヶ月 |
| 敷引 |
- |
保証金償却 |
解約時1ヶ月 |
| その他一時金 |
入居中サポート:21,450円、室内抗菌処理代:17,600円、事務手数料:11,000円、クリーニング費:66,000円 |
保険等 |
要 2年 23,000円 |
| 維持費等 |
口座振替手数料:660円/月 |
| 間取り |
1K |
専有面積 |
23.20m² |
| 築年月 |
2017年3月(築8年10ヶ月)
|
階建 / 階 |
13階建 / 9階 |
| 建物構造 |
RC |
総戸数 |
- |
| 主要採光面 |
南東 |
駐車場 |
- |
| バイク置き場 |
有 |
駐輪場 |
有 |
| 建物名・部屋番号 |
ジェノヴィア川崎駅グリーンヴェール 908 |
ペット |
相談 |
| アピールポイント |
数多い不動産会社の中から当社を選んでいただいたお客様に、安心して暮らせる住まいを責任を持ってお探しします。
お客様の立場になってアドバイスさせていただき、満足のいくお部屋が見つかるまでお手伝いします。
人気物件の為お電話のお問い合わせがスムーズです☆
横浜市・川崎市エリアのワンルームからファミリータイプまで幅広く対応しておりますので、お気軽にお問い合わせください。 |
| リフォーム履歴 |
- |
| リノベーション履歴 |
- |
| 備考 |
賃貸保証等:加入要(その他:初回保証料:総賃料50%、継続保証料:10,000円/年:ルームバンクインシュア)
管理形態/管理員の勤務形態:-/-
IT重説対応物件
短期解約違約金有/ペット(小型犬・猫どちらか1匹迄)飼育時:管理費3,500円増額
|
| エネルギー消費性能 |
- |
| 断熱性能 |
- |
| 目安光熱費 |
- |
| バス・トイレ |
バス・トイレ別、浴室乾燥機、洗面所独立、洗面台、シャワー、温水洗浄便座、トイレ |
| キッチン |
システムキッチン、2口コンロ、ガスコンロ可 |
| セキュリティー |
オートロック、モニター付インターホン |
| 収納 |
クローゼット、シューズボックス |
| 設備・サービス |
室内洗濯機置場、給湯、フローリング、都市ガス、エアコン |
| TV・通信 |
CS、BS端子 |
| その他 |
宅配BOX、バイク置き場、バルコニー、駐輪場、エレベーター |
| 契約期間 |
2年 |
現況 |
居住中 |
| 条件等 |
- |
入居可能時期 |
相談 |
| 更新料 |
新賃料 1.5ヶ月 |
物件番号 |
1105347817 |
| 情報公開日 |
2025年12月19日 |
次回更新予定日 |
2026年1月2日 |
| ケータイ用バーコード |
- スマートフォンでこの物件を見る
- スマートフォンからもこの物件をご覧になれます。
|
※「-」と表示されている項目については、情報提供会社にご確認ください。
| 周辺施設 |
川崎駅 徒歩10分。徒歩約9分 |
| 距離 |
750m |
写真を見る |
ここから簡単にお問い合わせをすることができます。
(SSLでの暗号化での送信を希望されるお客さまは
こちら
よりお問い合わせください)
お問い合わせを行う前に
「個人情報の取り扱いについて」を必ずお読みください。
「個人情報の取り扱いについて」に同意いただいた場合は「上記にご同意の上 確認画面へ進む」のボタンをクリックしてください。
個人情報の取り扱いについて
皆さまが送付された個人情報はアットホーム(株)のサーバを経由し、お問い合わせ先の不動産会社にメールまたはFAXにて転送されるためアットホーム(株)にも保管されます。アットホーム(株)で保管された個人情報の取り扱いについては、【こちら】をご覧ください。
また、本画面でご記入いただいた個人情報は、お問い合わせ先の不動産会社でも保管します。 お問い合わせ先の不動産会社が保管する個人情報の取り扱いについては、不動産会社に直接お問い合わせください。
国土交通大臣免許(2)第9662号 |
|---|
- 交通:
- 京急本線/京急鶴見駅 徒歩3分
- 神奈川県横浜市鶴見区鶴見中央4丁目5-3 木曽屋第二ビル2F
- TEL:
- 045-642-5786
- FAX:
- 045-642-4386
- 所属団体:
- (公社)神奈川県宅地建物取引業協会会員(公社)首都圏不動産公正取引協議会加盟
取引態様:仲介  - 00265675
|
- スマートフォンで
この不動産会社を見る

|
- 提携サイト等より掲載されている物件情報につきましては、不動産会社詳細情報にリンクされていないものがあります。
- 物件に関するお問合せは、物件詳細ページの「情報提供会社」に表示されている不動産会社へ直接お願いいたします。
- 間取図は、現況を優先させていただきます。
- 映像は物件の一部を撮影したものです。物件の契約にあたっての最終判断はご自身の判断に基づいて行ってください。
- 仲介手数料について

アットホームは物件情報の適正化に努めております。
内容に誤りがある場合にはこちらへご連絡ください。