東京都中央区日本橋堀留町1丁目(人形町駅)の賃貸:物件詳細
				
					
					
				
														
	
		
			
				交通 所在地 | 
				駅徒歩 | 
				賃料 管理費等 | 
				敷金/保証金 礼金 | 
				間取り 面積 | 
				物件種目 築年月 | 
			
		
		
			
								| 
					 東京メトロ日比谷線/人形町
											 
					東京都中央区日本橋堀留町1丁目 
				 | 
								
					 6分 
				 | 
								
					 23万円 
					20,000円 
				 | 
								
					 1ヶ月 / なし 
					なし 
				 | 
								
					 1LDK 
					35.82m² 
				 | 
								
					 賃貸マンション 
					2025年3月
										 
																  
															 
				 | 
			
						
				 ペット相談、楽器相談、常時ゴミ出し可能、二人入居可、SOHO向き、24時間換気システム、保証人不要
  | 
			
					
	
		
		
		
					| 
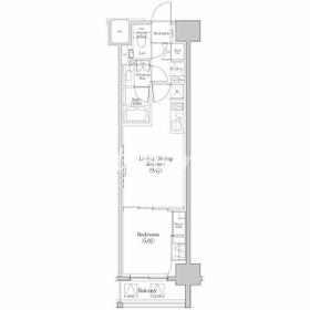
			 間取図 
			
			
			
			
			
		 | 
		
			 外観 
			
			
			
			
			外観 
		 | 
				
		
		
			
				
										<
										
						
							 
							その他の画像
						 
					 
					
										>
									 
				
			 
		 | 
	
				
 
	
		
			
																			          | 交通 | 東京メトロ日比谷線 人形町駅 徒歩6分  | 
|---|
| その他の交通 | 東京メトロ日比谷線 小伝馬町駅 徒歩5分 JR総武本線 新日本橋駅 徒歩9分  | 
			
				| 所在地 | 
				
					東京都中央区日本橋堀留町1丁目
				 | 
			
			
				| 物件種目 | 
				賃貸マンション | 
			
		
		
			
				| 賃料 | 
				23万円 | 
				管理費等 | 
				20,000円 | 
			
			
				| 敷金 / 保証金 | 
				1ヶ月 / なし | 
				礼金 | 
				なし | 
			
			
				| 敷引 | 
				- | 
				保証金償却 | 
				- | 
			
			
				| その他一時金 | 
				駆け付けサポート24:16,500円 | 
				保険等 | 
				要 | 
			
						
				| 維持費等 | 
				- | 
			
					
		
			
				| 間取り | 
				1LDK(LDK9.4帖 洋室5.0帖) | 
				専有面積 | 
				35.82m² | 
			
			
				| 築年月 | 
				2025年3月
									  
												 | 
				階建 / 階 | 
				10階建 / 9階 | 
			
			
				| 建物構造 | 
				RC | 
				総戸数 | 
				- | 
			
			
				| 主要採光面 | 
				東 | 
				駐車場 | 
				- | 
			
			
				| バイク置き場 | 
				無 | 
				駐輪場 | 
				有 330円/月 | 
			
			
				| 建物名・部屋番号 | 
				ザ・パークハビオ日本橋三越前 903 | 
				ペット | 
				
													小型犬可・									猫可												 | 
			
			
	| アピールポイント | 
	ネット無料 ペット・楽器可 SOHO可 人形町駅5分 三越前駅7分 宅配BOX 追焚 浴室乾燥 | 
			
				| リフォーム履歴 | 
				- | 
			
			
				| リノベーション履歴 | 
				- | 
			
			
				| 備考 | 
				
					 
																	賃貸保証等:加入要(初回月額賃料等の50%、2年目以降10000円)
											 						管理形態/管理員の勤務形態:-/-
											 						火災保険加入要 ペット飼育・SOHO利用時敷金1ヶ月増 退去時清掃費借主負担 短期解約違約金あり
										 
					
				 | 
			
		
				
		
		| エネルギー消費性能 | 
		- | 
	
	
		| 断熱性能 | 
		- | 
	
	
		| 目安光熱費 | 
		- | 
	
	
		
									
				| バス・トイレ | 
				バス・トイレ別、浴室暖房、浴室乾燥機、オートバス、追焚機能、洗面所独立、洗面所、洗面台、シャワー、温水洗浄便座、トイレ | 
			
						
				| キッチン | 
				システムキッチン、2口コンロ、ガスコンロ付 | 
			
						
				| セキュリティー | 
				モニター付オートロック、オートロック、モニター付インターホン、防犯カメラ、火災警報器(報知機) | 
			
						
				| 収納 | 
				収納スペース、クローゼット、シューズボックス | 
			
						
				| 設備・サービス | 
				室内洗濯機置場、給湯、都市ガス、エアコン、暖房、冷房、ダウンライト、照明器具 | 
			
						
				| TV・通信 | 
				インターネット対応、インターネット使用料無料、ケーブルTV | 
			
						
				| その他 | 
				宅配BOX、バルコニー、駐輪場、エレベーター | 
			
					
		
			
				| 契約期間 | 
				2年 | 
				現況 | 
				空家 | 
			
			
				| 条件等 | 
				- | 
				入居可能時期 | 
				即時 | 
			
						
				| 更新料 | 
				新賃料 1ヶ月 | 
				物件番号 | 
				1105881107 | 
			
			
				| 情報公開日 | 
				2025年7月24日 | 
				次回更新予定日 | 
				2025年11月8日 | 
			
						
				| ケータイ用バーコード | 
				
				
					
					
						
							- スマートフォンでこの物件を見る
 
							- スマートフォンからもこの物件をご覧になれます。
 
						 
					 
				 
				 | 
			
					
	 
	 									※「-」と表示されている項目については、情報提供会社にご確認ください。
						
	
			
			
			
				
					
						
							| 周辺施設 | 
							小伝馬町駅(東京メトロ 日比谷線) | 
						
						
							| 距離 | 
							430m | 
							写真を見る | 						
					
				
			 
		 
					
			
				
					
						
							| 周辺施設 | 
							新日本橋駅(JR東日本 総武本線) | 
						
						
							| 距離 | 
							770m | 
							写真を見る | 						
					
				
			 
		 
		 
				
			
			
				
					
						
							| 周辺施設 | 
							人形町駅(都営地下鉄 浅草線) | 
						
						
							| 距離 | 
							440m | 
							写真を見る | 						
					
				
			 
		 
					
			
				
					
						
							| 周辺施設 | 
							まいばすけっと日本橋堀留町1丁目店 | 
						
						
							| 距離 | 
							80m | 
							写真を見る | 						
					
				
			 
		 
		 
				
			
			
				
					
						
							| 周辺施設 | 
							デイリーヤマザキ日本橋堀留町店 | 
						
						
							| 距離 | 
							70m | 
													
					
				
			 
		 
					
			
				
					
						
							| 周辺施設 | 
							朝日生命成人病研究所附属医院 | 
						
						
							| 距離 | 
							1210m | 
													
					
				
			 
		 
		 
				
			
			
				
					
						
							| 周辺施設 | 
							中央区立日本橋小学校 | 
						
						
							| 距離 | 
							410m | 
							写真を見る | 						
					
				
			 
		 
					
		 
		 									
												
					
					  ここから簡単にお問い合わせをすることができます。
(SSLでの暗号化での送信を希望されるお客さまは
													こちら
											  よりお問い合わせください)
					  
					
						
						
					
					お問い合わせを行う前に
「個人情報の取り扱いについて」を必ずお読みください。
「個人情報の取り扱いについて」に同意いただいた場合は「上記にご同意の上 確認画面へ進む」のボタンをクリックしてください。 
 
					
					
						個人情報の取り扱いについて
						皆さまが送付された個人情報はアットホーム(株)のサーバを経由し、お問い合わせ先の不動産会社にメールまたはFAXにて転送されるためアットホーム(株)にも保管されます。アットホーム(株)で保管された個人情報の取り扱いについては、【こちら】をご覧ください。
						また、本画面でご記入いただいた個人情報は、お問い合わせ先の不動産会社でも保管します。 お問い合わせ先の不動産会社が保管する個人情報の取り扱いについては、不動産会社に直接お問い合わせください。
					 
				 
				
														
				  
				  
					東京都知事免許(6)第76891号  | 
|---|
- 交通:
 - 東京メトロ日比谷線/人形町駅 徒歩2分
 - 東京都中央区日本橋人形町2丁目14-2 ビビアン人形町1F
 - TEL:
 - 03-6228-4882
 - FAX:
 - 03-6231-0911
 - 所属団体:
 - (公社)全日本不動産協会会員(公社)首都圏不動産公正取引協議会加盟
 
 取引態様:仲介  - 00275539
 
  | 
						  						  
							
							  
								- スマートフォンで
 この不動産会社を見る 
								    
							   
							 
						   | 
						  						
					  
					 
				   
				 
							
						
												
			
					
- 提携サイト等より掲載されている物件情報につきましては、不動産会社詳細情報にリンクされていないものがあります。
 
- 物件に関するお問合せは、物件詳細ページの「情報提供会社」に表示されている不動産会社へ直接お願いいたします。
 
- 間取図は、現況を優先させていただきます。
 
- 映像は物件の一部を撮影したものです。物件の契約にあたっての最終判断はご自身の判断に基づいて行ってください。
 
- 仲介手数料について

 
アットホームは物件情報の適正化に努めております。
内容に誤りがある場合にはこちらへご連絡ください。