東京都新宿区中落合1丁目(中井駅)の賃貸:物件詳細
交通 所在地 |
駅徒歩 |
賃料 管理費等 |
敷金/保証金 礼金 |
間取り 面積 |
物件種目 築年月 |
|
西武新宿線/中井
東京都新宿区中落合1丁目
|
6分
|
13.1万円
8,000円
|
1ヶ月 / なし
1ヶ月
|
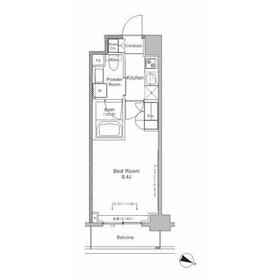
1K
25.37m²
|
賃貸マンション
2016年12月(築9年5ヶ月)
|
ペット相談、IT重説対応物件
|
|
間取図
|
外観
|
<
その他の画像
>
|
| 交通 | 西武新宿線 中井駅 徒歩6分 |
|---|
| その他の交通 | 西武新宿線 下落合駅 徒歩6分 東京メトロ東西線 落合駅 徒歩12分 |
| 所在地 |
東京都新宿区中落合1丁目
|
| 物件種目 |
賃貸マンション |
| 賃料 |
13.1万円 |
管理費等 |
8,000円 |
| 敷金 / 保証金 |
1ヶ月 / なし |
礼金 |
1ヶ月 |
| 敷引 |
- |
保証金償却 |
- |
| その他一時金 |
なし、鍵交換代等:36,300円~ |
保険等 |
要 |
| 維持費等 |
- |
| 間取り |
1K(洋8.4) |
専有面積 |
25.37m² |
| 築年月 |
2016年12月(築9年5ヶ月)
|
階建 / 階 |
7階建 / 2階 |
| 建物構造 |
RC |
総戸数 |
- |
| 主要採光面 |
北東 |
駐車場 |
無 |
| バイク置き場 |
空無 |
駐輪場 |
有 無料 |
| 建物名・部屋番号 |
プラウドフラット中落合 202 |
ペット |
相談 |
| リフォーム履歴 |
- |
| リノベーション履歴 |
- |
| 備考 |
賃貸保証等:加入要(エポスカード 【B】初回保証料:賃料総額40%(最低保証料15,000円)/月額800円【GTN】初回保証料:賃料総額50%/月額2,000円)
管理形態/管理員の勤務形態:-/-
IT重説対応物件
クレジットカード払い対応物件もあります!
■違約金有:1年未満解約で総賃料1ヶ月分 ■ペット要申請敷金1カ月積み増し小型犬、猫1匹まで ■借主実費負担:退去時ハウスクリーニング、エアコン洗浄費用、CATV,CS,BS、ネット設備加入費用、宅内工事、月額使用料 ■1G無料ネット有ファミリーネットジャパン ■家具家電レンタル利用可:月額6000円(他プラン有) ■バイク置場:空無有料 ■駐輪場:要申請ステッカー配布区画指定なし バイク置き場:有料
|
| エネルギー消費性能 |
- |
| 断熱性能 |
- |
| 目安光熱費 |
- |
| バス・トイレ |
バス・トイレ別、浴室乾燥機、洗面所独立、洗面所、温水洗浄便座、トイレ |
| キッチン |
システムキッチン、2口コンロ、ガスコンロ可 |
| セキュリティー |
モニター付オートロック、オートロック、モニター付インターホン、ダブルロックドア、防犯カメラ |
| 収納 |
収納スペース、クローゼット、シューズボックス |
| 設備・サービス |
室内洗濯機置場、洗濯機置場、フローリング、都市ガス、エアコン |
| TV・通信 |
インターネット対応、インターネット使用料無料、CS、BS端子 |
| その他 |
宅配BOX、バイク置き場、バルコニー、駐輪場、エレベーター |
| 契約期間 |
2年 |
現況 |
- |
| 条件等 |
- |
入居可能時期 |
2026年4月下旬予定 |
| 更新料 |
新賃料 1ヶ月 |
物件番号 |
1105910226 |
| 情報公開日 |
2026年4月2日 |
次回更新予定日 |
2026年4月17日 |
| ケータイ用バーコード |
- スマートフォンでこの物件を見る
- スマートフォンからもこの物件をご覧になれます。
|
※「-」と表示されている項目については、情報提供会社にご確認ください。
| 周辺施設 |
マルエツ プチ 下落合駅前店 |
| 距離 |
342m |
写真を見る |
| 周辺施設 |
セブン-イレブン 新宿下落合駅北店 |
| 距離 |
403m |
写真を見る |
| 周辺施設 |
ローソン 新宿上落合店 |
| 距離 |
506m |
写真を見る |
| 周辺施設 |
どらっぐぱぱす 下落合店 |
| 距離 |
433m |
写真を見る |
| 周辺施設 |
みずほ銀行 中井支店 |
| 距離 |
323m |
写真を見る |
| 周辺施設 |
戸塚警察署 下落合駅前交番 |
| 距離 |
387m |
写真を見る |
| 周辺施設 |
旬 やおや 新宿店 |
| 距離 |
1053m |
写真を見る |
| 周辺施設 |
まいばすけっと上落合店 |
| 距離 |
1126m |
写真を見る |
ここから簡単にお問い合わせをすることができます。
(SSLでの暗号化での送信を希望されるお客さまは
こちら
よりお問い合わせください)
お問い合わせを行う前に
「個人情報の取り扱いについて」を必ずお読みください。
「個人情報の取り扱いについて」に同意いただいた場合は「上記にご同意の上 確認画面へ進む」のボタンをクリックしてください。
個人情報の取り扱いについて
皆さまが送付された個人情報はアットホーム(株)のサーバを経由し、お問い合わせ先の不動産会社にメールまたはFAXにて転送されるためアットホーム(株)にも保管されます。アットホーム(株)で保管された個人情報の取り扱いについては、【こちら】をご覧ください。
また、本画面でご記入いただいた個人情報は、お問い合わせ先の不動産会社でも保管します。 お問い合わせ先の不動産会社が保管する個人情報の取り扱いについては、不動産会社に直接お問い合わせください。
東京都知事免許(1)第108283号 |
|---|
- 交通:
- JR山手線/池袋駅 徒歩2分
- 東京都豊島区西池袋1丁目19-6 松長ビル2F
- TEL:
- 0800-170-0754
- FAX:
- 03-5979-8457
- 所属団体:
- (公財)日本賃貸住宅管理協会会員(公社)首都圏不動産公正取引協議会加盟
取引態様:仲介  - 00016971
|
- スマートフォンで
この不動産会社を見る

|
- 提携サイト等より掲載されている物件情報につきましては、不動産会社詳細情報にリンクされていないものがあります。
- 物件に関するお問合せは、物件詳細ページの「情報提供会社」に表示されている不動産会社へ直接お願いいたします。
- 間取図は、現況を優先させていただきます。
- 映像は物件の一部を撮影したものです。物件の契約にあたっての最終判断はご自身の判断に基づいて行ってください。
- 仲介手数料について

アットホームは物件情報の適正化に努めております。
内容に誤りがある場合にはこちらへご連絡ください。