大阪府大阪市港区南市岡1丁目(九条駅)の賃貸:物件詳細
交通 所在地 |
駅徒歩 |
賃料 管理費等 |
敷金/保証金 礼金 |
間取り 面積 |
物件種目 築年月 |
|
地下鉄中央線/九条
大阪府大阪市港区南市岡1丁目
|
8分
|
6.1万円
10,000円
|
なし / なし
1ヶ月
|
1K
21.68m²
|
賃貸マンション
2017年11月(築8年5ヶ月)
|
ペット相談、デザイナーズ、分譲タイプ、常時ゴミ出し可能、24時間換気システム、外観タイル張り、IT重説対応物件
|
|
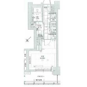
間取図
|
外観
|
<
その他の画像
>
|
| 交通 | 地下鉄中央線 九条駅 徒歩8分 |
|---|
| その他の交通 | JR大阪環状線 大正駅 徒歩10分 地下鉄長堀鶴見緑地線 ドーム前千代崎駅 徒歩13分 |
| 所在地 |
大阪府大阪市港区南市岡1丁目
|
| 物件種目 |
賃貸マンション |
| 賃料 |
6.1万円 |
管理費等 |
10,000円 |
| 敷金 / 保証金 |
なし / なし |
礼金 |
1ヶ月 |
| 敷引 |
- |
保証金償却 |
- |
| その他一時金 |
なし、鍵交換代等:35,000円~ |
保険等 |
要 1年 20,000円 |
| 維持費等 |
- |
クレジットカード決済 |
初期費用可 |
| 間取り |
1K(K2.5、洋6) |
専有面積 |
21.68m² |
| 築年月 |
2017年11月(築8年5ヶ月)
|
階建 / 階 |
8階建 / 4階 |
| 建物構造 |
RC |
総戸数 |
- |
| 主要採光面 |
北西 |
駐車場 |
近有 22,000円/月 |
| バイク置き場 |
- |
駐輪場 |
有 330円/月 |
| 建物名・部屋番号 |
エスライズ大阪ドームレジデンス 407 |
ペット |
相談 |
| リフォーム履歴 |
- |
| リノベーション履歴 |
- |
| 備考 |
賃貸保証等:加入要(全保連 初回50% 更新時10,000円)
管理形態/管理員の勤務形態:-/-
IT重説対応物件
京セラドーム直ぐ近くの分譲マンションです♪ペット飼育可能★
大阪市内、特に西区、福島区、港区、此花区を中心にオススメ物件を多数取り揃えております。経験豊富なベテランスタッフがお客様にピッタリな物件をご紹介させて頂きます♪
|
| エネルギー消費性能 |
- |
| 断熱性能 |
- |
| 目安光熱費 |
- |
| バス・トイレ |
バス・トイレ別、浴室乾燥機、オートバス、洗面所独立、洗面所、温水洗浄便座、トイレ |
| キッチン |
システムキッチン、2口コンロ、ガスコンロ可 |
| セキュリティー |
モニター付オートロック、オートロック、モニター付インターホン、ディンプルキー、防犯カメラ |
| 収納 |
収納スペース、クローゼット、シューズボックス |
| 設備・サービス |
室内洗濯機置場、洗濯機置場、全居室フローリング、フローリング、都市ガス、エアコン |
| TV・通信 |
インターネット対応、インターネット使用料無料、光ファイバー、ケーブルTV、CS、BS端子 |
| その他 |
宅配BOX、バルコニー、駐輪場、エレベーター |
| 契約期間 |
2年 |
現況 |
空家 |
| 条件等 |
- |
入居可能時期 |
即時 |
| 更新料 |
- |
物件番号 |
1105912425 |
| 情報公開日 |
2026年3月19日 |
次回更新予定日 |
2026年4月2日 |
| ケータイ用バーコード |
- スマートフォンでこの物件を見る
- スマートフォンからもこの物件をご覧になれます。
|
※「-」と表示されている項目については、情報提供会社にご確認ください。
| 周辺施設 |
グルメシティ 九条店 |
| 距離 |
507m |
写真を見る |
| 周辺施設 |
ミニストップ K-POWERS市岡元町店 |
| 距離 |
189m |
写真を見る |
| 周辺施設 |
ローソン 市岡元町一丁目店 |
| 距離 |
244m |
写真を見る |
| 周辺施設 |
大阪境川郵便局 |
| 距離 |
365m |
写真を見る |
| 周辺施設 |
スギドラッグ 波除店 |
| 距離 |
806m |
写真を見る |
| 周辺施設 |
イオン大阪ドームシティ店 |
| 距離 |
912m |
写真を見る |
| 周辺施設 |
ローソン 港区南市岡一丁目店 |
| 距離 |
4m |
写真を見る |
| 周辺施設 |
セブンイレブン 大阪境川1丁目店 |
| 距離 |
164m |
写真を見る |
ここから簡単にお問い合わせをすることができます。
(SSLでの暗号化での送信を希望されるお客さまは
こちら
よりお問い合わせください)
お問い合わせを行う前に
「個人情報の取り扱いについて」を必ずお読みください。
「個人情報の取り扱いについて」に同意いただいた場合は「上記にご同意の上 確認画面へ進む」のボタンをクリックしてください。
個人情報の取り扱いについて
皆さまが送付された個人情報はアットホーム(株)のサーバを経由し、お問い合わせ先の不動産会社にメールまたはFAXにて転送されるためアットホーム(株)にも保管されます。アットホーム(株)で保管された個人情報の取り扱いについては、【こちら】をご覧ください。
また、本画面でご記入いただいた個人情報は、お問い合わせ先の不動産会社でも保管します。 お問い合わせ先の不動産会社が保管する個人情報の取り扱いについては、不動産会社に直接お問い合わせください。
大阪府知事免許(3)第57949号 |
|---|
- 交通:
- 地下鉄千日前線/阿波座駅 徒歩1分
- 大阪府大阪市西区靱本町3丁目8-14 アワザフジビル2F
- TEL:
- 06-6449-3232
- FAX:
- 06-6449-3231
- 所属団体:
- (公社)全日本不動産協会会員(公社)近畿地区不動産公正取引協議会加盟
取引態様:仲介  - 50109178
|
- スマートフォンで
この不動産会社を見る

|
- 提携サイト等より掲載されている物件情報につきましては、不動産会社詳細情報にリンクされていないものがあります。
- 物件に関するお問合せは、物件詳細ページの「情報提供会社」に表示されている不動産会社へ直接お願いいたします。
- 間取図は、現況を優先させていただきます。
- 映像は物件の一部を撮影したものです。物件の契約にあたっての最終判断はご自身の判断に基づいて行ってください。
- 仲介手数料について

アットホームは物件情報の適正化に努めております。
内容に誤りがある場合にはこちらへご連絡ください。