福岡県福岡市中央区荒戸1丁目(大濠公園駅)の賃貸:物件詳細
交通 所在地 |
駅徒歩 |
賃料 管理費等 |
敷金/保証金 礼金 |
間取り 面積 |
物件種目 築年月 |
|
地下鉄空港線/大濠公園
福岡県福岡市中央区荒戸1丁目
|
2分
|
25万円
なし
|
なし / なし
2ヶ月
|
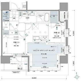
2LDK
61.77m²
|
賃貸マンション
2024年2月(築2年2ヶ月)
|
分譲タイプ、南向き、二人入居可、24時間セキュリティー、24時間換気システム、外観タイル張り、IT重説対応物件
|
|
間取図
|
外観
|
<
その他の画像
>
|
| 交通 | 地下鉄空港線 大濠公園駅 徒歩2分 |
|---|
| その他の交通 | 地下鉄空港線 唐人町駅 徒歩10分 地下鉄空港線 赤坂駅 徒歩16分 |
| 所在地 |
福岡県福岡市中央区荒戸1丁目
|
| 物件種目 |
賃貸マンション |
| 賃料 |
25万円 |
管理費等 |
なし |
| 敷金 / 保証金 |
なし / なし |
礼金 |
2ヶ月 |
| 敷引 |
- |
保証金償却 |
- |
| その他一時金 |
鍵交換代:143,000円 |
保険等 |
要 1年 14,000円 |
| 維持費等 |
入居サポート:1,210円/月 |
クレジットカード決済 |
初期費用可 |
| 間取り |
2LDK(洋室6.1畳/洋室4.4畳/LDK16.4畳) |
専有面積 |
61.77m² |
| 築年月 |
2024年2月(築2年2ヶ月)
|
階建 / 階 |
15階建 / 7階 |
| 建物構造 |
RC |
総戸数 |
- |
| 主要採光面 |
南 |
駐車場 |
有 30,000円/月 |
| バイク置き場 |
- |
駐輪場 |
有 |
| 建物名・部屋番号 |
|
ペット |
-
|
| リフォーム履歴 |
- |
| リノベーション履歴 |
- |
| 備考 |
賃貸保証等:加入要(SEM保証(SEM保証【オリコによる審査・口座振替】・初回保証料:賃料合計の50%(最低保証料なし)・月額支払手)※契約者や条件によっては、内容が変更になる場合があります。)
管理形態/管理員の勤務形態:-/-
IT重説対応物件
|
| エネルギー消費性能 |
- |
| 断熱性能 |
- |
| 目安光熱費 |
- |
| バス・トイレ |
バス・トイレ別、浴室乾燥機、追焚機能、シャワー付洗面化粧台、洗面所独立、洗面台、シャワー、温水洗浄便座、トイレ |
| キッチン |
システムキッチン、食器洗浄乾燥機、浄水器、ディスポーザー、3口以上コンロ、ガスコンロ付、グリル |
| セキュリティー |
モニター付オートロック、オートロック、モニター付インターホン、防犯カメラ |
| 収納 |
ウォークインクローゼット、収納スペース、クローゼット、シューズボックス |
| 設備・サービス |
床暖房、室内洗濯機置場、洗濯機置場、給湯、全居室フローリング、フローリング、都市ガス、エアコン、暖房 |
| TV・通信 |
- |
| その他 |
宅配BOX、バルコニー、駐輪場、エレベーター |
| 契約期間 |
4年 |
現況 |
空家 |
| 条件等 |
定期借家 |
入居可能時期 |
即時 |
| 更新料 |
- |
物件番号 |
1106203017 |
| 情報公開日 |
2025年12月22日 |
次回更新予定日 |
2026年4月8日 |
| ケータイ用バーコード |
- スマートフォンでこの物件を見る
- スマートフォンからもこの物件をご覧になれます。
|
※「-」と表示されている項目については、情報提供会社にご確認ください。
| 周辺施設 |
マックスバリュエクスプレス港町店 |
| 距離 |
388m |
写真を見る |
| 周辺施設 |
Mammy’s(マミーズ) 唐人店 |
| 距離 |
744m |
写真を見る |
| 周辺施設 |
デイリーヤマザキ 大濠公園前店 |
| 距離 |
170m |
写真を見る |
| 周辺施設 |
舞鶴小・中学校 |
| 距離 |
1399m |
写真を見る |
| 周辺施設 |
福岡大濠郵便局 |
| 距離 |
141m |
写真を見る |
| 周辺施設 |
福岡記念病院 |
| 距離 |
1743m |
写真を見る |
ここから簡単にお問い合わせをすることができます。
(SSLでの暗号化での送信を希望されるお客さまは
こちら
よりお問い合わせください)
お問い合わせを行う前に
「個人情報の取り扱いについて」を必ずお読みください。
「個人情報の取り扱いについて」に同意いただいた場合は「上記にご同意の上 確認画面へ進む」のボタンをクリックしてください。
個人情報の取り扱いについて
皆さまが送付された個人情報はアットホーム(株)のサーバを経由し、お問い合わせ先の不動産会社にメールまたはFAXにて転送されるためアットホーム(株)にも保管されます。アットホーム(株)で保管された個人情報の取り扱いについては、【こちら】をご覧ください。
また、本画面でご記入いただいた個人情報は、お問い合わせ先の不動産会社でも保管します。 お問い合わせ先の不動産会社が保管する個人情報の取り扱いについては、不動産会社に直接お問い合わせください。
国土交通大臣免許(3)第8479号 |
|---|
- 交通:
- JR鹿児島本線/博多駅 徒歩3分
- 福岡県福岡市博多区博多駅東1丁目9-1
- TEL:
- 0120-170-570
- FAX:
- 092-432-0712
- 所属団体:
- (公社)全日本不動産協会会員(一社)九州不動産公正取引協議会加盟
取引態様:仲介  - 80004843
|
- スマートフォンで
この不動産会社を見る

|
- 提携サイト等より掲載されている物件情報につきましては、不動産会社詳細情報にリンクされていないものがあります。
- 物件に関するお問合せは、物件詳細ページの「情報提供会社」に表示されている不動産会社へ直接お願いいたします。
- 間取図は、現況を優先させていただきます。
- 映像は物件の一部を撮影したものです。物件の契約にあたっての最終判断はご自身の判断に基づいて行ってください。
- 仲介手数料について

アットホームは物件情報の適正化に努めております。
内容に誤りがある場合にはこちらへご連絡ください。