愛知県名古屋市港区寛政町7丁目(荒子川公園駅)の賃貸:物件詳細
交通 所在地 |
駅徒歩 |
賃料 管理費等 |
敷金/保証金 礼金 |
間取り 面積 |
物件種目 築年月 |
|
あおなみ線/荒子川公園
愛知県名古屋市港区寛政町7丁目
|
5分
|
6.9万円
3,500円
|
なし / なし
なし
|
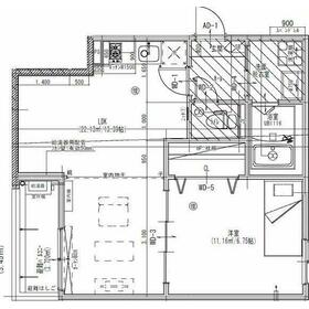
1LDK
44.82m²
|
賃貸アパート
2024年8月(築1年8ヶ月)
|
最上階、二人入居可、IT重説対応物件、保証人不要
|
|
間取図
|
外観
外観は落ち着いています
|
その他の画像
|
| 交通 | あおなみ線 荒子川公園駅 徒歩5分 |
|---|
| その他の交通 | あおなみ線 港北駅 徒歩15分 名古屋市名港線 港区役所駅 【バス】 19分 荒子川公園北 停歩3分 |
| 所在地 |
愛知県名古屋市港区寛政町7丁目
|
| 物件種目 |
賃貸アパート |
| 賃料 |
6.9万円 |
管理費等 |
3,500円 |
| 敷金 / 保証金 |
なし / なし |
礼金 |
なし |
| 敷引 |
- |
保証金償却 |
- |
| その他一時金 |
24時間サポート 契約時:19,800円、鍵交換代等:29,700円~ |
保険等 |
要 2年 20,000円 |
| 維持費等 |
町内会費:350円/月 |
クレジットカード決済 |
初期費用可 |
| 間取り |
1LDK(LDK13.3、洋6.7) |
専有面積 |
44.82m² |
| 築年月 |
2024年8月(築1年8ヶ月)
|
階建 / 階 |
3階建 / 3階 |
| 建物構造 |
木造 |
総戸数 |
- |
| 主要採光面 |
|
駐車場 |
- |
| バイク置き場 |
- |
駐輪場 |
- |
| 建物名・部屋番号 |
Jack kanseiⅡ 302 |
ペット |
-
|
| アピールポイント |
4月中旬以降入居をご検討中の方に。TVインターホン・オートロックなど充実しているので安心して生活できます。共用部には宅配ボックスを設置しているため、好きなタイミングで荷物を受け取ることができます。室内設備は洗面化粧台・浴室乾燥機などが揃っているので、快適に過ごしやすいお部屋になります。収納はシューズボックス・クロゼットなど豊富なので、衣類や履き物の整理がしやすく便利です。こちらの物件では初期費用をカードでお支払いいただけます。動画配信サービスで映画やドラマ・アニメを視聴するのが趣味な方、インターネットの使用料を気にする必要がないので思う存分楽しんでいただけます。バルコニー付きの物件で、用途に合わせて使用できおすすめです。インターネット付きの物件です。二口コンロが付いている物件です。 |
| リフォーム履歴 |
- |
| リノベーション履歴 |
- |
| 備考 |
賃貸保証等:加入要(いえらぶ安心保証 初回保証料:総賃料の50% 年間:15000円 月額:800円実費)
管理形態/管理員の勤務形態:-/巡回
IT重説対応物件、管理人巡回
こちらの物件は、エイブルネットワーク港店にてご紹介可能です
非掲載物件も含め、幅広くご提案できます
現地待ち合わせもOK
オンライン内見・重要事項説明対応しています
|
| エネルギー消費性能 |
- |
| 断熱性能 |
- |
| 目安光熱費 |
- |
| バス・トイレ |
バス・トイレ別、浴室乾燥機、洗面所独立、洗面所、洗面台、トイレ |
| キッチン |
システムキッチン、2口コンロ、ガスコンロ可 |
| セキュリティー |
モニター付オートロック、オートロック、モニター付インターホン |
| 収納 |
収納スペース、クローゼット、シューズボックス |
| 設備・サービス |
室内洗濯機置場、洗濯機置場、プロパンガス給湯、給湯、フローリング、プロパンガス、エアコン、照明器具 |
| TV・通信 |
インターネット対応、インターネット使用料無料 |
| その他 |
宅配BOX、バルコニー |
| 契約期間 |
2年 |
現況 |
居住中 |
| 条件等 |
- |
入居可能時期 |
2026年4月中旬予定 |
| 更新料 |
- |
物件番号 |
1106226725 |
| 情報公開日 |
2026年3月19日 |
次回更新予定日 |
2026年4月2日 |
| ケータイ用バーコード |
- スマートフォンでこの物件を見る
- スマートフォンからもこの物件をご覧になれます。
|
※「-」と表示されている項目については、情報提供会社にご確認ください。
| 周辺施設 |
セブンイレブン名古屋寛政町6丁目店 |
| 距離 |
142m |
写真を見る |
| 周辺施設 |
ウエルシア名古屋寛政町店 |
| 距離 |
230m |
写真を見る |
| 周辺施設 |
ローソンストア100港区入場店 |
| 距離 |
489m |
写真を見る |
| 周辺施設 |
いずみこども園 |
| 距離 |
342m |
写真を見る |
| 周辺施設 |
セブンイレブン名古屋善進本町東店 |
| 距離 |
714m |
写真を見る |
| 周辺施設 |
ぜんしん保育園 |
| 距離 |
691m |
写真を見る |
| 周辺施設 |
スギ薬局油屋店 |
| 距離 |
624m |
写真を見る |
ここから簡単にお問い合わせをすることができます。
(SSLでの暗号化での送信を希望されるお客さまは
こちら
よりお問い合わせください)
お問い合わせを行う前に
「個人情報の取り扱いについて」を必ずお読みください。
「個人情報の取り扱いについて」に同意いただいた場合は「上記にご同意の上 確認画面へ進む」のボタンをクリックしてください。
個人情報の取り扱いについて
皆さまが送付された個人情報はアットホーム(株)のサーバを経由し、お問い合わせ先の不動産会社にメールまたはFAXにて転送されるためアットホーム(株)にも保管されます。アットホーム(株)で保管された個人情報の取り扱いについては、【こちら】をご覧ください。
また、本画面でご記入いただいた個人情報は、お問い合わせ先の不動産会社でも保管します。 お問い合わせ先の不動産会社が保管する個人情報の取り扱いについては、不動産会社に直接お問い合わせください。
愛知県知事免許(1)第26086号 |
|---|
- 交通:
- 名古屋市名港線/東海通駅 徒歩1分
- 愛知県名古屋市港区辰巳町35-16 セジューネ625 2階
- TEL:
- 052-655-6877
- FAX:
- 052-655-6878
- 所属団体:
- (公社)愛知県宅地建物取引業協会会員東海不動産公正取引協議会加盟
取引態様:仲介  - 40412488
|
- スマートフォンで
この不動産会社を見る

|
- 提携サイト等より掲載されている物件情報につきましては、不動産会社詳細情報にリンクされていないものがあります。
- 物件に関するお問合せは、物件詳細ページの「情報提供会社」に表示されている不動産会社へ直接お願いいたします。
- 間取図は、現況を優先させていただきます。
- 映像は物件の一部を撮影したものです。物件の契約にあたっての最終判断はご自身の判断に基づいて行ってください。
- 仲介手数料について

アットホームは物件情報の適正化に努めております。
内容に誤りがある場合にはこちらへご連絡ください。