大阪府大阪市港区市岡元町1丁目(弁天町駅)の賃貸:物件詳細
交通 所在地 |
駅徒歩 |
賃料 管理費等 |
敷金/保証金 礼金 |
間取り 面積 |
物件種目 築年月 |
地下鉄中央線/弁天町
大阪府大阪市港区市岡元町1丁目
|
10分
|
13.9万円
13,060円
|
1ヶ月 / なし
1ヶ月
|
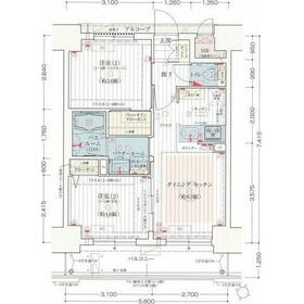
2DK
43.00m²
|
賃貸マンション
2014年6月(築11年5ヶ月)
|
ペット相談、デザイナーズ、常時ゴミ出し可能、二人入居可、24時間セキュリティー、2面採光、24時間換気システム、閑静な住宅街、IT重説対応物件、保証人不要
|
間取図
|
外観
|
<
その他の画像
>
|
交通 | 地下鉄中央線 弁天町駅 徒歩10分 |
---|
その他の交通 | 阪神なんば線 九条駅 徒歩10分 |
所在地 |
大阪府大阪市港区市岡元町1丁目
|
物件種目 |
賃貸マンション |
賃料 |
13.9万円 |
管理費等 |
13,060円 |
敷金 / 保証金 |
1ヶ月 / なし |
礼金 |
1ヶ月 |
敷引 |
- |
保証金償却 |
- |
その他一時金 |
室内清掃費用 契約時:66,220円、エステム安心クラブ入会金 契約時:5,500円、契約事務手数料 契約時:11,000円、ペット登録料(ペット飼育時) 契約時:5,000円、鍵交換代等:33,000円~ |
保険等 |
要 2年 22,500円 |
維持費等 |
エステム安心クラブ:990円/月 |
クレジットカード決済 |
初期費用可 |
間取り |
2DK(DK9.2、洋5、洋4.6) |
専有面積 |
43.00m² |
築年月 |
2014年6月(築11年5ヶ月)
|
階建 / 階 |
9階建 / 5階 |
建物構造 |
RC |
総戸数 |
- |
主要採光面 |
西 |
駐車場 |
- |
バイク置き場 |
- |
駐輪場 |
有 |
建物名・部屋番号 |
エステムコート難波WESTSIDEIIベイフレックス |
ペット |
小型犬可 |
アピールポイント |
共用部にはゴミ出し24時間OK・宅配ボックスなどが揃っており、とても充実しています。室内設備は洗面所独立・浴室乾燥機などが揃っているので、快適に過ごしやすいお部屋になります。収納はウォークインクロゼット・シューズボックスなど豊富なので、衣類や履き物の整理がしやすく便利です。セキュリティ面は、TVインターホン・オートロックなどを備え付けているので安心して暮らせます。CATV対応なので、契約のみで様々なチャンネルが閲覧できます。防犯カメラがついているため、防犯性の高い物件です。高速インターネットでお家でパソコンがラクラク通信できます。駐輪場付きの物件です。ふたりでの生活は安心感があって快適な生活ができます。こちらの物件ではご相談次第でペットを飼うことができます。魅力的な駅近の物件で、駅まで徒歩10分です(*´ω`*) |
リフォーム履歴 |
- |
リノベーション履歴 |
- |
備考 |
賃貸保証等:加入要(オリコフォレントインシュア 初回50%オリコフォレントインシュア 初回保証料:総賃料の50% 月額更新料:総賃料の1.5% 初回保証料は決済金預かりです)
管理形態/管理員の勤務形態:-/-
IT重説対応物件
収納はシューズボックス・ウォークインクロゼットなど豊富なので、衣類や履き物の整理がしやすく便利です。セキュリティ面は、オートロック・TVインターホンなどを備え付けているので安心して暮らせます。室内設備は洗面化粧台・浴室乾燥機など大変充実。共用部にはゴミ出し24時間OK・宅配ボックスなどが揃っており、とても充実しています。入居時からインターネット環境が整っているため、ネット回線の工事がいらず面識がない人を家に招きたくないと考えている方にもおすすめです。通風良好なマンションです。高速ネット回線が繋がっているので通信ラクラクです。駅から徒歩10分の物件なら、駅前のお買い物も便利です。転居先に住み心地も良いこちらの賃貸物件。充実した新生活を過ごしましょう。こちらは初期費用をカードでお支払いいただける物件です。ダイニングキッチンがついているので、料理好きの方にオススメです(^^)
|
エネルギー消費性能 |
- |
断熱性能 |
- |
目安光熱費 |
- |
バス・トイレ |
バス・トイレ別、浴室乾燥機、追焚機能、高温差湯式、シャワー付洗面化粧台、洗面所独立、洗面所、洗面台、シャワー、温水洗浄便座、トイレ |
キッチン |
カウンターキッチン、システムキッチン、3口以上コンロ、ガスコンロ可、グリル |
セキュリティー |
モニター付オートロック、オートロック、モニター付インターホン、ディンプルキー、ダブルロックドア、防犯カメラ |
収納 |
ウォークインクローゼット、収納スペース、クローゼット、シューズボックス |
設備・サービス |
室内洗濯機置場、洗濯機置場、都市ガス給湯、給湯、フローリング、都市ガス、エアコン、冷房、人感センサー付照明、照明器具 |
TV・通信 |
インターネット対応、インターネット使用料無料、ケーブルTV、CS、BS端子 |
その他 |
宅配BOX、バルコニー、駐輪場、エレベーター |
契約期間 |
1年 |
現況 |
居住中 |
条件等 |
- |
入居可能時期 |
相談 |
更新料 |
- |
物件番号 |
1106230415 |
情報公開日 |
2025年10月10日 |
次回更新予定日 |
2025年10月31日 |
ケータイ用バーコード |
- スマートフォンでこの物件を見る
- スマートフォンからもこの物件をご覧になれます。
|
※「-」と表示されている項目については、情報提供会社にご確認ください。
周辺施設 |
ミニストップ九条 |
距離 |
208m |
写真を見る |
周辺施設 |
港市岡郵便局 |
距離 |
343m |
写真を見る |
周辺施設 |
グルメシティ九条 |
距離 |
484m |
写真を見る |
周辺施設 |
多根総合病院 |
距離 |
546m |
写真を見る |
周辺施設 |
ジャパン港波除店 |
距離 |
466m |
写真を見る |
周辺施設 |
ファミリーマート波除中央店 |
距離 |
588m |
写真を見る |
周辺施設 |
京セラドーム大阪 |
距離 |
774m |
写真を見る |
ここから簡単にお問い合わせをすることができます。
(SSLでの暗号化での送信を希望されるお客さまは
こちら
よりお問い合わせください)
お問い合わせを行う前に
「個人情報の取り扱いについて」を必ずお読みください。
「個人情報の取り扱いについて」に同意いただいた場合は「上記にご同意の上 確認画面へ進む」のボタンをクリックしてください。
個人情報の取り扱いについて
皆さまが送付された個人情報はアットホーム(株)のサーバを経由し、お問い合わせ先の不動産会社にメールまたはFAXにて転送されるためアットホーム(株)にも保管されます。アットホーム(株)で保管された個人情報の取り扱いについては、【こちら】をご覧ください。
また、本画面でご記入いただいた個人情報は、お問い合わせ先の不動産会社でも保管します。 お問い合わせ先の不動産会社が保管する個人情報の取り扱いについては、不動産会社に直接お問い合わせください。
大阪府知事免許(6)第47283号 |
---|
- 交通:
- 地下鉄御堂筋線/なんば駅 徒歩4分
- 大阪府大阪市浪速区難波中1丁目1-16
- TEL:
- 06-6633-2100
- FAX:
- 06-6633-2600
- 所属団体:
- (一社)大阪府宅地建物取引業協会会員(公社)近畿地区不動産公正取引協議会加盟
取引態様:仲介  - 50014473
|
- スマートフォンで
この不動産会社を見る

|
- 提携サイト等より掲載されている物件情報につきましては、不動産会社詳細情報にリンクされていないものがあります。
- 物件に関するお問合せは、物件詳細ページの「情報提供会社」に表示されている不動産会社へ直接お願いいたします。
- 間取図は、現況を優先させていただきます。
- 映像は物件の一部を撮影したものです。物件の契約にあたっての最終判断はご自身の判断に基づいて行ってください。
- 仲介手数料について

アットホームは物件情報の適正化に努めております。
内容に誤りがある場合にはこちらへご連絡ください。