東京都中央区勝どき4丁目(勝どき駅)の賃貸:物件詳細
交通 所在地 |
駅徒歩 |
賃料 管理費等 |
敷金/保証金 礼金 |
間取り 面積 |
物件種目 築年月 |
|
都営大江戸線/勝どき
東京都中央区勝どき4丁目
|
2分
|
50.4万円
なし
|
1ヶ月 / なし
2ヶ月
|
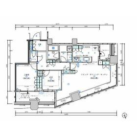
2LDK
76.32m²
|
賃貸マンション
2023年8月(築2年8ヶ月)
|
ペット相談、楽器相談、分譲タイプ、フロントサービス、常時ゴミ出し可能、角部屋、高齢者相談、2面採光、24時間換気システム、保証人不要
|
|
間取図
|
外観
|
<
その他の画像
>
|
| 交通 | 都営大江戸線 勝どき駅 徒歩2分 |
|---|
| その他の交通 | 東京メトロ有楽町線 月島駅 徒歩16分 東京メトロ日比谷線 築地駅 徒歩21分 |
| 所在地 |
東京都中央区勝どき4丁目
|
| 物件種目 |
賃貸マンション |
| 賃料 |
50.4万円 |
管理費等 |
なし |
| 敷金 / 保証金 |
1ヶ月 / なし |
礼金 |
2ヶ月 |
| 敷引 |
- |
保証金償却 |
- |
| その他一時金 |
なし、鍵交換代等:33,000円~ |
保険等 |
要 |
| 維持費等 |
口座振替事務手数料:220円/月 |
| 間取り |
2LDK(LDK22.3、洋6.2、洋4) |
専有面積 |
76.32m² |
| 築年月 |
2023年8月(築2年8ヶ月)
|
階建 / 階 |
地上58階地下3階建 / 12階 |
| 建物構造 |
RC |
総戸数 |
- |
| 主要採光面 |
北 |
駐車場 |
空無 |
| バイク置き場 |
- |
駐輪場 |
- |
| 建物名・部屋番号 |
パークタワー勝どきサウス |
ペット |
小型犬可・ 猫可 |
| アピールポイント |
収納はクロゼット・シューズボックス・全居室収納などが備え付けられているので、衣類や日用品の収納に重宝します。共用部にはゴミ出し24時間OK・宅配ボックスなどが備わっておりとても充実しています。建物のエントランスには安全性に優れているオートロック機能を備えております。室内設備は洗面化粧台・浴室乾燥機・食器洗乾燥機などが揃っており、とても充実しています。移り替えができる予定日時は2026年5月ですので一度ご来店ください。敷地内ごみ置き場は、ごみを捨てる手間を減らしてくれます。2LDKは開放感のある間取りでファミリーにもおすすめです。管理人が日勤管理なので普段の清掃が行き届いています。小さなお子様もご入居可能な物件です。扱いやすい材質が使われ抗菌性に優れているシステムキッチン付き。お使いいただける駅は2駅あり、行き先に応じて使い分けができます。 |
| リフォーム履歴 |
- |
| リノベーション履歴 |
- |
| 備考 |
賃貸保証等:加入要(月額賃料等の50%、2年目以降9,600円/年月額賃料等の50%、2年目以降9,600円/年)
管理形態/管理員の勤務形態:-/日勤
管理人日勤
共用部にはゴミ出し24時間OK・宅配ボックスなどが揃っており、とても充実しています。室内設備は洗面所独立・浴室乾燥機・食器洗乾燥機などが揃っており、とても充実しています。エントランスのオートロックと玄関の鍵で二重にロックできるので防犯対策につながります。収納はクロゼット・シューズボックス・全居室収納など豊富なので、広々と空間を利用することも可能です。コンロや作業台が一体化しているので段差がなく、掃除がとても楽になるシステムキッチンがあります。忙しいあなたの時間を有効的に使えるのが敷地内ごみ置き場です。音楽が好きな方にオススメの物件です。楽器相談承ります。令和8年5月までの引越し予定の方はニーズのあるこの物件が良いです。水道代節約につながる追い焚き機能付きです。3口コンロが付いているので、料理をたくさん作りたい時でも同時に進めることができて時短になります。こちらのお部屋、12階に位置しております。
|
| エネルギー消費性能 |
- |
| 断熱性能 |
- |
| 目安光熱費 |
- |
| バス・トイレ |
バス・トイレ別、浴室乾燥機、追焚機能、洗面所独立、洗面所、シャワー、温水洗浄便座、トイレ |
| キッチン |
カウンターキッチン、システムキッチン、食器洗浄乾燥機、3口以上コンロ、ガスコンロ可 |
| セキュリティー |
オートロック、防犯カメラ |
| 収納 |
全居室収納、収納スペース、クローゼット、シューズボックス |
| 設備・サービス |
エアコン2台以上、床暖房、室内洗濯機置場、洗濯機置場、都市ガス給湯、給湯、全居室フローリング、フローリング、都市ガス、エアコン、暖房、冷房 |
| TV・通信 |
インターネット対応 |
| その他 |
宅配BOX、エレベーター2基以上、共用ゲストルーム、二面バルコニー、バルコニー、エレベーター |
| 契約期間 |
2年 |
現況 |
居住中 |
| 条件等 |
- |
入居可能時期 |
2026年5月下旬予定 |
| 仲介手数料 |
1.1ヶ月 |
|
|
| 更新料 |
新賃料 1ヶ月 |
物件番号 |
1106578325 |
| 情報公開日 |
2026年3月20日 |
次回更新予定日 |
2026年4月3日 |
| ケータイ用バーコード |
- スマートフォンでこの物件を見る
- スマートフォンからもこの物件をご覧になれます。
|
※「-」と表示されている項目については、情報提供会社にご確認ください。
| 周辺施設 |
マルエツ晴海三丁目店 |
| 距離 |
886m |
写真を見る |
| 周辺施設 |
ローソン 勝どき四丁目店 |
| 距離 |
182m |
写真を見る |
| 周辺施設 |
聖カタリナ病院 |
| 距離 |
784m |
写真を見る |
| 周辺施設 |
WASH&FOLDベイシティ晴海店 |
| 距離 |
755m |
写真を見る |
| 周辺施設 |
東日本銀行月島支店 |
| 距離 |
395m |
写真を見る |
| 周辺施設 |
中央勝どき郵便局 |
| 距離 |
347m |
写真を見る |
ここから簡単にお問い合わせをすることができます。
(SSLでの暗号化での送信を希望されるお客さまは
こちら
よりお問い合わせください)
お問い合わせを行う前に
「個人情報の取り扱いについて」を必ずお読みください。
「個人情報の取り扱いについて」に同意いただいた場合は「上記にご同意の上 確認画面へ進む」のボタンをクリックしてください。
個人情報の取り扱いについて
皆さまが送付された個人情報はアットホーム(株)のサーバを経由し、お問い合わせ先の不動産会社にメールまたはFAXにて転送されるためアットホーム(株)にも保管されます。アットホーム(株)で保管された個人情報の取り扱いについては、【こちら】をご覧ください。
また、本画面でご記入いただいた個人情報は、お問い合わせ先の不動産会社でも保管します。 お問い合わせ先の不動産会社が保管する個人情報の取り扱いについては、不動産会社に直接お問い合わせください。
国土交通大臣免許(11)第3229号 |
|---|
- 交通:
- 都営大江戸線/勝どき駅 徒歩1分
- 東京都中央区勝どき2丁目10-16
- TEL:
- 03-5547-8811
- FAX:
- 03-5547-8813
- 所属団体:
- (一社)全国住宅産業協会会員(公社)全日本不動産協会会員(公社)首都圏不動産公正取引協議会加盟
取引態様:仲介  - 00784185
|
- スマートフォンで
この不動産会社を見る

|
- 提携サイト等より掲載されている物件情報につきましては、不動産会社詳細情報にリンクされていないものがあります。
- 物件に関するお問合せは、物件詳細ページの「情報提供会社」に表示されている不動産会社へ直接お願いいたします。
- 間取図は、現況を優先させていただきます。
- 映像は物件の一部を撮影したものです。物件の契約にあたっての最終判断はご自身の判断に基づいて行ってください。
- 仲介手数料について

アットホームは物件情報の適正化に努めております。
内容に誤りがある場合にはこちらへご連絡ください。