神奈川県相模原市緑区橋本4丁目(橋本駅)の賃貸:物件詳細
交通 所在地 |
駅徒歩 |
賃料 管理費等 |
敷金/保証金 礼金 |
間取り 面積 |
物件種目 築年月 |
|
JR横浜線/橋本
神奈川県相模原市緑区橋本4丁目
|
12分
|
6.5万円
4,000円
|
なし / なし
1ヶ月
|
1K
26.08m²
|
賃貸アパート
2011年6月(築14年7ヶ月)
|
最上階、南向き、24時間換気システム、閑静な住宅街、前面棟無、IT重説対応物件、保証人不要
|
|
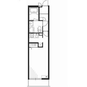
間取図
|
外観
|
<
その他の画像
>
|
| 交通 | JR横浜線 橋本駅 徒歩12分 |
|---|
| その他の交通 | 京王相模原線 多摩境駅 徒歩22分 JR横浜線 相原駅 徒歩30分 |
| 所在地 |
神奈川県相模原市緑区橋本4丁目
|
| 物件種目 |
賃貸アパート |
| 賃料 |
6.5万円 |
管理費等 |
4,000円 |
| 敷金 / 保証金 |
なし / なし |
礼金 |
1ヶ月 |
| 敷引 |
- |
保証金償却 |
- |
| その他一時金 |
室内清掃費用:41,800円、室内消毒代:16,500円、リブリクラブ入会費:7,700円、鍵交換代等:24,200円~ |
保険等 |
要 |
| 維持費等 |
リブリクラブ月額:2,200円/月 |
| 間取り |
1K(K2洋室7.8) |
専有面積 |
26.08m² |
| 築年月 |
2011年6月(築14年7ヶ月)
|
階建 / 階 |
2階建 / 2階 |
| 建物構造 |
木造 |
総戸数 |
- |
| 主要採光面 |
南 |
駐車場 |
無 |
| バイク置き場 |
- |
駐輪場 |
有 無料 |
| 建物名・部屋番号 |
リブリ・T&S 205 |
ペット |
-
|
| アピールポイント |
【橋本駅徒歩12分の好立地】【うれしい無料ネット】★2口ガスコンロ付キッチンでお料理もラクラク★浴室乾燥、温水洗浄便座など室内設備も充実★2口コンロ付キッチンでお料理もラクラク★TVインターフォン★ |
| リフォーム履歴 |
- |
| リノベーション履歴 |
- |
| 備考 |
賃貸保証等:加入要(初回:総賃料の100%、月額:総賃料の1.1%)
管理形態/管理員の勤務形態:-/巡回
単身者限定、IT重説対応物件、外壁サイディング、管理人巡回
当店ではお客様のご要望をしっかりとお伺いして、最新の物件情報の中からお客様にとって最適な物件をご提案いたします。大手ハウスメーカー施工物件から、昔ながらの地元の不動産屋さんの物件までお任せください!ご入居に向けて、引っ越し業者さんのご紹介やインターネット接続サポートなど素敵な新生活につながるお手伝いもしていきます。
お部屋探しは~ひと、街、暮らしのつながりを~ルームコネクト橋本店にお任せください。
|
| エネルギー消費性能 |
- |
| 断熱性能 |
- |
| 目安光熱費 |
- |
| バス・トイレ |
バス・トイレ別、浴室暖房、浴室乾燥機、シャワー付洗面化粧台、洗面所独立、洗面台、シャワー、温水洗浄便座、トイレ |
| キッチン |
システムキッチン、独立型キッチン、2口コンロ、ガスコンロ付 |
| セキュリティー |
モニター付インターホン、火災警報器(報知機) |
| 収納 |
全居室収納、収納スペース、クローゼット、シューズボックス |
| 設備・サービス |
全居室エアコン、室内洗濯機置場、給湯、全居室フローリング、フローリング、エアコン、複層ガラス |
| TV・通信 |
インターネット対応、インターネット使用料無料、ケーブルTV、BS端子 |
| その他 |
バルコニー、駐輪場 |
| 契約期間 |
2年 |
現況 |
空家 |
| 条件等 |
定期借家 |
入居可能時期 |
即時 |
| 更新料 |
新賃料 1ヶ月 |
物件番号 |
1106586420 |
| 情報公開日 |
2025年12月1日 |
次回更新予定日 |
2025年12月28日 |
| ケータイ用バーコード |
- スマートフォンでこの物件を見る
- スマートフォンからもこの物件をご覧になれます。
|
※「-」と表示されている項目については、情報提供会社にご確認ください。
| 周辺施設 |
無印良品ミウィ橋本店 |
| 距離 |
871m |
写真を見る |
| 周辺施設 |
イオン橋本店 |
| 距離 |
974m |
写真を見る |
| 周辺施設 |
ファミリーマート橋本五丁目店 |
| 距離 |
629m |
写真を見る |
| 周辺施設 |
ウエルシア橋本5丁目店 |
| 距離 |
926m |
写真を見る |
| 周辺施設 |
無添くら寿司橋本駅前店 |
| 距離 |
865m |
写真を見る |
| 周辺施設 |
きらぼし銀行橋本支店 |
| 距離 |
757m |
写真を見る |
ここから簡単にお問い合わせをすることができます。
(SSLでの暗号化での送信を希望されるお客さまは
こちら
よりお問い合わせください)
お問い合わせを行う前に
「個人情報の取り扱いについて」を必ずお読みください。
「個人情報の取り扱いについて」に同意いただいた場合は「上記にご同意の上 確認画面へ進む」のボタンをクリックしてください。
個人情報の取り扱いについて
皆さまが送付された個人情報はアットホーム(株)のサーバを経由し、お問い合わせ先の不動産会社にメールまたはFAXにて転送されるためアットホーム(株)にも保管されます。アットホーム(株)で保管された個人情報の取り扱いについては、【こちら】をご覧ください。
また、本画面でご記入いただいた個人情報は、お問い合わせ先の不動産会社でも保管します。 お問い合わせ先の不動産会社が保管する個人情報の取り扱いについては、不動産会社に直接お問い合わせください。
国土交通大臣免許(1)第10983号 |
|---|
- 交通:
- JR横浜線/橋本駅 徒歩5分
- 神奈川県相模原市緑区橋本3丁目20-17 デイム橋本1階
- TEL:
- 042-703-7547
- 所属団体:
- (公社)神奈川県宅地建物取引業協会会員(公社)首都圏不動産公正取引協議会加盟
取引態様:仲介  - 00276947
|
- スマートフォンで
この不動産会社を見る

|
- 提携サイト等より掲載されている物件情報につきましては、不動産会社詳細情報にリンクされていないものがあります。
- 物件に関するお問合せは、物件詳細ページの「情報提供会社」に表示されている不動産会社へ直接お願いいたします。
- 間取図は、現況を優先させていただきます。
- 映像は物件の一部を撮影したものです。物件の契約にあたっての最終判断はご自身の判断に基づいて行ってください。
- 仲介手数料について

アットホームは物件情報の適正化に努めております。
内容に誤りがある場合にはこちらへご連絡ください。