神奈川県横浜市南区二葉町1丁目(黄金町駅)の賃貸:物件詳細
交通 所在地 |
駅徒歩 |
賃料 管理費等 |
敷金/保証金 礼金 |
間取り 面積 |
物件種目 築年月 |
|
京急本線/黄金町
神奈川県横浜市南区二葉町1丁目
|
9分
|
7.75万円
15,000円
|
7.75万円 / なし
7.75万円
|
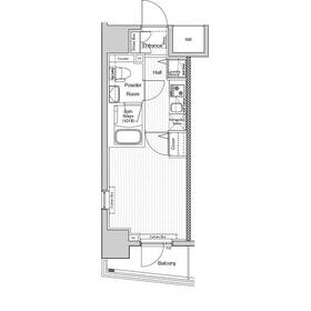
1K
23.20m²
|
賃貸マンション
2016年10月(築9年3ヶ月)
|
ペット相談、分譲タイプ、角部屋、24時間換気システム
|
|
間取図
|
外観
|
<
その他の画像
>
|
| 交通 | 京急本線 黄金町駅 徒歩9分 |
|---|
| その他の交通 | ブルーライン 吉野町駅 徒歩6分 JR京浜東北線 関内駅 徒歩22分 |
| 所在地 |
神奈川県横浜市南区二葉町1丁目
|
| 物件種目 |
賃貸マンション |
| 賃料 |
7.75万円 |
管理費等 |
15,000円 |
| 敷金 / 保証金 |
7.75万円 / なし |
礼金 |
7.75万円 |
| 敷引 |
- |
保証金償却 |
- |
| その他一時金 |
鍵交換手数料:22,000円、室内抗菌処理代:17,600円、入居中サポート:21,450円 |
保険等 |
要 2年 23,000円 |
| 維持費等 |
- |
| 間取り |
1K |
専有面積 |
23.20m² |
| 築年月 |
2016年10月(築9年3ヶ月)
|
階建 / 階 |
11階建 / 4階 |
| 建物構造 |
RC |
総戸数 |
- |
| 主要採光面 |
東 |
駐車場 |
無 |
| バイク置き場 |
無 |
駐輪場 |
有 |
| 建物名・部屋番号 |
VERXEED阪東橋MAXIV |
ペット |
相談 |
| リフォーム履歴 |
- |
| リノベーション履歴 |
- |
| 備考 |
賃貸保証等:加入要(初回総賃料の50%、年更新時30000円。等)
管理形態/管理員の勤務形態:-/-
ペット飼育時共益費3500円追加※犬・猫いずれか1匹(成長時体長50cm以下、体重10kg以下)/指定電力案内有(契約自由) NO:92000180
|
| エネルギー消費性能 |
- |
| 断熱性能 |
- |
| 目安光熱費 |
- |
| バス・トイレ |
バス・トイレ別、洗面所独立、洗面台、シャワー、トイレ |
| キッチン |
システムキッチン、2口コンロ、ガスコンロ可 |
| セキュリティー |
モニター付オートロック、オートロック |
| 収納 |
シューズボックス |
| 設備・サービス |
室内洗濯機置場、フローリング、都市ガス、エアコン、暖房 |
| TV・通信 |
インターネット対応、インターネット使用料無料、CS、BS端子 |
| その他 |
宅配BOX、バルコニー、駐輪場、エレベーター |
| 契約期間 |
2年 |
現況 |
居住中 |
| 条件等 |
- |
入居可能時期 |
2026年1月中旬予定 |
| 更新料 |
- |
物件番号 |
1107300016 |
| 情報公開日 |
2025年12月9日 |
次回更新予定日 |
2025年12月28日 |
| ケータイ用バーコード |
- スマートフォンでこの物件を見る
- スマートフォンからもこの物件をご覧になれます。
|
※「-」と表示されている項目については、情報提供会社にご確認ください。
| 周辺施設 |
ドラッグストアスマイル 横浜吉野町店 |
| 距離 |
186m |
写真を見る |
| 周辺施設 |
ローソンストア100 |
| 距離 |
295m |
写真を見る |
| 周辺施設 |
ミニストップ |
| 距離 |
471m |
写真を見る |
| 周辺施設 |
ココス横浜阪東橋店 |
| 距離 |
534m |
写真を見る |
| 周辺施設 |
安楽亭横浜吉野町店 |
| 距離 |
491m |
写真を見る |
| 周辺施設 |
ファミリーマート |
| 距離 |
576m |
写真を見る |
ここから簡単にお問い合わせをすることができます。
(SSLでの暗号化での送信を希望されるお客さまは
こちら
よりお問い合わせください)
お問い合わせを行う前に
「個人情報の取り扱いについて」を必ずお読みください。
「個人情報の取り扱いについて」に同意いただいた場合は「上記にご同意の上 確認画面へ進む」のボタンをクリックしてください。
個人情報の取り扱いについて
皆さまが送付された個人情報はアットホーム(株)のサーバを経由し、お問い合わせ先の不動産会社にメールまたはFAXにて転送されるためアットホーム(株)にも保管されます。アットホーム(株)で保管された個人情報の取り扱いについては、【こちら】をご覧ください。
また、本画面でご記入いただいた個人情報は、お問い合わせ先の不動産会社でも保管します。 お問い合わせ先の不動産会社が保管する個人情報の取り扱いについては、不動産会社に直接お問い合わせください。
神奈川県知事免許(10)第13668号 |
|---|
- 交通:
- JR根岸線/関内駅
- 神奈川県横浜市中区尾上町3丁目46 木村ビル4階
- TEL:
- 045-226-3040
- FAX:
- 045-212-0625
- 所属団体:
- (公社)神奈川県宅地建物取引業協会会員(公社)首都圏不動産公正取引協議会加盟
取引態様:仲介  - 99021171
|
- スマートフォンで
この不動産会社を見る

|
- 提携サイト等より掲載されている物件情報につきましては、不動産会社詳細情報にリンクされていないものがあります。
- 物件に関するお問合せは、物件詳細ページの「情報提供会社」に表示されている不動産会社へ直接お願いいたします。
- 間取図は、現況を優先させていただきます。
- 映像は物件の一部を撮影したものです。物件の契約にあたっての最終判断はご自身の判断に基づいて行ってください。
- 仲介手数料について

アットホームは物件情報の適正化に努めております。
内容に誤りがある場合にはこちらへご連絡ください。