兵庫県尼崎市杭瀬本町2丁目(杭瀬駅)の賃貸:物件詳細
交通 所在地 |
駅徒歩 |
賃料 管理費等 |
敷金/保証金 礼金 |
間取り 面積 |
物件種目 築年月 |
阪神本線/杭瀬
兵庫県尼崎市杭瀬本町2丁目
|
6分
|
8.5万円
8,000円
|
なし / なし
1ヶ月
|
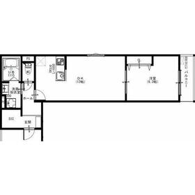
1LDK
43.37m²
|
賃貸アパート
2025年10月
|
角部屋、高齢者相談、二人入居可、2面採光、24時間換気システム、閑静な住宅街、IT重説対応物件、保証人不要
|
間取図
|
外観
|
<
その他の画像
>
|
交通 | 阪神本線 杭瀬駅 徒歩6分 |
---|
その他の交通 | 阪神本線 大物駅 徒歩18分 JR東海道本線 尼崎駅 徒歩22分 |
所在地 |
兵庫県尼崎市杭瀬本町2丁目
|
物件種目 |
賃貸アパート |
賃料 |
8.5万円 |
管理費等 |
8,000円 |
敷金 / 保証金 |
なし / なし |
礼金 |
1ヶ月 |
敷引 |
- |
保証金償却 |
- |
その他一時金 |
契約事務手数料 契約時:22,000円、室内清掃費用:38,500円、鍵交換代等:33,000円~ |
保険等 |
要 2,490円 |
維持費等 |
駐輪場利用料:330円/月、バイク置場利用料:3,300円/月 |
クレジットカード決済 |
初期費用可 |
間取り |
1LDK |
専有面積 |
43.37m² |
築年月 |
2025年10月
|
階建 / 階 |
3階建 / 1階 |
建物構造 |
木造 |
総戸数 |
- |
主要採光面 |
東 |
駐車場 |
近有 14,000円/月 |
バイク置き場 |
有 3,300円/月 |
駐輪場 |
有 330円/月 |
建物名・部屋番号 |
セレノックス尼崎 |
ペット |
-
|
アピールポイント |
室内設備はエアコン・照明付き・ネット使用料不要など充実した設備を備え付けています。2025年11月にご入居可能予定です。洗濯物も自然乾燥ですぐ乾く通風良好な間取りのアパート。2沿線利用可能なため、電車利用に便利なアパートです。不審者対策として心強い防犯カメラが備えられています。このアパートはバルコニー付きで、用途に合わせて活用できおすすめです。隣の生活音が気になりにくく、騒音によるストレスを減らすことができる角部屋になっております。家族の時間も楽しめるリビングダイニングキッチンです。 |
リフォーム履歴 |
- |
リノベーション履歴 |
- |
備考 |
賃貸保証等:加入要(全保連 全保連 初回保証料:総賃料の100% 月額2,490円(引落し手数料、火災保険、24時間緊急駆けつけサポート帯))
管理形態/管理員の勤務形態:-/-
IT重説対応物件
物件のお問い合わせはSumoSumoまで♪♪
短期違約金:6ヶ月未満3ヶ月(総賃料)、12ヶ月未満2ヶ月(総賃料)、24ヶ月未満1ヵ月
sumosumoのオススメ物件です♪♪室内を見て頂ければきっと気に入って頂けると思います♪
|
エネルギー消費性能 |
- |
断熱性能 |
- |
目安光熱費 |
- |
バス・トイレ |
バス・トイレ別、浴室暖房、浴室乾燥機、追焚機能、シャワー付洗面化粧台、洗面所独立、洗面所、洗面台、シャワー、温水洗浄便座、トイレ |
キッチン |
カウンターキッチン、オープンキッチン、システムキッチン、IHクッキングヒーター、2口コンロ |
セキュリティー |
モニター付オートロック、オートロック、モニター付インターホン、防犯カメラ |
収納 |
収納スペース、クローゼット、シューズボックス |
設備・サービス |
室内洗濯機置場、洗濯機置場、都市ガス給湯、給湯、都市ガス、エアコン、照明器具 |
TV・通信 |
インターネット対応、インターネット使用料無料、光ファイバー、CATVインターネット、ケーブルTV、CS、BS端子 |
その他 |
バイク置き場、バルコニー、駐輪場 |
契約期間 |
2年 |
現況 |
未完成 |
条件等 |
- |
入居可能時期 |
2025年11月中旬予定 |
更新料 |
44,000円 |
物件番号 |
1107404915 |
情報公開日 |
2025年9月8日 |
次回更新予定日 |
2025年10月23日 |
ケータイ用バーコード |
- スマートフォンでこの物件を見る
- スマートフォンからもこの物件をご覧になれます。
|
※「-」と表示されている項目については、情報提供会社にご確認ください。
周辺施設 |
イズミヤ 杭瀬店 |
距離 |
448m |
写真を見る |
周辺施設 |
業務スーパー 尼崎杭瀬店 |
距離 |
771m |
写真を見る |
周辺施設 |
ローソン HB阪神杭瀬店 |
距離 |
449m |
写真を見る |
周辺施設 |
ニトリ 【デコホーム】あまがさきキューズモール店 |
距離 |
2105m |
写真を見る |
周辺施設 |
ココカラファイン杭瀬店 |
距離 |
499m |
写真を見る |
周辺施設 |
尼崎杭瀬郵便局 |
距離 |
173m |
写真を見る |
周辺施設 |
尼崎東警察署杭瀬交番 |
距離 |
343m |
写真を見る |
ここから簡単にお問い合わせをすることができます。
(SSLでの暗号化での送信を希望されるお客さまは
こちら
よりお問い合わせください)
お問い合わせを行う前に
「個人情報の取り扱いについて」を必ずお読みください。
「個人情報の取り扱いについて」に同意いただいた場合は「上記にご同意の上 確認画面へ進む」のボタンをクリックしてください。
個人情報の取り扱いについて
皆さまが送付された個人情報はアットホーム(株)のサーバを経由し、お問い合わせ先の不動産会社にメールまたはFAXにて転送されるためアットホーム(株)にも保管されます。アットホーム(株)で保管された個人情報の取り扱いについては、【こちら】をご覧ください。
また、本画面でご記入いただいた個人情報は、お問い合わせ先の不動産会社でも保管します。 お問い合わせ先の不動産会社が保管する個人情報の取り扱いについては、不動産会社に直接お問い合わせください。
国土交通大臣免許(2)第9550号 |
---|
- 交通:
- JR東海道本線/尼崎駅 徒歩3分
- 兵庫県尼崎市潮江1丁目7-1
- TEL:
- 06-4400-6315
- 所属団体:
- (公社)全日本不動産協会会員(公社)近畿地区不動産公正取引協議会加盟
取引態様:仲介  - 50102791
|
- スマートフォンで
この不動産会社を見る

|
- 提携サイト等より掲載されている物件情報につきましては、不動産会社詳細情報にリンクされていないものがあります。
- 物件に関するお問合せは、物件詳細ページの「情報提供会社」に表示されている不動産会社へ直接お願いいたします。
- 間取図は、現況を優先させていただきます。
- 映像は物件の一部を撮影したものです。物件の契約にあたっての最終判断はご自身の判断に基づいて行ってください。
- 仲介手数料について

アットホームは物件情報の適正化に努めております。
内容に誤りがある場合にはこちらへご連絡ください。