不動産 賃貸 マンション等の住宅情報:埼玉住まい情報


神奈川県厚木市上依知の賃貸:物件詳細

  • 物件詳細
  • 情報の見方
  • 印刷用画面
交通
所在地
駅徒歩 賃料
管理費等
敷金/保証金
礼金
間取り
面積
物件種目
築年月

相模線下溝駅車11分(3.1km) 新着

神奈川県厚木市上依知

4.3万円

5,000円

なし / なし

なし

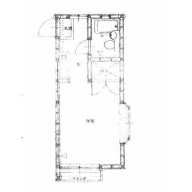
1K

17.35m²

賃貸アパート

1991年5月(築34年8ヶ月)

おすすめPOINTペット相談、フリーレント、最上階、南向き、24時間換気システム、閑静な住宅街、前面棟無、IT重説対応物件、保証人不要、置き配スペース

おすすめコメント  スタッフ: 吉見 夢来

【今ならフリーレント1ヶ月】◆初期費用を抑えたい方にオススメ◆ペットと暮らせる賃貸物件◆

間取図

間取図

外観

外観

<
その他の画像
  • リビング
  • 室内
  • キッチン
  • バス/シャワー
  • トイレ
  • 玄関
  • 設備
  • 収納
  • 設備
  • その他
  • 室内
  • バルコニー
  • エントランス
  • コンビニ
  • コンビニ
  • コンビニ
  • 販売店
  • 幼稚園、保育園
  • 郵便局
>
    • とりあえず保存
    • お問い合わせ
    交通

    相模線下溝駅車11分(3.1km)

    その他の交通

    小田急小田原線 本厚木駅
    【バス】 27分 上依知 停歩13分

    小田急小田原線 海老名駅
    【バス】 25分 団地入口 停歩10分

    所在地 神奈川県厚木市上依知
    物件種目 賃貸アパート
    賃料 4.3万円 管理費等 5,000円
    敷金 / 保証金 なし / なし 礼金 なし
    敷引 保証金償却
    その他一時金 室内清掃費用:44,000円 保険等 要 2年 18,700円
    維持費等 24Hサポート:1,100円/月 クレジットカード決済 初期費用可
    間取り 1K(洋室6) 専有面積 17.35m²
    築年月 1991年5月(築34年8ヶ月) 階建 / 階 2階建 / 2階
    建物構造 木造 総戸数 6戸
    主要採光面 駐車場
    バイク置き場 駐輪場
    建物名・部屋番号 b’CASA厚木上依知Ⅱre-born ペット 猫可
    アピールポイント 【当店はクレジット決済希望や初期費用分割などお客様のご要望に合わせたご紹介が可能です】また近隣不動産会社様との情報共有・連携により、インターネットに出ているほぼ全てのお部屋がご紹介可能です。当店が掲載している物件はもちろん、それ以外の物件に関しても、最新の情報をお調べしてご案内させていただきます。まずは一度、~素敵なお部屋の最寄り駅、賃貸ステーション~までお問い合わせください。
    リフォーム履歴
    リノベーション履歴
    備考
    賃貸保証等:加入要(初回保証料無料)
    管理形態/管理員の勤務形態:-/-
    フリーレント:1ヶ月(1ヶ月)
    単身者限定、IT重説対応物件、外壁サイディング
    お部屋探しは【素敵なお部屋の最寄り駅】賃貸ステーションまで
    引越し業者やインターネット接続など、スムーズに新生活が始められるようなお手伝いも併せてしております。
    エネルギー消費性能
    断熱性能
    目安光熱費
    バス・トイレ 洗面台、バス・トイレ同室、シャワー、トイレ
    キッチン オープンキッチン、IHクッキングヒーター
    セキュリティー 防犯用ガラス、火災警報器(報知機)
    収納 全居室収納、シューズボックス
    設備・サービス 全居室エアコン、室内洗濯機置場、プロパンガス給湯、給湯、全居室フローリング、フローリング、プロパンガス、エアコン、暖房、冷房、照明器具、複層ガラス
    TV・通信 BS端子、マルチメディアコンセント
    その他 バルコニー
    契約期間 2年 現況 空家
    条件等 入居可能時期 即時
    更新料 新賃料 1ヶ月 物件番号 1107531120
    情報公開日 2025年12月25日 次回更新予定日 2026年1月8日
    ケータイ用バーコード

    QRコード

    スマートフォンでこの物件を見る
    スマートフォンからもこの物件をご覧になれます。
    ※「-」と表示されている項目については、情報提供会社にご確認ください。

    この物件の周辺情報

    周辺施設 ローソン上依知店
    距離 590m
    周辺施設 ファミリーマート厚木上依知店
    距離 587m
    周辺施設 セブンイレブン厚木工業団地店
    距離 840m
    周辺施設 ホームストアヤマシタ
    距離 862m
    周辺施設 カミヤト凸凹保育園
    距離 487m
    周辺施設 厚木上依知郵便局
    距離 756m

    クイックお問い合わせ

    ここから簡単にお問い合わせをすることができます。
    (SSLでの暗号化での送信を希望されるお客さまは こちら よりお問い合わせください)

    お問い合わせ内容(必須)
    お名前(必須) 姓  名 
    メールアドレス(必須)
    ※携帯電話のメールアドレスをご入力される方はこちらをご確認ください
    電話番号(必須)
    - -

    ※入力いただいた電話番号へSMSまたは音声でパスワードをご連絡します。

    携帯電話の番号をご入力の方へ

    携帯電話の番号をご入力の方へ
    確認画面にて送信ボタンをクリックするとSMSが携帯電話に届きます。
    そのSMSに記載のパスワード(認証番号)を入力し、お問い合わせを完了してください。
    尚、SMSの送信者番号は 0005 202 760 となります。
    これはアットホームの固定番号です。

    備考欄 希望条件、物件案内希望日、質問などがございましたらご記入ください。
    お問い合わせを行う前に「個人情報の取り扱いについて」を必ずお読みください。
    「個人情報の取り扱いについて」に同意いただいた場合は「上記にご同意の上 確認画面へ進む」のボタンをクリックしてください。

    個人情報の取り扱いについて

    皆さまが送付された個人情報はアットホーム(株)のサーバを経由し、お問い合わせ先の不動産会社にメールまたはFAXにて転送されるためアットホーム(株)にも保管されます。アットホーム(株)で保管された個人情報の取り扱いについては、【こちら】をご覧ください。
    また、本画面でご記入いただいた個人情報は、お問い合わせ先の不動産会社でも保管します。 お問い合わせ先の不動産会社が保管する個人情報の取り扱いについては、不動産会社に直接お問い合わせください。

    情報提供会社

    情報提供会社

    (株)賃貸ステーション 本厚木店

    国土交通大臣免許(3)第8686号

    交通:
    小田急小田原線/本厚木駅 徒歩4分
    神奈川県厚木市旭町1丁目8-14 クレール本厚木
    TEL:
    046-220-1210
    FAX:
    046-220-1211
    所属団体:
    (公社)全日本不動産協会会員
    (公社)首都圏不動産公正取引協議会加盟

    取引態様:仲介

    • 会社情報
    • 00261338
    スマートフォンで
    この不動産会社を見る
    QRコード
    • とりあえず保存
    • お問い合わせ
    • 提携サイト等より掲載されている物件情報につきましては、不動産会社詳細情報にリンクされていないものがあります。
    • 物件に関するお問合せは、物件詳細ページの「情報提供会社」に表示されている不動産会社へ直接お願いいたします。
    • 間取図は、現況を優先させていただきます。
    • 映像は物件の一部を撮影したものです。物件の契約にあたっての最終判断はご自身の判断に基づいて行ってください。
    • 仲介手数料について仲介手数料

    アットホームは物件情報の適正化に努めております。 内容に誤りがある場合にはこちらへご連絡ください。

    【埼玉住まい情報】では、日本全国の物件から賃貸マンションや賃貸アパート・賃貸一戸建て等の賃貸住宅情報、新築マンション・分譲マンションや中古マンション等の売買マンション情報、新築一戸建てや中古一戸建てなどの戸建住宅、 土地など、総合的な不動産住宅情報検索サービスを提供致します。
    【埼玉住まい情報】から、選りすぐりの不動産物件を探してみましょう。

    【免責事項】
    このコーナーの運営はアットホーム株式会社(https://www.athome.co.jp/)が行っています。
    このコーナーに掲載している物件情報は、「アットホーム不動産情報ネットワーク」に加盟する不動産会社等(情報提供元)から提供されています。信頼性の高い情報提供が行えるよう、最大限の努力をしておりますが、その内容を保証するものではありません。 利用者のみなさまと各情報提供元との取引に起因する損害および情報が掲載されたことに起因する損害等については、株式会社イーシティ埼玉、およびアットホームは一切責任を負いません。
    各物件情報の内容や画像等はすべて現況を優先させていただきます。
    お取引等(お取引の準備、資金調達等を含みます)の際には、内容や契約条件等について、各情報提供元より十分な説明を受け、ご自身でご確認の上、判断してください。
    このコーナーへの物件情報のご掲載、その他不動産業務ソリューション等についての不動産会社様のお問合せはこちらからお願いいたします。

    物件画像: