神奈川県川崎市幸区南幸町1丁目(尻手駅)の賃貸:物件詳細
交通 所在地 |
駅徒歩 |
賃料 管理費等 |
敷金/保証金 礼金 |
間取り 面積 |
物件種目 築年月 |
|
JR南武線/尻手
神奈川県川崎市幸区南幸町1丁目
|
9分
|
9.2万円
15,000円
|
なし / なし
なし
|
1K
20.93m²
|
賃貸マンション
2022年2月(築4年2ヶ月)
|
ペット相談、分譲タイプ、南向き、24時間セキュリティー、24時間換気システム、IT重説対応物件、保証人不要
|
|
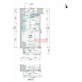
間取図
間取図
|
外観
|
<
その他の画像
>
|
| 交通 | JR南武線 尻手駅 徒歩9分 |
|---|
| その他の交通 | JR東海道本線 川崎駅 徒歩12分 JR南武線 矢向駅 徒歩12分 |
| 所在地 |
神奈川県川崎市幸区南幸町1丁目
|
| 物件種目 |
賃貸マンション |
| 賃料 |
9.2万円 |
管理費等 |
15,000円 |
| 敷金 / 保証金 |
なし / なし |
礼金 |
なし |
| 敷引 |
- |
保証金償却 |
- |
| その他一時金 |
AMLクラブサポート:16,500円、ハウスクリーニング費用(退去時):49,500円、鍵交換代等:29,700円~ |
保険等 |
要 2年 16,000円 |
| 維持費等 |
- |
クレジットカード決済 |
初期費用可 |
| 間取り |
1K(洋室6.0帖) |
専有面積 |
20.93m² |
| 築年月 |
2022年2月(築4年2ヶ月)
|
階建 / 階 |
10階建 / 7階 |
| 建物構造 |
RC |
総戸数 |
48戸 |
| 主要採光面 |
南 |
駐車場 |
無 |
| バイク置き場 |
有 |
駐輪場 |
有 |
| 建物名・部屋番号 |
メインステージ川崎南幸町 705 |
ペット |
相談 |
| アピールポイント |
★全物件!契約金カード払いで分割払い可能★ |
| リフォーム履歴 |
- |
| リノベーション履歴 |
- |
| 備考 |
賃貸保証等:加入要(賃貸保証料:0.50ヶ月 家賃総額より50%~)
管理形態/管理員の勤務形態:-/-
IT重説対応物件
★全物件!契約金カード払いで分割払い可能★
|
| エネルギー消費性能 |
- |
| 断熱性能 |
- |
| 目安光熱費 |
- |
| バス・トイレ |
バス・トイレ別、浴室乾燥機、シャワー付洗面化粧台、洗面所独立、洗面所、洗面台、シャワー、温水洗浄便座、トイレ |
| キッチン |
システムキッチン、2口コンロ、ガスコンロ付 |
| セキュリティー |
モニター付オートロック、オートロック、モニター付インターホン、ディンプルキー、ダブルロックドア、防犯カメラ |
| 収納 |
クローゼット、シューズボックス |
| 設備・サービス |
全居室エアコン、室内洗濯機置場、給湯、全居室フローリング、フローリング、都市ガス、エアコン |
| TV・通信 |
インターネット対応、光ファイバー、CS、BS端子 |
| その他 |
宅配BOX、バイク置き場、バルコニー、駐輪場、エレベーター |
| 契約期間 |
2年 |
現況 |
居住中 |
| 条件等 |
- |
入居可能時期 |
2026年4月下旬予定 |
| 更新料 |
新賃料 1.5ヶ月 |
物件番号 |
1107694023 |
| 情報公開日 |
2026年2月26日 |
次回更新予定日 |
2026年3月21日 |
| ケータイ用バーコード |
- スマートフォンでこの物件を見る
- スマートフォンからもこの物件をご覧になれます。
|
※「-」と表示されている項目については、情報提供会社にご確認ください。
| 周辺施設 |
ローソン・スリーエフ川崎南部市場前店 |
| 距離 |
350m |
写真を見る |
| 周辺施設 |
ファミリーマート川崎南幸町店 |
| 距離 |
310m |
写真を見る |
| 周辺施設 |
ココカラファイン南幸町店 |
| 距離 |
390m |
| 周辺施設 |
いなげやina21川崎幸店 |
| 距離 |
300m |
| 周辺施設 |
社会医療法人財団石心会川崎幸病院 |
| 距離 |
870m |
ここから簡単にお問い合わせをすることができます。
(SSLでの暗号化での送信を希望されるお客さまは
こちら
よりお問い合わせください)
お問い合わせを行う前に
「個人情報の取り扱いについて」を必ずお読みください。
「個人情報の取り扱いについて」に同意いただいた場合は「上記にご同意の上 確認画面へ進む」のボタンをクリックしてください。
個人情報の取り扱いについて
皆さまが送付された個人情報はアットホーム(株)のサーバを経由し、お問い合わせ先の不動産会社にメールまたはFAXにて転送されるためアットホーム(株)にも保管されます。アットホーム(株)で保管された個人情報の取り扱いについては、【こちら】をご覧ください。
また、本画面でご記入いただいた個人情報は、お問い合わせ先の不動産会社でも保管します。 お問い合わせ先の不動産会社が保管する個人情報の取り扱いについては、不動産会社に直接お問い合わせください。
国土交通大臣免許(4)第7352号 |
|---|
- 交通:
- JR京浜東北線/川崎駅 徒歩3分
- 神奈川県川崎市川崎区駅前本町4-13 伊藤ビル2F
- TEL:
- 0120-69-7890
- FAX:
- 044-221-7501
- 所属団体:
- (公社)全日本不動産協会会員不動産公正取引協議会加盟
取引態様:仲介  - 00016880
|
- スマートフォンで
この不動産会社を見る

|
- 提携サイト等より掲載されている物件情報につきましては、不動産会社詳細情報にリンクされていないものがあります。
- 物件に関するお問合せは、物件詳細ページの「情報提供会社」に表示されている不動産会社へ直接お願いいたします。
- 間取図は、現況を優先させていただきます。
- 映像は物件の一部を撮影したものです。物件の契約にあたっての最終判断はご自身の判断に基づいて行ってください。
- 仲介手数料について

アットホームは物件情報の適正化に努めております。
内容に誤りがある場合にはこちらへご連絡ください。