東京都品川区東品川3丁目(天王洲アイル駅)の賃貸:物件詳細
交通 所在地 |
駅徒歩 |
賃料 管理費等 |
敷金/保証金 礼金 |
間取り 面積 |
物件種目 築年月 |
|
りんかい線/天王洲アイル
東京都品川区東品川3丁目
|
7分
|
27.7万円
20,000円
|
1ヶ月 / なし
なし
|
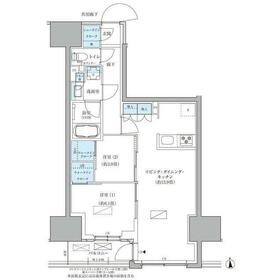
2LDK
60.53m²
|
賃貸マンション
2025年3月
|
ペット相談、楽器相談、南向き、保証人不要
|
|
間取図
|
外観
|
<
その他の画像
>
|
|
|
| 交通 | りんかい線 天王洲アイル駅 徒歩7分 |
|---|
| その他の交通 | 京急本線 新馬場駅 徒歩13分 りんかい線 品川シーサイド駅 徒歩9分 |
| 所在地 |
東京都品川区東品川3丁目
|
| 物件種目 |
賃貸マンション |
| 賃料 |
27.7万円 |
管理費等 |
20,000円 |
| 敷金 / 保証金 |
1ヶ月 / なし |
礼金 |
なし |
| 敷引 |
- |
保証金償却 |
- |
| その他一時金 |
なし |
保険等 |
要 |
| 維持費等 |
- |
クレジットカード決済 |
初期費用可 |
| 間取り |
2LDK(LDK15.9洋室6.1洋室3) |
専有面積 |
60.53m² |
| 築年月 |
2025年3月
|
階建 / 階 |
14階建 / 3階 |
| 建物構造 |
RC |
総戸数 |
- |
| 主要採光面 |
南 |
駐車場 |
空無 |
| バイク置き場 |
有 |
駐輪場 |
有 330円/月 |
| 建物名・部屋番号 |
パークアクシス品川天王洲アイル 309 |
ペット |
相談 |
| アピールポイント |
仲介手数料【0円】でご紹介。高級賃貸専門スタッフが現地【お待合わせ】にてご案内。どのような難しいご条件でもご相談可能(審査が心配など)。初期費用(全額又は一部)分割可能(クレジットカードなど)。 |
| リフォーム履歴 |
- |
| リノベーション履歴 |
- |
| 備考 |
賃貸保証等:加入要(月額賃料等の50%(初回保証料)2年目以降は9600円/年(更新料)未加入の場合は敷金積増1ヶ月)
管理形態/管理員の勤務形態:-/巡回
管理人巡回
現地お待合わせにてご案内可能です。
短期解約時、違約金が発生する場合がございます。
|
| エネルギー消費性能 |
- |
| 断熱性能 |
- |
| 目安光熱費 |
- |
| バス・トイレ |
バス・トイレ別、浴室乾燥機、オートバス、追焚機能、洗面所独立、温水洗浄便座、トイレ |
| キッチン |
カウンターキッチン、システムキッチン、3口以上コンロ、ガスコンロ付、グリル |
| セキュリティー |
モニター付オートロック、オートロック、モニター付インターホン、ダブルロックドア、防犯カメラ |
| 収納 |
ウォークインクローゼット、シューズインクローゼット、ウォークスルークローゼット |
| 設備・サービス |
室内洗濯機置場、フローリング、都市ガス、エアコン |
| TV・通信 |
インターネット対応、ケーブルTV、CS、BS端子 |
| その他 |
宅配BOX、バイク置き場、バルコニー、駐輪場、エレベーター |
| 契約期間 |
2年 |
現況 |
空家 |
| 条件等 |
定期借家 |
入居可能時期 |
即時 |
| 仲介手数料 |
不要 |
|
|
| 更新料 |
- |
物件番号 |
1107764710 |
| 情報公開日 |
2025年8月11日 |
次回更新予定日 |
2025年12月30日 |
| ケータイ用バーコード |
- スマートフォンでこの物件を見る
- スマートフォンからもこの物件をご覧になれます。
|
※「-」と表示されている項目については、情報提供会社にご確認ください。
| 周辺施設 |
品川区立東海中学校 |
| 距離 |
425m |
写真を見る |
| 周辺施設 |
品川区立城南第二小学校 |
| 距離 |
631m |
写真を見る |
| 周辺施設 |
品川区立 東品川保育園 |
| 距離 |
828m |
写真を見る |
| 周辺施設 |
東海第二公園 |
| 距離 |
318m |
写真を見る |
ここから簡単にお問い合わせをすることができます。
(SSLでの暗号化での送信を希望されるお客さまは
こちら
よりお問い合わせください)
お問い合わせを行う前に
「個人情報の取り扱いについて」を必ずお読みください。
「個人情報の取り扱いについて」に同意いただいた場合は「上記にご同意の上 確認画面へ進む」のボタンをクリックしてください。
個人情報の取り扱いについて
皆さまが送付された個人情報はアットホーム(株)のサーバを経由し、お問い合わせ先の不動産会社にメールまたはFAXにて転送されるためアットホーム(株)にも保管されます。アットホーム(株)で保管された個人情報の取り扱いについては、【こちら】をご覧ください。
また、本画面でご記入いただいた個人情報は、お問い合わせ先の不動産会社でも保管します。 お問い合わせ先の不動産会社が保管する個人情報の取り扱いについては、不動産会社に直接お問い合わせください。
東京都知事免許(2)第101127号 |
|---|
- 交通:
- JR山手線/田町駅 徒歩2分
- 東京都港区芝5丁目31-16 YCC田町ビル 10階
- TEL:
- 03-6453-9977
- FAX:
- 03-6453-9978
- 所属団体:
- (公社)全日本不動産協会会員(公社)首都圏不動産公正取引協議会加盟
取引態様:仲介  - 00785971
|
- スマートフォンで
この不動産会社を見る

|
- 提携サイト等より掲載されている物件情報につきましては、不動産会社詳細情報にリンクされていないものがあります。
- 物件に関するお問合せは、物件詳細ページの「情報提供会社」に表示されている不動産会社へ直接お願いいたします。
- 間取図は、現況を優先させていただきます。
- 映像は物件の一部を撮影したものです。物件の契約にあたっての最終判断はご自身の判断に基づいて行ってください。
- 仲介手数料について

アットホームは物件情報の適正化に努めております。
内容に誤りがある場合にはこちらへご連絡ください。