東京都文京区大塚4丁目(茗荷谷駅)の賃貸:物件詳細
交通 所在地 |
駅徒歩 |
賃料 管理費等 |
敷金/保証金 礼金 |
間取り 面積 |
物件種目 築年月 |
|
東京メトロ丸ノ内線/茗荷谷
東京都文京区大塚4丁目
|
11分
|
20.5万円
15,000円
|
なし / なし
なし
|
1LDK
41.52m²
|
賃貸マンション
2021年2月(築5年2ヶ月)
|
ペット相談、常時ゴミ出し可能、角部屋、高齢者相談、ルームシェア可、二人入居可、24時間セキュリティー、24時間換気システム、IT重説対応物件、保証人不要
|
|
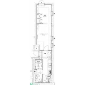
間取図
|
外観
|
<
その他の画像
>
|
| 交通 | 東京メトロ丸ノ内線 茗荷谷駅 徒歩11分 |
|---|
| その他の交通 | 東京メトロ有楽町線 護国寺駅 徒歩13分 都営三田線 千石駅 徒歩14分 |
| 所在地 |
東京都文京区大塚4丁目
|
| 物件種目 |
賃貸マンション |
| 賃料 |
20.5万円 |
管理費等 |
15,000円 |
| 敷金 / 保証金 |
なし / なし |
礼金 |
なし |
| 敷引 |
- |
保証金償却 |
- |
| その他一時金 |
室内清掃費用:49,500円、消臭抗菌サービス:11,000円、外国人サポートプラン:10,800円 |
保険等 |
不要 |
| 維持費等 |
RBI安心サポート(火災保険含む):2,750円/月 |
クレジットカード決済 |
初期費用可 |
| 間取り |
1LDK(洋室5.4帖 LDK8.1帖) |
専有面積 |
41.52m² |
| 築年月 |
2021年2月(築5年2ヶ月)
|
階建 / 階 |
4階建 / 1階 |
| 建物構造 |
RC |
総戸数 |
32戸 |
| 主要採光面 |
北西 |
駐車場 |
- |
| バイク置き場 |
- |
駐輪場 |
有 |
| 建物名・部屋番号 |
GENOVIA新大塚 0106 |
ペット |
相談 |
| アピールポイント |
タウンハウジングは首都圏に130店舗以上構えております。池袋西口店は池袋駅の西側にあり、豊島区・練馬区・板橋区を中心に広く対応しており、 常に新着の情報を仕入れております。 インターネット公開情報以外にも多くのご紹介が可能です。 地域トップクラスの情報量・取扱い物件をお客様にご提案させていただきます。 |
| リフォーム履歴 |
- |
| リノベーション履歴 |
- |
| 備考 |
賃貸保証等:加入要(一番手「RBI」初回保証料:50%(ペット飼育時100%) 外国籍:100%+外国籍サポート年間10,800円 (※審査により変更有・要確認) 外国籍家賃:クレカQR決済可(既存の保証料+2%)
管理形態/管理員の勤務形態:-/巡回
IT重説対応物件、管理人巡回
お問合せはタウンハウジング池袋西口店
03-5992-4433までご連絡ください!
Web予約も可能です!
|
| エネルギー消費性能 |
- |
| 断熱性能 |
- |
| 目安光熱費 |
- |
| バス・トイレ |
バス・トイレ別、浴室暖房、浴室乾燥機、追焚機能、洗面所独立、洗面所、洗面台、シャワー、温水洗浄便座、トイレ |
| キッチン |
システムキッチン、3口以上コンロ、2口コンロ、ガスコンロ付 |
| セキュリティー |
モニター付オートロック、オートロック、モニター付インターホン、ディンプルキー、ダブルロックドア、防犯カメラ、火災警報器(報知機) |
| 収納 |
全居室収納、クローゼット、シューズボックス |
| 設備・サービス |
室内洗濯機置場、都市ガス給湯、給湯、全居室フローリング、フローリング、都市ガス、エアコン、冷房、人感センサー付照明、照明器具 |
| TV・通信 |
インターネット対応、インターネット使用料無料、CS、BS端子、マルチメディアコンセント |
| その他 |
宅配BOX、駐輪場、エレベーター |
| 契約期間 |
2年 |
現況 |
居住中 |
| 条件等 |
- |
入居可能時期 |
2026年4月下旬予定 |
| 更新料 |
新賃料 1ヶ月 |
物件番号 |
1107784223 |
| 情報公開日 |
2026年2月26日 |
次回更新予定日 |
2026年3月27日 |
| ケータイ用バーコード |
- スマートフォンでこの物件を見る
- スマートフォンからもこの物件をご覧になれます。
|
※「-」と表示されている項目については、情報提供会社にご確認ください。
| 周辺施設 |
まいばすけっと千石2丁目店 |
| 距離 |
270m |
写真を見る |
| 周辺施設 |
まいばすけっと千石2丁目店 |
| 距離 |
270m |
写真を見る |
| 周辺施設 |
どらっぐぱぱす |
| 距離 |
250m |
写真を見る |
| 周辺施設 |
ファミリーマート大塚三丁目店 |
| 距離 |
330m |
写真を見る |
| 周辺施設 |
どらっぐぱぱす千石店 |
| 距離 |
250m |
写真を見る |
| 周辺施設 |
ファッションセンターしまむら |
| 距離 |
780m |
写真を見る |
ここから簡単にお問い合わせをすることができます。
(SSLでの暗号化での送信を希望されるお客さまは
こちら
よりお問い合わせください)
お問い合わせを行う前に
「個人情報の取り扱いについて」を必ずお読みください。
「個人情報の取り扱いについて」に同意いただいた場合は「上記にご同意の上 確認画面へ進む」のボタンをクリックしてください。
個人情報の取り扱いについて
皆さまが送付された個人情報はアットホーム(株)のサーバを経由し、お問い合わせ先の不動産会社にメールまたはFAXにて転送されるためアットホーム(株)にも保管されます。アットホーム(株)で保管された個人情報の取り扱いについては、【こちら】をご覧ください。
また、本画面でご記入いただいた個人情報は、お問い合わせ先の不動産会社でも保管します。 お問い合わせ先の不動産会社が保管する個人情報の取り扱いについては、不動産会社に直接お問い合わせください。
国土交通大臣免許(1)第9926号 |
|---|
- 交通:
- JR山手線/池袋駅 徒歩3分
- 東京都豊島区東池袋1丁目7-11 VIS-POINTビル 1階
- TEL:
- 03-5391-1980
- FAX:
- 03-5391-1981
取引態様:仲介  - 00270288
|
- スマートフォンで
この不動産会社を見る

|
- 提携サイト等より掲載されている物件情報につきましては、不動産会社詳細情報にリンクされていないものがあります。
- 物件に関するお問合せは、物件詳細ページの「情報提供会社」に表示されている不動産会社へ直接お願いいたします。
- 間取図は、現況を優先させていただきます。
- 映像は物件の一部を撮影したものです。物件の契約にあたっての最終判断はご自身の判断に基づいて行ってください。
- 仲介手数料について

アットホームは物件情報の適正化に努めております。
内容に誤りがある場合にはこちらへご連絡ください。