東京都千代田区岩本町1丁目(神田駅)の賃貸:物件詳細
交通 所在地 |
駅徒歩 |
賃料 管理費等 |
敷金/保証金 礼金 |
間取り 面積 |
物件種目 築年月 |
|
JR山手線/神田
東京都千代田区岩本町1丁目
|
8分
|
14.7万円
8,000円
|
1ヶ月 / なし
1ヶ月
|
1DK
25.13m²
|
賃貸マンション
2025年1月(築1年3ヶ月)
|
ペット相談、デザイナーズ、分譲タイプ、常時ゴミ出し可能、24時間換気システム、外観タイル張り
|
|
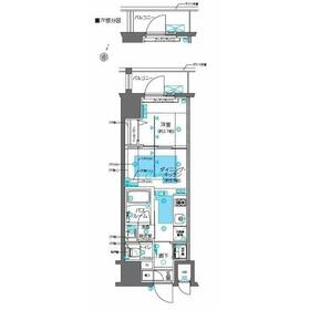
間取図
|
外観
|
<
その他の画像
>
|
| 交通 | JR山手線 神田駅 徒歩8分 |
|---|
| その他の交通 | JR京浜東北線 秋葉原駅 徒歩9分 東京メトロ日比谷線 小伝馬町駅 徒歩4分 |
| 所在地 |
東京都千代田区岩本町1丁目
|
| 物件種目 |
賃貸マンション |
| 賃料 |
14.7万円 |
管理費等 |
8,000円 |
| 敷金 / 保証金 |
1ヶ月 / なし |
礼金 |
1ヶ月 |
| 敷引 |
- |
保証金償却 |
- |
| その他一時金 |
鍵交換費用(税込):33,000円 |
保険等 |
不要 |
| 維持費等 |
家財保険+付帯サービス(税込):1,735円/月 |
| 間取り |
1DK(洋3.1、DK5.9) |
専有面積 |
25.13m² |
| 築年月 |
2025年1月(築1年3ヶ月)
|
階建 / 階 |
14階建 / 7階 |
| 建物構造 |
RC |
総戸数 |
- |
| 主要採光面 |
北西 |
駐車場 |
- |
| バイク置き場 |
有 |
駐輪場 |
有 |
| 建物名・部屋番号 |
ZOOM神田 702 |
ペット |
相談 |
| リフォーム履歴 |
- |
| リノベーション履歴 |
- |
| 備考 |
賃貸保証等:加入要(オリコフォレントインシュア トーシンライフ、オリコフォレントインシュア、全保連/保証料:初回=賃料等×50%、月額=賃料等×1%)
管理形態/管理員の勤務形態:-/-
バルコニー:3.09m²
外壁コンクリート
ZOOM神田:山手線神田駅にも近くて便利。収納はシューズボックス・クロゼットなど豊富なので、衣類や履き物の整理がしやすく便利です。共用部には宅配ボックス・ゴミ出し24時間OKなどが揃っており、とても充実しています。二口コンロが付いています。引っ越しをお考えなら、クレディフォルムまでお問い合わせください。03-6228-5878にて承っております。
「ZOOM神田」のここがイチオシ。室内設備は浴室乾燥機・洗面所独立などが揃っているので、快適に過ごしやすいお部屋になります。共用部には宅配ボックス・ゴミ出し24時間OKなどが揃っております。楽しいチャンネル満載のCATV対応物件です。千代田区での新生活を、山手線神田周辺で叶えましょう。03-6228-5878からいつでもクレディフォルムにご連絡下さい。
|
| エネルギー消費性能 |
- |
| 断熱性能 |
- |
| 目安光熱費 |
- |
| バス・トイレ |
バス・トイレ別、浴室乾燥機、オートバス、追焚機能、洗面所独立、洗面所、洗面台、シャワー、温水洗浄便座、トイレ |
| キッチン |
システムキッチン、2口コンロ、ガスコンロ可 |
| セキュリティー |
モニター付オートロック、オートロック、モニター付インターホン、ディンプルキー、ダブルロックドア、防犯カメラ |
| 収納 |
収納スペース、クローゼット、シューズボックス |
| 設備・サービス |
床暖房、室内洗濯機置場、洗濯機置場、都市ガス給湯、給湯、フローリング、都市ガス、エアコン、暖房、人感センサー付照明、照明器具 |
| TV・通信 |
インターネット対応、ケーブルTV |
| その他 |
宅配BOX、バイク置き場、バルコニー、駐輪場、エレベーター |
| 契約期間 |
2年 |
現況 |
空家 |
| 条件等 |
- |
入居可能時期 |
即時 |
| 更新料 |
新賃料 1ヶ月 |
物件番号 |
1107804925 |
| 情報公開日 |
2026年3月21日 |
次回更新予定日 |
2026年4月4日 |
| ケータイ用バーコード |
- スマートフォンでこの物件を見る
- スマートフォンからもこの物件をご覧になれます。
|
※「-」と表示されている項目については、情報提供会社にご確認ください。
ここから簡単にお問い合わせをすることができます。
(SSLでの暗号化での送信を希望されるお客さまは
こちら
よりお問い合わせください)
お問い合わせを行う前に
「個人情報の取り扱いについて」を必ずお読みください。
「個人情報の取り扱いについて」に同意いただいた場合は「上記にご同意の上 確認画面へ進む」のボタンをクリックしてください。
個人情報の取り扱いについて
皆さまが送付された個人情報はアットホーム(株)のサーバを経由し、お問い合わせ先の不動産会社にメールまたはFAXにて転送されるためアットホーム(株)にも保管されます。アットホーム(株)で保管された個人情報の取り扱いについては、【こちら】をご覧ください。
また、本画面でご記入いただいた個人情報は、お問い合わせ先の不動産会社でも保管します。 お問い合わせ先の不動産会社が保管する個人情報の取り扱いについては、不動産会社に直接お問い合わせください。
東京都知事免許(4)第90149号 |
|---|
- 交通:
- 東京メトロ銀座線/銀座駅 徒歩2分
- 東京都中央区銀座6丁目12-15 いちご銀座612ビル4F
- TEL:
- 03-6228-5878
- FAX:
- 03-3573-3444
- 所属団体:
- (公社)東京都宅地建物取引業協会会員(公社)首都圏不動産公正取引協議会加盟
取引態様:仲介  - 00611602
|
- スマートフォンで
この不動産会社を見る

|
- 提携サイト等より掲載されている物件情報につきましては、不動産会社詳細情報にリンクされていないものがあります。
- 物件に関するお問合せは、物件詳細ページの「情報提供会社」に表示されている不動産会社へ直接お願いいたします。
- 間取図は、現況を優先させていただきます。
- 映像は物件の一部を撮影したものです。物件の契約にあたっての最終判断はご自身の判断に基づいて行ってください。
- 仲介手数料について

アットホームは物件情報の適正化に努めております。
内容に誤りがある場合にはこちらへご連絡ください。