東京都豊島区南大塚2丁目(新大塚駅)の賃貸:物件詳細
交通 所在地 |
駅徒歩 |
賃料 管理費等 |
敷金/保証金 礼金 |
間取り 面積 |
物件種目 築年月 |
|
東京メトロ丸ノ内線/新大塚
東京都豊島区南大塚2丁目
|
6分
|
27.1万円
15,000円
|
1ヶ月 / なし
なし
|
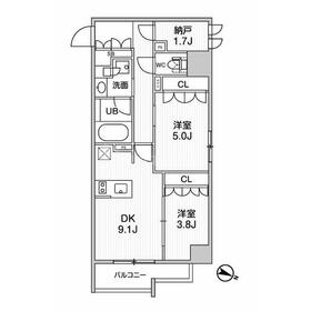
2SDK
51.00m²
|
賃貸マンション
2025年2月(築1年1ヶ月)
|
フリーレント、二人入居可、24時間換気システム、IT重説対応物件、保証人不要
|
|
間取図
|
外観
|
<
その他の画像
>
|
| 交通 | 東京メトロ丸ノ内線 新大塚駅 徒歩6分 |
|---|
| その他の交通 | JR山手線 大塚駅 徒歩11分 東京メトロ有楽町線 護国寺駅 徒歩15分 |
| 所在地 |
東京都豊島区南大塚2丁目
|
| 物件種目 |
賃貸マンション |
| 賃料 |
27.1万円 |
管理費等 |
15,000円 |
| 敷金 / 保証金 |
1ヶ月 / なし |
礼金 |
なし |
| 敷引 |
- |
保証金償却 |
- |
| その他一時金 |
なし |
保険等 |
不要 |
| 維持費等 |
- |
クレジットカード決済 |
初期費用可 |
| 間取り |
2SDK(DK9.1帖 洋室5.0帖 洋室3.8帖) |
専有面積 |
51.00m² |
| 築年月 |
2025年2月(築1年1ヶ月)
|
階建 / 階 |
8階建 / 2階 |
| 建物構造 |
RC |
総戸数 |
60戸 |
| 主要採光面 |
北東 |
駐車場 |
無 |
| バイク置き場 |
有 4,400円/月 |
駐輪場 |
有 330円/月 |
| 建物名・部屋番号 |
シーズンフラッツ新大塚 203 |
ペット |
-
|
| アピールポイント |
ハウスパートナー池袋駅西口店では池袋駅沿線を中心に豊島区・板橋区・練馬区・文京区エリアの物件をご紹介させていただきます。新築・駅近・ペット相談・分譲賃貸・貸家等お部屋探しのお悩み事があればお気軽にご相談くださいませ。お問い合わせ・ご来店をスタッフ一同心よりお待ち申し上げます。 |
| リフォーム履歴 |
- |
| リノベーション履歴 |
- |
| 備考 |
賃貸保証等:加入要(初回契約時:25%、更新時:10,000円、)
管理形態/管理員の勤務形態:-/-
フリーレント:2ヶ月
IT重説対応物件
火災保険加入必須 短期解約金あり:1年未満解約時総賃料の1ヶ月分 退去時クリーニング費用:35m2未満の場合一律38500円 35m2以上の場合1m2×1100円 エアコン清掃費用:11000円/台
|
| エネルギー消費性能 |
- |
| 断熱性能 |
- |
| 目安光熱費 |
- |
| バス・トイレ |
バス・トイレ別、浴室乾燥機、追焚機能、洗面所独立、温水洗浄便座 |
| キッチン |
カウンターキッチン、システムキッチン、2口コンロ、ガスコンロ付、ガスコンロ可 |
| セキュリティー |
モニター付オートロック、オートロック、モニター付インターホン、防犯カメラ |
| 収納 |
収納スペース、クローゼット、シューズボックス |
| 設備・サービス |
室内洗濯機置場、全居室フローリング、フローリング、都市ガス、エアコン |
| TV・通信 |
インターネット対応、インターネット使用料無料、光ファイバー |
| その他 |
宅配BOX、バイク置き場、バルコニー、駐輪場、エレベーター |
| 契約期間 |
2年 |
現況 |
完成済 |
| 条件等 |
- |
入居可能時期 |
即時 |
| 更新料 |
新賃料 1ヶ月 |
物件番号 |
1108097907 |
| 情報公開日 |
2025年9月13日 |
次回更新予定日 |
2026年2月15日 |
| ケータイ用バーコード |
- スマートフォンでこの物件を見る
- スマートフォンからもこの物件をご覧になれます。
|
※「-」と表示されている項目については、情報提供会社にご確認ください。
| 周辺施設 |
ライフ新大塚店 |
| 距離 |
160m |
写真を見る |
| 周辺施設 |
セブンイレブン 豊島南大塚1丁目南店 |
| 距離 |
180m |
写真を見る |
| 周辺施設 |
アトレヴィ大塚 |
| 距離 |
990m |
写真を見る |
| 周辺施設 |
薬マツモトキヨシ 新大塚駅前店 |
| 距離 |
720m |
写真を見る |
| 周辺施設 |
警視庁 巣鴨警察署 |
| 距離 |
910m |
写真を見る |
| 周辺施設 |
東京福祉大学 池袋キャンパス |
| 距離 |
1820m |
写真を見る |
ここから簡単にお問い合わせをすることができます。
(SSLでの暗号化での送信を希望されるお客さまは
こちら
よりお問い合わせください)
お問い合わせを行う前に
「個人情報の取り扱いについて」を必ずお読みください。
「個人情報の取り扱いについて」に同意いただいた場合は「上記にご同意の上 確認画面へ進む」のボタンをクリックしてください。
個人情報の取り扱いについて
皆さまが送付された個人情報はアットホーム(株)のサーバを経由し、お問い合わせ先の不動産会社にメールまたはFAXにて転送されるためアットホーム(株)にも保管されます。アットホーム(株)で保管された個人情報の取り扱いについては、【こちら】をご覧ください。
また、本画面でご記入いただいた個人情報は、お問い合わせ先の不動産会社でも保管します。 お問い合わせ先の不動産会社が保管する個人情報の取り扱いについては、不動産会社に直接お問い合わせください。
国土交通大臣免許(2)第9556号 |
|---|
- 交通:
- JR山手線/池袋駅 徒歩1分
- 東京都豊島区西池袋1丁目14-4 キンズメンビル3階
- TEL:
- 03-5985-0002
- FAX:
- 03-5985-0003
- 所属団体:
- (公社)全日本不動産協会会員(公社)首都圏不動産公正取引協議会加盟
取引態様:仲介  - 00275929
|
- スマートフォンで
この不動産会社を見る

|
- 提携サイト等より掲載されている物件情報につきましては、不動産会社詳細情報にリンクされていないものがあります。
- 物件に関するお問合せは、物件詳細ページの「情報提供会社」に表示されている不動産会社へ直接お願いいたします。
- 間取図は、現況を優先させていただきます。
- 映像は物件の一部を撮影したものです。物件の契約にあたっての最終判断はご自身の判断に基づいて行ってください。
- 仲介手数料について

アットホームは物件情報の適正化に努めております。
内容に誤りがある場合にはこちらへご連絡ください。