神奈川県鎌倉市腰越2丁目(腰越駅)の賃貸:物件詳細
交通 所在地 |
駅徒歩 |
賃料 管理費等 |
敷金/保証金 礼金 |
間取り 面積 |
物件種目 築年月 |
|
江ノ島電鉄線/腰越
神奈川県鎌倉市腰越2丁目
|
5分
|
20万円
なし
|
1ヶ月 / なし
1ヶ月
|
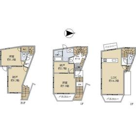
2SLDK
89.67m²
|
賃貸一戸建て
1996年3月(築29年10ヶ月)
|
|
間取図
|
外観
建物外観
|
<
その他の画像
>
|
| 交通 | 江ノ島電鉄線 腰越駅 徒歩5分 |
|---|
| その他の交通 | 小田急江ノ島線 片瀬江ノ島駅 徒歩16分 湘南モノレール 湘南江の島駅 徒歩13分 |
| 所在地 |
神奈川県鎌倉市腰越2丁目
|
| 物件種目 |
賃貸一戸建て |
| 賃料 |
20万円 |
管理費等 |
なし |
| 敷金 / 保証金 |
1ヶ月 / なし |
礼金 |
1ヶ月 |
| 敷引 |
- |
保証金償却 |
- |
| その他一時金 |
- |
保険等 |
要 1年 12,300円 |
| 維持費等 |
- |
| 間取り |
2SLDK(LDK14.2 洋7.5 洋6.1 S6.3 S2.7) |
専有面積 |
89.67m² |
| 築年月 |
1996年3月(築29年10ヶ月)
|
階建 / 階 |
3階建 |
| 建物構造 |
木造 |
総戸数 |
- |
| 主要採光面 |
東 |
駐車場 |
有 無料 |
| バイク置き場 |
- |
駐輪場 |
- |
| 建物名・部屋番号 |
鎌倉市腰越2丁目戸建 |
ペット |
-
|
| リフォーム履歴 |
- |
| リノベーション履歴 |
- |
| 備考 |
管理形態/管理員の勤務形態:-/-
■駐車場有(車種による)■2025年10月に1階トイレ交換済!
|
| エネルギー消費性能 |
- |
| 断熱性能 |
- |
| 目安光熱費 |
- |
| バス・トイレ |
バス・トイレ別、追焚機能、洗面所、シャワー、温水洗浄便座 |
| キッチン |
システムキッチン |
| セキュリティー |
- |
| 収納 |
- |
| 設備・サービス |
洗濯機置場、フローリング、都市ガス、エアコン |
| TV・通信 |
- |
| その他 |
二面バルコニー |
| 契約期間 |
2年 |
現況 |
空家 |
| 条件等 |
- |
入居可能時期 |
即時 |
| 更新料 |
新賃料 1ヶ月 |
物件番号 |
1108492106 |
| 情報公開日 |
2025年10月28日 |
次回更新予定日 |
2025年12月30日 |
| ケータイ用バーコード |
- スマートフォンでこの物件を見る
- スマートフォンからもこの物件をご覧になれます。
|
※「-」と表示されている項目については、情報提供会社にご確認ください。
ここから簡単にお問い合わせをすることができます。
(SSLでの暗号化での送信を希望されるお客さまは
こちら
よりお問い合わせください)
お問い合わせを行う前に
「個人情報の取り扱いについて」を必ずお読みください。
「個人情報の取り扱いについて」に同意いただいた場合は「上記にご同意の上 確認画面へ進む」のボタンをクリックしてください。
個人情報の取り扱いについて
皆さまが送付された個人情報はアットホーム(株)のサーバを経由し、お問い合わせ先の不動産会社にメールまたはFAXにて転送されるためアットホーム(株)にも保管されます。アットホーム(株)で保管された個人情報の取り扱いについては、【こちら】をご覧ください。
また、本画面でご記入いただいた個人情報は、お問い合わせ先の不動産会社でも保管します。 お問い合わせ先の不動産会社が保管する個人情報の取り扱いについては、不動産会社に直接お問い合わせください。
国土交通大臣免許(13)第2077号 |
|---|
- 交通:
- ブルーライン/横浜駅 徒歩5分
- 神奈川県横浜市西区北幸2丁目11-10 シティハウス横浜2・3階
- TEL:
- 0120-994-382
- FAX:
- 045-534-6211
- 所属団体:
- (一社)不動産協会会員(公社)首都圏不動産公正取引協議会加盟
取引態様:仲介  - 00231263
|
- スマートフォンで
この不動産会社を見る

|
- 提携サイト等より掲載されている物件情報につきましては、不動産会社詳細情報にリンクされていないものがあります。
- 物件に関するお問合せは、物件詳細ページの「情報提供会社」に表示されている不動産会社へ直接お願いいたします。
- 間取図は、現況を優先させていただきます。
- 映像は物件の一部を撮影したものです。物件の契約にあたっての最終判断はご自身の判断に基づいて行ってください。
- 仲介手数料について

アットホームは物件情報の適正化に努めております。
内容に誤りがある場合にはこちらへご連絡ください。