東京都江東区南砂7丁目(南砂町駅)の賃貸:物件詳細
交通 所在地 |
駅徒歩 |
賃料 管理費等 |
敷金/保証金 礼金 |
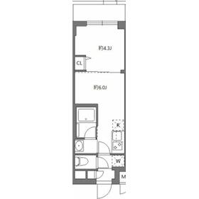
間取り 面積 |
物件種目 築年月 |
|
東京メトロ東西線/南砂町
東京都江東区南砂7丁目
|
9分
|
13.9万円
10,000円
|
1ヶ月 / なし
2ヶ月
|
1DK
25.52m²
|
賃貸マンション
2024年12月(築1年4ヶ月)
|
ペット相談、分譲タイプ、常時ゴミ出し可能、二人入居可、保証人不要
|
|
間取図
|
外観
外観
|
<
その他の画像
>
|
| 交通 | 東京メトロ東西線 南砂町駅 徒歩9分 |
|---|
| その他の交通 | 東京メトロ東西線 東陽町駅 徒歩24分 JR京葉線 潮見駅 徒歩40分 |
| 所在地 |
東京都江東区南砂7丁目
|
| 物件種目 |
賃貸マンション |
| 賃料 |
13.9万円 |
管理費等 |
10,000円 |
| 敷金 / 保証金 |
1ヶ月 / なし |
礼金 |
2ヶ月 |
| 敷引 |
- |
保証金償却 |
- |
| その他一時金 |
24時間緊急対応費:22,000円、鍵交換代等:38,500円~ |
保険等 |
要 2年 16,000円 |
| 維持費等 |
- |
| 間取り |
1DK(DK6.0帖 洋室4.3帖) |
専有面積 |
25.52m² |
| 築年月 |
2024年12月(築1年4ヶ月)
|
階建 / 階 |
5階建 / 1階 |
| 建物構造 |
RC |
総戸数 |
- |
| 主要採光面 |
北東 |
駐車場 |
- |
| バイク置き場 |
- |
駐輪場 |
- |
| 建物名・部屋番号 |
ハーモニーレジデンス東京南砂ザガーデン 102 |
ペット |
相談 |
| アピールポイント |
南砂町駅徒歩9分 ペット相談可 2口コンロ インターネット無料 宅配BOX オートロック 独立洗面 |
| リフォーム履歴 |
- |
| リノベーション履歴 |
- |
| 備考 |
賃貸保証等:加入要(月額総賃料の50%~/次年度以降15000円~/引落とし手数料660円)
管理形態/管理員の勤務形態:-/巡回
管理人巡回
ペット飼育:小型犬または猫1匹迄・礼金1ヶ月積み増し 短期解約違約金:1年未満2カ月 解約予告:2カ月前
|
| エネルギー消費性能 |
- |
| 断熱性能 |
- |
| 目安光熱費 |
- |
| バス・トイレ |
バス・トイレ別、浴室乾燥機、洗面所独立、洗面所、洗面台、シャワー、温水洗浄便座、トイレ |
| キッチン |
システムキッチン、2口コンロ、ガスコンロ付 |
| セキュリティー |
モニター付オートロック、オートロック、モニター付インターホン、火災警報器(報知機) |
| 収納 |
収納スペース、クローゼット、シューズボックス |
| 設備・サービス |
室内洗濯機置場、全居室フローリング、フローリング、プロパンガス、エアコン、暖房、冷房 |
| TV・通信 |
インターネット対応、インターネット使用料無料、光ファイバー、CS、BS端子 |
| その他 |
宅配BOX、バルコニー、エレベーター |
| 契約期間 |
2年 |
現況 |
居住中 |
| 条件等 |
- |
入居可能時期 |
相談 |
| 更新料 |
新賃料 1.5ヶ月 |
物件番号 |
1109080723 |
| 情報公開日 |
2026年3月1日 |
次回更新予定日 |
2026年3月15日 |
| ケータイ用バーコード |
- スマートフォンでこの物件を見る
- スマートフォンからもこの物件をご覧になれます。
|
※「-」と表示されている項目については、情報提供会社にご確認ください。
| 周辺施設 |
南砂町駅(東京メトロ 東西線) |
| 距離 |
650m |
写真を見る |
ここから簡単にお問い合わせをすることができます。
(SSLでの暗号化での送信を希望されるお客さまは
こちら
よりお問い合わせください)
お問い合わせを行う前に
「個人情報の取り扱いについて」を必ずお読みください。
「個人情報の取り扱いについて」に同意いただいた場合は「上記にご同意の上 確認画面へ進む」のボタンをクリックしてください。
個人情報の取り扱いについて
皆さまが送付された個人情報はアットホーム(株)のサーバを経由し、お問い合わせ先の不動産会社にメールまたはFAXにて転送されるためアットホーム(株)にも保管されます。アットホーム(株)で保管された個人情報の取り扱いについては、【こちら】をご覧ください。
また、本画面でご記入いただいた個人情報は、お問い合わせ先の不動産会社でも保管します。 お問い合わせ先の不動産会社が保管する個人情報の取り扱いについては、不動産会社に直接お問い合わせください。
東京都知事免許(6)第76891号 |
|---|
- 交通:
- 東京メトロ東西線/木場駅 徒歩1分
- 東京都江東区木場2丁目19-14 山加ビル1F
- TEL:
- 03-6228-4882
- FAX:
- 03-6240-3386
- 所属団体:
- (公社)全日本不動産協会会員(公社)首都圏不動産公正取引協議会加盟
取引態様:仲介  - 00275541
|
- スマートフォンで
この不動産会社を見る

|
- 提携サイト等より掲載されている物件情報につきましては、不動産会社詳細情報にリンクされていないものがあります。
- 物件に関するお問合せは、物件詳細ページの「情報提供会社」に表示されている不動産会社へ直接お願いいたします。
- 間取図は、現況を優先させていただきます。
- 映像は物件の一部を撮影したものです。物件の契約にあたっての最終判断はご自身の判断に基づいて行ってください。
- 仲介手数料について

アットホームは物件情報の適正化に努めております。
内容に誤りがある場合にはこちらへご連絡ください。