大阪府大阪市住之江区安立1丁目(住ノ江駅)の賃貸:物件詳細
交通 所在地 |
駅徒歩 |
賃料 管理費等 |
敷金/保証金 礼金 |
間取り 面積 |
物件種目 築年月 |
|
南海本線/住ノ江
大阪府大阪市住之江区安立1丁目
|
8分
|
6.8万円
4,000円
|
なし / なし
1ヶ月
|
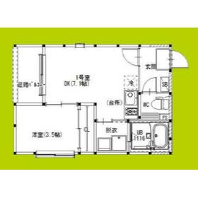
1DK
27.53m²
|
賃貸アパート
2026年1月
|
常時ゴミ出し可能、最上階、高齢者相談、IT重説対応物件、保証人不要
|
|
間取図
|
外観
|
その他の画像
|
| 交通 | 南海本線 住ノ江駅 徒歩8分 |
|---|
| その他の交通 | 南海本線 住吉大社駅 徒歩8分 南海高野線 沢ノ町駅 徒歩12分 |
| 所在地 |
大阪府大阪市住之江区安立1丁目
|
| 物件種目 |
賃貸アパート |
| 賃料 |
6.8万円 |
管理費等 |
4,000円 |
| 敷金 / 保証金 |
なし / なし |
礼金 |
1ヶ月 |
| 敷引 |
- |
保証金償却 |
- |
| その他一時金 |
24時間サポート:13,200円、IOT設定費用:11,000円、契約事務手数料:11,000円 |
保険等 |
要 2年 16,000円 |
| 維持費等 |
町会費:300円/月 |
クレジットカード決済 |
初期費用可 |
| 間取り |
1DK |
専有面積 |
27.53m² |
| 築年月 |
2026年1月
|
階建 / 階 |
3階建 / 3階 |
| 建物構造 |
木造 |
総戸数 |
- |
| 主要採光面 |
|
駐車場 |
- |
| バイク置き場 |
- |
駐輪場 |
- |
| 建物名・部屋番号 |
Haq Terrace |
ペット |
-
|
| リフォーム履歴 |
- |
| リノベーション履歴 |
- |
| 備考 |
賃貸保証等:加入要(シノケンコミュニケーション 初回保証料:30,000円)
管理形態/管理員の勤務形態:-/-
IT重説対応物件
2026年1月完成予定新築物件。設備充実。嬉しいインターネット無料。新生活が幸せであふれるようなご提案を心がけております。初期費用クレジット決済可能物件。お部屋探しのことなら住むーズ 堀江店まで。
|
| エネルギー消費性能 |
- |
| 断熱性能 |
- |
| 目安光熱費 |
- |
| バス・トイレ |
バス・トイレ別、浴室乾燥機、洗面所独立、洗面台、シャワー、温水洗浄便座、トイレ |
| キッチン |
2口コンロ、ガスコンロ可 |
| セキュリティー |
オートロック、モニター付インターホン、防犯カメラ |
| 収納 |
クローゼット、シューズボックス |
| 設備・サービス |
室内洗濯機置場、フローリング、プロパンガス、エアコン |
| TV・通信 |
インターネット使用料無料、CATVインターネット、ケーブルTV、CS、BS端子 |
| その他 |
宅配BOX |
| 契約期間 |
2年 |
現況 |
未完成 |
| 条件等 |
- |
入居可能時期 |
相談 |
| 更新料 |
新賃料 0.5ヶ月 |
物件番号 |
1109282017 |
| 情報公開日 |
2026年1月7日 |
次回更新予定日 |
2026年2月16日 |
| ケータイ用バーコード |
- スマートフォンでこの物件を見る
- スマートフォンからもこの物件をご覧になれます。
|
※「-」と表示されている項目については、情報提供会社にご確認ください。
| 周辺施設 |
矢木クリニック |
| 距離 |
147m |
写真を見る |
| 周辺施設 |
セブンイレブン 大阪浜口東2丁目店 |
| 距離 |
346m |
写真を見る |
| 周辺施設 |
サンディ 住吉墨江店 |
| 距離 |
361m |
写真を見る |
| 周辺施設 |
住之江安立郵便局 |
| 距離 |
311m |
写真を見る |
| 周辺施設 |
阪急OASIS(阪急オアシス) 住吉店 |
| 距離 |
399m |
写真を見る |
| 周辺施設 |
セブンイレブン 大阪浜口東3丁目店 |
| 距離 |
463m |
写真を見る |
| 周辺施設 |
ロッテリア 南海住吉店 |
| 距離 |
615m |
写真を見る |
| 周辺施設 |
りそな銀行 住吉支店 |
| 距離 |
575m |
写真を見る |
ここから簡単にお問い合わせをすることができます。
(SSLでの暗号化での送信を希望されるお客さまは
こちら
よりお問い合わせください)
お問い合わせを行う前に
「個人情報の取り扱いについて」を必ずお読みください。
「個人情報の取り扱いについて」に同意いただいた場合は「上記にご同意の上 確認画面へ進む」のボタンをクリックしてください。
個人情報の取り扱いについて
皆さまが送付された個人情報はアットホーム(株)のサーバを経由し、お問い合わせ先の不動産会社にメールまたはFAXにて転送されるためアットホーム(株)にも保管されます。アットホーム(株)で保管された個人情報の取り扱いについては、【こちら】をご覧ください。
また、本画面でご記入いただいた個人情報は、お問い合わせ先の不動産会社でも保管します。 お問い合わせ先の不動産会社が保管する個人情報の取り扱いについては、不動産会社に直接お問い合わせください。
大阪府知事免許(3)第58352号 |
|---|
- 交通:
- 地下鉄四つ橋線/四ツ橋駅 徒歩1分
- 大阪府大阪市西区北堀江1丁目2-17 四ツ橋川崎ビル6F EAST
- TEL:
- 0120-321-586
- FAX:
- 06-6531-3292
- 所属団体:
- (一社)大阪府宅地建物取引業協会会員(公社)近畿地区不動産公正取引協議会加盟
取引態様:仲介  - 50100736
|
- スマートフォンで
この不動産会社を見る

|
- 提携サイト等より掲載されている物件情報につきましては、不動産会社詳細情報にリンクされていないものがあります。
- 物件に関するお問合せは、物件詳細ページの「情報提供会社」に表示されている不動産会社へ直接お願いいたします。
- 間取図は、現況を優先させていただきます。
- 映像は物件の一部を撮影したものです。物件の契約にあたっての最終判断はご自身の判断に基づいて行ってください。
- 仲介手数料について

アットホームは物件情報の適正化に努めております。
内容に誤りがある場合にはこちらへご連絡ください。