福岡県福岡市南区大橋3丁目(大橋駅)の賃貸:物件詳細
交通 所在地 |
駅徒歩 |
賃料 管理費等 |
敷金/保証金 礼金 |
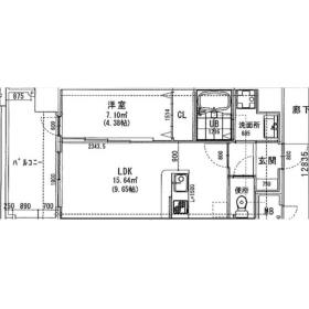
間取り 面積 |
物件種目 築年月 |
|
西鉄天神大牟田線/大橋
福岡県福岡市南区大橋3丁目
|
12分
|
8.6万円
5,000円
|
なし / なし
2ヶ月
|
1LDK
34.71m²
|
賃貸マンション
2026年2月
|
デザイナーズ、二人入居可、24時間換気システム、IT重説対応物件
|
|
間取図
|
外観
|
その他の画像
|
| 交通 | 西鉄天神大牟田線 大橋駅 徒歩12分 |
|---|
| その他の交通 | 西鉄天神大牟田線 井尻駅 徒歩25分 JR鹿児島本線 笹原駅 徒歩32分 |
| 所在地 |
福岡県福岡市南区大橋3丁目
|
| 物件種目 |
賃貸マンション |
| 賃料 |
8.6万円 |
管理費等 |
5,000円 |
| 敷金 / 保証金 |
なし / なし |
礼金 |
2ヶ月 |
| 敷引 |
- |
保証金償却 |
- |
| その他一時金 |
- |
保険等 |
要 1年 12,000円 |
| 維持費等 |
町費:300円/月、くらしーど24:880円/月 |
クレジットカード決済 |
初期費用可 |
| 間取り |
1LDK(LDK9.65 洋4.38) |
専有面積 |
34.71m² |
| 築年月 |
2026年2月
|
階建 / 階 |
11階建 / 8階 |
| 建物構造 |
RC |
総戸数 |
- |
| 主要採光面 |
西 |
駐車場 |
無 |
| バイク置き場 |
- |
駐輪場 |
- |
| 建物名・部屋番号 |
ラシュール・イン大橋Ⅱ 802 |
ペット |
-
|
| リフォーム履歴 |
- |
| リノベーション履歴 |
- |
| 備考 |
賃貸保証等:加入要(初回保証料:賃料合計の50%(最低保証料なし)・月額支払手数料:賃料))
管理形態/管理員の勤務形態:-/巡回
IT重説対応物件、管理人巡回
大橋駅徒歩13分☆新築の募集が出ました!
☆西鉄天神大牟田線大橋駅 徒歩:13分☆都市ガスです!2人入居も可能です!お問い合わせはお早めに!
|
| エネルギー消費性能 |
- |
| 断熱性能 |
- |
| 目安光熱費 |
- |
| バス・トイレ |
バス・トイレ別、浴室乾燥機、シャワー付洗面化粧台、洗面所、洗面台、温水洗浄便座 |
| キッチン |
システムキッチン、2口コンロ、ガスコンロ付 |
| セキュリティー |
オートロック、モニター付インターホン、防犯カメラ |
| 収納 |
クローゼット、シューズボックス |
| 設備・サービス |
室内洗濯機置場、全居室フローリング、フローリング、エアコン、人感センサー付照明 |
| TV・通信 |
インターネット使用料無料、CS、BS端子 |
| その他 |
宅配BOX、バルコニー、エレベーター |
| 契約期間 |
2年 |
現況 |
空家 |
| 条件等 |
- |
入居可能時期 |
即時 |
| 仲介手数料 |
9.46万円 |
|
|
| 更新料 |
なし |
物件番号 |
1109388018 |
| 情報公開日 |
2026年2月11日 |
次回更新予定日 |
2026年4月4日 |
| ケータイ用バーコード |
- スマートフォンでこの物件を見る
- スマートフォンからもこの物件をご覧になれます。
|
※「-」と表示されている項目については、情報提供会社にご確認ください。
| 周辺施設 |
医療法人正弘会南折立病院 |
| 距離 |
1155m |
| 周辺施設 |
セブンイレブン福岡みやけ通り店 |
| 距離 |
77m |
ここから簡単にお問い合わせをすることができます。
(SSLでの暗号化での送信を希望されるお客さまは
こちら
よりお問い合わせください)
お問い合わせを行う前に
「個人情報の取り扱いについて」を必ずお読みください。
「個人情報の取り扱いについて」に同意いただいた場合は「上記にご同意の上 確認画面へ進む」のボタンをクリックしてください。
個人情報の取り扱いについて
皆さまが送付された個人情報はアットホーム(株)のサーバを経由し、お問い合わせ先の不動産会社にメールまたはFAXにて転送されるためアットホーム(株)にも保管されます。アットホーム(株)で保管された個人情報の取り扱いについては、【こちら】をご覧ください。
また、本画面でご記入いただいた個人情報は、お問い合わせ先の不動産会社でも保管します。 お問い合わせ先の不動産会社が保管する個人情報の取り扱いについては、不動産会社に直接お問い合わせください。
国土交通大臣免許(3)第8754号 |
|---|
- 交通:
- 地下鉄空港線/天神駅 徒歩7分
- 福岡県福岡市中央区天神5丁目6-5
- TEL:
- 092-791-7874
- 所属団体:
- (公社)福岡県宅地建物取引業協会会員(一社)九州不動産公正取引協議会加盟
取引態様:仲介  - 80508123
|
- スマートフォンで
この不動産会社を見る

|
- 提携サイト等より掲載されている物件情報につきましては、不動産会社詳細情報にリンクされていないものがあります。
- 物件に関するお問合せは、物件詳細ページの「情報提供会社」に表示されている不動産会社へ直接お願いいたします。
- 間取図は、現況を優先させていただきます。
- 映像は物件の一部を撮影したものです。物件の契約にあたっての最終判断はご自身の判断に基づいて行ってください。
- 仲介手数料について

アットホームは物件情報の適正化に努めております。
内容に誤りがある場合にはこちらへご連絡ください。