東京都台東区浅草橋5丁目(浅草橋駅)の賃貸:物件詳細
交通 所在地 |
駅徒歩 |
賃料 管理費等 |
敷金/保証金 礼金 |
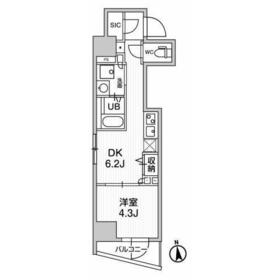
間取り 面積 |
物件種目 築年月 |
|
JR総武線/浅草橋
東京都台東区浅草橋5丁目
|
7分
|
16万円
15,000円
|
なし / なし
なし
|
1DK
27.03m²
|
賃貸マンション
2023年12月(築2年4ヶ月)
|
ペット相談、フリーレント、角部屋、南向き、24時間換気システム、外観タイル張り、保証人不要
|
|
間取図
|
外観
|
<
その他の画像
>
|
| 交通 | JR総武線 浅草橋駅 徒歩7分 |
|---|
| その他の交通 | JR山手線 秋葉原駅 徒歩12分 都営大江戸線 新御徒町駅 徒歩12分 |
| 所在地 |
東京都台東区浅草橋5丁目
|
| 物件種目 |
賃貸マンション |
| 賃料 |
16万円 |
管理費等 |
15,000円 |
| 敷金 / 保証金 |
なし / なし |
礼金 |
なし |
| 敷引 |
- |
保証金償却 |
- |
| その他一時金 |
なし、鍵交換代等:27,500円~ |
保険等 |
要 2年 23,000円 |
| 維持費等 |
- |
| 間取り |
1DK(DK6.2帖 洋室4.3帖) |
専有面積 |
27.03m² |
| 築年月 |
2023年12月(築2年4ヶ月)
|
階建 / 階 |
15階建 / 2階 |
| 建物構造 |
RC |
総戸数 |
- |
| 主要採光面 |
南 |
駐車場 |
無 |
| バイク置き場 |
- |
駐輪場 |
- |
| 建物名・部屋番号 |
201 |
ペット |
相談 |
| アピールポイント |
浅草橋駅徒歩7分 秋葉原駅徒歩圏内 ペット可 ネット無料 オートロック 宅配ボックス有 浴室乾燥機 |
| リフォーム履歴 |
- |
| リノベーション履歴 |
- |
| 備考 |
賃貸保証等:加入要(初回保証料:総賃料の30%)
管理形態/管理員の勤務形態:-/-
フリーレント:1ヶ月
ペット可:詳細有 短期解約違約金有:1年未満総賃料2ヶ月、1年-2年未満総賃料1ヶ月
|
| エネルギー消費性能 |
- |
| 断熱性能 |
- |
| 目安光熱費 |
- |
| バス・トイレ |
バス・トイレ別、浴室乾燥機、洗面所独立、洗面所、洗面台、シャワー、温水洗浄便座、トイレ |
| キッチン |
システムキッチン、2口コンロ、ガスコンロ付 |
| セキュリティー |
オートロック、モニター付インターホン、防犯カメラ |
| 収納 |
シューズインクローゼット、クローゼット、シューズボックス |
| 設備・サービス |
室内洗濯機置場、全居室フローリング、フローリング、都市ガス、エアコン、暖房、冷房、照明器具 |
| TV・通信 |
インターネット対応、インターネット使用料無料、光ファイバー、CS、BS端子 |
| その他 |
宅配BOX、バルコニー、エレベーター |
| 契約期間 |
2年 |
現況 |
居住中 |
| 条件等 |
- |
入居可能時期 |
指定有り2026年4月1日 |
| 更新料 |
新賃料 1ヶ月 |
物件番号 |
1109636823 |
| 情報公開日 |
2026年3月2日 |
次回更新予定日 |
2026年3月17日 |
| ケータイ用バーコード |
- スマートフォンでこの物件を見る
- スマートフォンからもこの物件をご覧になれます。
|
※「-」と表示されている項目については、情報提供会社にご確認ください。
| 周辺施設 |
浅草橋駅(JR東日本 総武本線) |
| 距離 |
680m |
写真を見る |
| 周辺施設 |
ライフ神田和泉町店 |
| 距離 |
220m |
写真を見る |
| 周辺施設 |
ココスナカムラ鳥越店 |
| 距離 |
320m |
写真を見る |
| 周辺施設 |
ファミリーマート台東1丁目店 |
| 距離 |
260m |
写真を見る |
| 周辺施設 |
社会福祉法人三井記念病院 |
| 距離 |
520m |
写真を見る |
| 周辺施設 |
台東区立台東育英小学校 |
| 距離 |
400m |
写真を見る |
| 周辺施設 |
ぽけっとランド浅草橋保育園 |
| 距離 |
180m |
ここから簡単にお問い合わせをすることができます。
(SSLでの暗号化での送信を希望されるお客さまは
こちら
よりお問い合わせください)
お問い合わせを行う前に
「個人情報の取り扱いについて」を必ずお読みください。
「個人情報の取り扱いについて」に同意いただいた場合は「上記にご同意の上 確認画面へ進む」のボタンをクリックしてください。
個人情報の取り扱いについて
皆さまが送付された個人情報はアットホーム(株)のサーバを経由し、お問い合わせ先の不動産会社にメールまたはFAXにて転送されるためアットホーム(株)にも保管されます。アットホーム(株)で保管された個人情報の取り扱いについては、【こちら】をご覧ください。
また、本画面でご記入いただいた個人情報は、お問い合わせ先の不動産会社でも保管します。 お問い合わせ先の不動産会社が保管する個人情報の取り扱いについては、不動産会社に直接お問い合わせください。
東京都知事免許(6)第76891号 |
|---|
- 交通:
- 東京メトロ有楽町線/豊洲駅 徒歩2分
- 東京都江東区豊洲4丁目4-27 シービーワイコヤスビル3F
- TEL:
- 03-6228-4882
- FAX:
- 03-5547-5189
- 所属団体:
- (公社)全日本不動産協会会員(公社)首都圏不動産公正取引協議会加盟
取引態様:仲介  - 00106802
|
- スマートフォンで
この不動産会社を見る

|
- 提携サイト等より掲載されている物件情報につきましては、不動産会社詳細情報にリンクされていないものがあります。
- 物件に関するお問合せは、物件詳細ページの「情報提供会社」に表示されている不動産会社へ直接お願いいたします。
- 間取図は、現況を優先させていただきます。
- 映像は物件の一部を撮影したものです。物件の契約にあたっての最終判断はご自身の判断に基づいて行ってください。
- 仲介手数料について

アットホームは物件情報の適正化に努めております。
内容に誤りがある場合にはこちらへご連絡ください。