大阪府大阪市東住吉区杭全2丁目(東部市場前駅)の賃貸:物件詳細
交通 所在地 |
駅徒歩 |
賃料 管理費等 |
敷金/保証金 礼金 |
間取り 面積 |
物件種目 築年月 |
|
JR関西本線/東部市場前
大阪府大阪市東住吉区杭全2丁目
|
4分
|
6万円
10,000円
|
なし / なし
なし
|
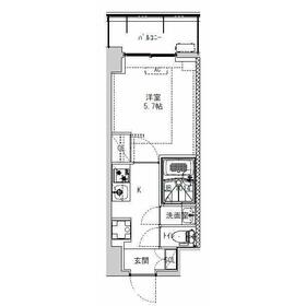
1K
20.11m²
|
賃貸マンション
2023年9月(築2年9ヶ月)
|
常時ゴミ出し可能、高齢者相談、24時間換気システム、IT重説対応物件、保証人不要
|
|
間取図
|
外観
|
<
その他の画像
>
|
| 交通 | JR関西本線 東部市場前駅 徒歩4分 |
|---|
| その他の交通 | 近鉄南大阪線 北田辺駅 徒歩15分 JR阪和線 美章園駅 徒歩15分 |
| 所在地 |
大阪府大阪市東住吉区杭全2丁目
|
| 物件種目 |
賃貸マンション |
| 賃料 |
6万円 |
管理費等 |
10,000円 |
| 敷金 / 保証金 |
なし / なし |
礼金 |
なし |
| 敷引 |
- |
保証金償却 |
- |
| その他一時金 |
なし |
保険等 |
要 2年 18,000円 |
| 維持費等 |
- |
クレジットカード決済 |
初期費用可 |
| 間取り |
1K(洋5.7) |
専有面積 |
20.11m² |
| 築年月 |
2023年9月(築2年9ヶ月)
|
階建 / 階 |
9階建 / 2階 |
| 建物構造 |
RC |
総戸数 |
- |
| 主要採光面 |
北 |
駐車場 |
近有 19,800円/月 |
| バイク置き場 |
- |
駐輪場 |
有 220円/月 |
| 建物名・部屋番号 |
Le-Bear天王寺東 203 |
ペット |
-
|
| リフォーム履歴 |
- |
| リノベーション履歴 |
- |
| 備考 |
賃貸保証等:加入要(ジェイリース 初回保証委託料30% 更新保証委託料 1年/10,000円)
管理形態/管理員の勤務形態:-/巡回
IT重説対応物件、管理人巡回
大阪市東住吉区エリアでの住まいなら、住み心地も快適な「Le-Bear天王寺東」はいかがでしょうか。ぜひ一度見ていただきたい、「Le-Bear天王寺東」です。築5年以内と築浅なので、内装も外観もキレイです。こだわりのある住まいを探している方、当社にお任せしませんか?豊富な賃貸情報と地域情報をご提供しておりますので、ご安心していただけます。ご要望やご不明な点など、お気軽にご連絡ください(#^^#)
室内設備はエアコン・システムキッチン・ネット使用料不要など充実した設備を備え付けています。共用部にはエレベータ・敷地内ごみ置き場などが揃っております。お早めにお問い合せください。車の駐車が1台できます。駐輪場付きのマンションです。転勤、単身赴任などお引越しが決まった方はお気軽に当社へお問い合せください。大阪市東住吉区エリアや関西本線東部市場前付近の情報が豊富です(*^_^*)
|
| エネルギー消費性能 |
- |
| 断熱性能 |
- |
| 目安光熱費 |
- |
| バス・トイレ |
バス・トイレ別、浴室乾燥機、シャワー付洗面化粧台、洗面所独立、洗面所、洗面台、シャワー、温水洗浄便座、トイレ |
| キッチン |
システムキッチン、2口コンロ、ガスコンロ可 |
| セキュリティー |
モニター付オートロック、オートロック、モニター付インターホン、ディンプルキー、防犯カメラ |
| 収納 |
収納スペース、クローゼット、シューズボックス |
| 設備・サービス |
室内洗濯機置場、洗濯機置場、フローリング、都市ガス、エアコン、冷房 |
| TV・通信 |
インターネット対応、インターネット使用料無料、光ファイバー |
| その他 |
宅配BOX、バルコニー、駐輪場、エレベーター |
| 契約期間 |
2年 |
現況 |
居住中 |
| 条件等 |
- |
入居可能時期 |
相談 |
| 更新料 |
- |
物件番号 |
1110208525 |
| 情報公開日 |
2026年5月10日 |
次回更新予定日 |
2026年5月24日 |
| ケータイ用バーコード |
- スマートフォンでこの物件を見る
- スマートフォンからもこの物件をご覧になれます。
|
※「-」と表示されている項目については、情報提供会社にご確認ください。
| 周辺施設 |
ファミリーマート 東住吉杭全店 |
| 距離 |
160m |
写真を見る |
| 周辺施設 |
東住吉警察署杭全交番 |
| 距離 |
456m |
写真を見る |
| 周辺施設 |
ドラッグアカカベ桑津店 |
| 距離 |
413m |
写真を見る |
| 周辺施設 |
東住吉駒川一局 |
| 距離 |
981m |
写真を見る |
ここから簡単にお問い合わせをすることができます。
(SSLでの暗号化での送信を希望されるお客さまは
こちら
よりお問い合わせください)
お問い合わせを行う前に
「個人情報の取り扱いについて」を必ずお読みください。
「個人情報の取り扱いについて」に同意いただいた場合は「上記にご同意の上 確認画面へ進む」のボタンをクリックしてください。
個人情報の取り扱いについて
皆さまが送付された個人情報はアットホーム(株)のサーバを経由し、お問い合わせ先の不動産会社にメールまたはFAXにて転送されるためアットホーム(株)にも保管されます。アットホーム(株)で保管された個人情報の取り扱いについては、【こちら】をご覧ください。
また、本画面でご記入いただいた個人情報は、お問い合わせ先の不動産会社でも保管します。 お問い合わせ先の不動産会社が保管する個人情報の取り扱いについては、不動産会社に直接お問い合わせください。
大阪府知事免許(1)第65693号 |
|---|
- 交通:
- 地下鉄御堂筋線/西田辺駅 徒歩1分
- 大阪府大阪市阿倍野区阪南町5丁目22-8
- TEL:
- 06-6655-1305
- FAX:
- 06-6655-1306
- 所属団体:
- (公社)全日本不動産協会会員(公社)近畿地区不動産公正取引協議会加盟
取引態様:仲介  - 50111832
|
- スマートフォンで
この不動産会社を見る

|
- 提携サイト等より掲載されている物件情報につきましては、不動産会社詳細情報にリンクされていないものがあります。
- 物件に関するお問合せは、物件詳細ページの「情報提供会社」に表示されている不動産会社へ直接お願いいたします。
- 間取図は、現況を優先させていただきます。
- 映像は物件の一部を撮影したものです。物件の契約にあたっての最終判断はご自身の判断に基づいて行ってください。
- 仲介手数料について

アットホームは物件情報の適正化に努めております。
内容に誤りがある場合にはこちらへご連絡ください。