東京都千代田区麹町2丁目(半蔵門駅)の賃貸:物件詳細
交通 所在地 |
駅徒歩 |
賃料 管理費等 |
敷金/保証金 礼金 |
間取り 面積 |
物件種目 築年月 |
|
東京メトロ半蔵門線/半蔵門
東京都千代田区麹町2丁目
|
2分
|
16.2万円
10,000円
|
1ヶ月 / なし
なし
|
1K
25.35m²
|
賃貸マンション
2014年11月(築11年)
|
ペット相談、常時ゴミ出し可能、角部屋、南向き、2面採光、24時間換気システム、外観タイル張り、IT重説対応物件、保証人不要
|
|
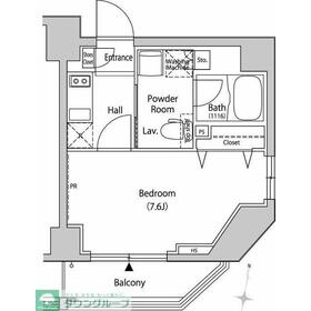
間取図
お問合せは(株)タウンハウジング赤坂店へ【03-5563-9055】までお気軽にお問合せ下さい。
|
外観
お問合せは(株)タウンハウジング赤坂店へ【03-5563-9055】までお気軽にお問合せ下さい。
|
<
その他の画像
>
|
| 交通 | 東京メトロ半蔵門線 半蔵門駅 徒歩2分 |
|---|
| その他の交通 | 東京メトロ有楽町線 麹町駅 徒歩3分 JR総武線 四ツ谷駅 徒歩11分 |
| 所在地 |
東京都千代田区麹町2丁目
|
| 物件種目 |
賃貸マンション |
| 賃料 |
16.2万円 |
管理費等 |
10,000円 |
| 敷金 / 保証金 |
1ヶ月 / なし |
礼金 |
なし |
| 敷引 |
- |
保証金償却 |
- |
| その他一時金 |
駐輪場初回登録料:550円、鍵交換代等:37,400円~ |
保険等 |
要 2年 20,000円 |
| 維持費等 |
- |
| 間取り |
1K(洋室7.6帖) |
専有面積 |
25.35m² |
| 築年月 |
2014年11月(築11年)
|
階建 / 階 |
10階建 / 5階 |
| 建物構造 |
RC |
総戸数 |
- |
| 主要採光面 |
南 |
駐車場 |
- |
| バイク置き場 |
- |
駐輪場 |
有 330円/月 |
| 建物名・部屋番号 |
|
ペット |
相談 |
| アピールポイント |
当社は今年で創業45周年 全国賃貸仲介件数ランキング74,000件 第2位の信頼と実績がございます。また1都5県143店舗の豊富なネットワークを活かし200000件以上を常時物件募集をしております。総合仲介な為、他社様のインターネット物件情報もご紹介可能です。お部屋探し~物件提案~見学~ご契約まで全てオンライン非対面でのご利用です。ご来店・お問合せをスタッフ一同心よりお待ちしております。 |
| リフォーム履歴 |
- |
| リノベーション履歴 |
- |
| 備考 |
賃貸保証等:加入要(賃貸保証料:1.00ヶ月 1年毎に1万円)
管理形態/管理員の勤務形態:-/-
IT重説対応物件
当店は港区又はその近隣エリアに特化した不動産賃貸会社になります。1席毎にパーテーションで仕切られており、ゆったりとした半個室空間でゆったりとしたBGMと共にお部屋探しを楽しめます。お気軽にお問合せ下さい。※1年未満の解約違約金有
|
| エネルギー消費性能 |
- |
| 断熱性能 |
- |
| 目安光熱費 |
- |
| バス・トイレ |
バス・トイレ別、浴室暖房、浴室乾燥機、洗面所独立、洗面所、洗面台、シャワー、温水洗浄便座、トイレ |
| キッチン |
システムキッチン、2口コンロ、ガスコンロ付 |
| セキュリティー |
モニター付オートロック、オートロック、モニター付インターホン、防犯カメラ、火災警報器(報知機) |
| 収納 |
収納スペース、クローゼット、シューズボックス |
| 設備・サービス |
床暖房、室内洗濯機置場、都市ガス給湯、給湯、フローリング、都市ガス、エアコン、暖房、冷房 |
| TV・通信 |
インターネット対応、光ファイバー、マルチメディアコンセント |
| その他 |
宅配BOX、バルコニー、駐輪場、エレベーター |
| 契約期間 |
2年 |
現況 |
空家 |
| 条件等 |
- |
入居可能時期 |
相談 |
| 更新料 |
新賃料 1ヶ月 |
物件番号 |
1110426409 |
| 情報公開日 |
2025年7月6日 |
次回更新予定日 |
2025年11月4日 |
| ケータイ用バーコード |
- スマートフォンでこの物件を見る
- スマートフォンからもこの物件をご覧になれます。
|
※「-」と表示されている項目については、情報提供会社にご確認ください。
| 周辺施設 |
ココスナカムラ麹町店 |
| 距離 |
260m |
写真を見る |
| 周辺施設 |
よしや番町麹町店 |
| 距離 |
370m |
写真を見る |
| 周辺施設 |
マルエツプチ一番町店 |
| 距離 |
430m |
写真を見る |
| 周辺施設 |
ファミリーマート |
| 距離 |
140m |
写真を見る |
| 周辺施設 |
セブンイレブン千代田区麹町4丁目店 |
| 距離 |
420m |
写真を見る |
| 周辺施設 |
どらっぐぱぱす |
| 距離 |
210m |
写真を見る |
ここから簡単にお問い合わせをすることができます。
(SSLでの暗号化での送信を希望されるお客さまは
こちら
よりお問い合わせください)
お問い合わせを行う前に
「個人情報の取り扱いについて」を必ずお読みください。
「個人情報の取り扱いについて」に同意いただいた場合は「上記にご同意の上 確認画面へ進む」のボタンをクリックしてください。
個人情報の取り扱いについて
皆さまが送付された個人情報はアットホーム(株)のサーバを経由し、お問い合わせ先の不動産会社にメールまたはFAXにて転送されるためアットホーム(株)にも保管されます。アットホーム(株)で保管された個人情報の取り扱いについては、【こちら】をご覧ください。
また、本画面でご記入いただいた個人情報は、お問い合わせ先の不動産会社でも保管します。 お問い合わせ先の不動産会社が保管する個人情報の取り扱いについては、不動産会社に直接お問い合わせください。
国土交通大臣免許(1)第9926号 |
|---|
- 交通:
- 東京メトロ千代田線/赤坂駅 徒歩2分
- 東京都港区赤坂3丁目15-10 SP赤坂ビル3階
- TEL:
- 03-5563-9055
- FAX:
- 03-5563-9056
取引態様:仲介  - 00265348
|
- スマートフォンで
この不動産会社を見る

|
- 提携サイト等より掲載されている物件情報につきましては、不動産会社詳細情報にリンクされていないものがあります。
- 物件に関するお問合せは、物件詳細ページの「情報提供会社」に表示されている不動産会社へ直接お願いいたします。
- 間取図は、現況を優先させていただきます。
- 映像は物件の一部を撮影したものです。物件の契約にあたっての最終判断はご自身の判断に基づいて行ってください。
- 仲介手数料について

アットホームは物件情報の適正化に努めております。
内容に誤りがある場合にはこちらへご連絡ください。